Интерьер и декор
Сотни идей для Вашего интерьера!
Main menu
Главная
Новости
Статьи
Главная
»
Статьи
»
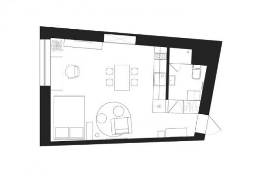
Идея дизайна квартиры — студии
Идея дизайна квартиры — студии
01.02.2020 в 21:41
Статьи
Понравилось? Поделитесь с друзьями!
⇦
Детская кроватка в спальне
⇨
Ремонт для начинающих своими руками. Ремонт комнаты своими руками — смотрите примеры ремонта комнат, а также узнайте, как правильно проводить работы, инструкции и примеры на фото!