Интерьер и декор
Сотни идей для Вашего интерьера!
Main menu
Главная
Новости
Статьи
Главная
»
Статьи
»
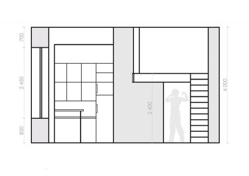
Двухуровневая квартира в стиле лофт. Оцените дизайн.
Двухуровневая квартира в стиле лофт. Оцените дизайн.
15.05.2020 в 20:41
Статьи
Понравилось? Поделитесь с друзьями!
⇦
Стильный дизайн квартиры. Оцените ремонт
⇨
Маленькая яркая кухня. Что бы Вы изменили тут?