Интерьер и декор
Сотни идей для Вашего интерьера!
Main menu
Главная
Новости
Статьи
Главная
»
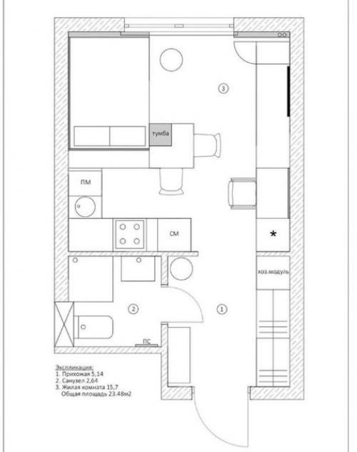
Крошечная квартира. Но вы только посмотрите насколько правильно.
Крошечная квартира. Но вы только посмотрите насколько правильно.
23.06.2022 в 08:41
Она продумана
.
Понравилось? Поделитесь с друзьями!
⇦
С чего начать ремонт в новостройке и как закончить его. Особенности ремонта в новостройке
⇨
А что вы скажете.