100 лучших идей для интерьера однокомнатной квартиры. Дизайн однокомнатной квартиры: 100 лучших идей интерьера, фото
- 100 лучших идей для интерьера однокомнатной квартиры. Дизайн однокомнатной квартиры: 100 лучших идей интерьера, фото
- Бюджетный дизайн однокомнатной квартиры. Бюджетный дизайн интерьера для однокомнатной квартиры в мятных тонах
- Дизайн однокомнатной квартиры с отдельной кухней 30 кв. Проекты однокомнатных квартир с отдельной кухней - 3 проекта с примерами планировок
- Дизайн 1-комнатной квартиры 45м2. Квартира 45 кв. м. — современный дизайн, стильный интерьер и схема расстановки мебели (120 фото)
- Дизайн однокомнатной квартиры 40 кв.м с отдельной кухней. Есть несколько замечательных способов справиться с проблемой нехватки площади в «однушке»
- Дизайн однокомнатной квартиры с отдельной кухней. Дизайн кухни в однокомнатной квартире (100 фото)
100 лучших идей для интерьера однокомнатной квартиры. Дизайн однокомнатной квартиры: 100 лучших идей интерьера, фото
Хитрости для расширения пространства
Чтобы будущий интерьер однокомнатной квартиры доставлял только положительные эмоции, обратите внимание на некоторые дизайнерские хитрости, которые можно с пользой использовать при оформлении комнаты.
В первую очередь нужно уделить особое внимание отделке стен и потолка небольшого помещения. Отделку горизонтальных и вертикальных поверхностей лучше проводить отделочными материалами более светлых и пастельных оттенков. Это может быть матовая или глянцевая столешница нежно-жемчужно-белого оттенка или обои цвета слоновой кости.
Наличие большого зеркала визуально сделает интерьер однокомнатной квартиры больше и просторнее. Достаточно установить шкаф-купе с зеркальной дверцей или повесить зеркальное полотно с красивой рамой в хорошо освещенном месте и сразу видно, как преобразится комната.
Наличие многочисленных элементов декора, дорогих сердцу сувениров или фотографий создает определенный комфорт и радует глаз. Однако для создания максимально эргономичного дизайна маленькой квартиры-студии лучше отказаться от большого количества мелких элементов декора. Вы можете оставить, например, картины средних размеров, напольную вазу или оригинальную гипсовую статуэтку.
Чтобы интерьер квартиры-студии получился легким и объемным, следует выбирать легкие тюлевые шторы. Они не препятствуют проникновению дневного света в комнату и не скрывают пространство за окном, тем самым помогая зрительно увеличить комнату.
Двери в маленькой комнате играют особую роль, без них практически невозможно обойтись. Лучше отдать предпочтение вариантам из светлых пород дерева. Также желательно, чтобы межкомнатная дверь имела вставки из матового или прозрачного стекла. Стеклянные поверхности отлично отражают свет и придают интерьеру однокомнатной квартиры большую глубину и объем.
Зонирование однокомнатной квартиры: радикальные меры или удачный дизайнерский хо
Прежде чем приступить к организации однокомнатной квартиры, лучше сразу определиться, в каком объеме будут следующие строительные работы. Для этого нужно определиться, как будет происходить зонирование комнаты, что необходимо для увеличения полезной площади. Возможных решений несколько.
Демонтаж встроенных помещений
Чтобы увеличить полезную площадь небольшой прихожей, достаточно демонтировать имеющуюся кладовую или встроенный шкаф. Это здание, оставленное архитекторами прошлого, уже потеряло свою актуальность. Вместо старых разобранных вещей можно поставить современный угловой шкаф или большой шкаф.
Объединение соседних комнат
Чаще всего при создании интерьера однокомнатной квартиры декораторы советуют совмещать между собой различные комнаты.
Самый популярный вариант – объединение гостиной с кухней. Однако следует учитывать, что запах приготовленного блюда разнесется по квартире.
Можно соединить ванную комнату с туалетом – получится достаточно просторная ванная, в которой беспрепятственно поместится не только стиральная машина, но и необходимая мебель.
Объединяя гостиную с балконом, можно получить комфортный рабочий кабинет или уголок для отдыха.
Бюджетный дизайн однокомнатной квартиры. Бюджетный дизайн интерьера для однокомнатной квартиры в мятных тонах

Российские частные интерьеры уже давно по большому счету не отстают от зарубежных, но они них как-то редко получается рассказать. Впрочем, размах и качество итоговой работы зависит от множества факторов: от вложенных денег, профессионализма дизайнеров-архитекторов (и собственно исполнителей), а так же от изначального качества квартиры. Высокие потолки и большие светлые окна — бесценно, но этими благами обладают далеко не все квартиры. Подчеркнуть достоинства даже маленького жилья, и скрыть его недостатки, могут не только дизайнеры. Очень много красивых и по-настоящему уютных квартир было «создано» после сотен просмотров фотографий чужих частных интерьеров, а так же идей. Вот еще один интересный пример дизайн интерьера для однокомнатной квартиры в ЖК «Университетский» от студии дизайна интерьера в Екатеринбурге — «Градиз».

ЖК «Университетский» в Екатеринбурге
ЖК «Университетский» в Екатеринбурге. Схема застройки
Этот дизайн-проект получил название — Мятный бриз. И действительно, атмосфера в квартире получилась воздушная, радостная и построенная вокруг очень популярного сегодня, мятного цвета. Бюджет изначально был достаточно ограниченный, в квартире будет жить молодая пара. Модное цветовое решение всей квартиры было построено на ярких цветовых акцентах при активном использовании спокойных тонов. Ковер в этом случае — «отправная точка» для цветовой палитры помещения. Художественная роспись на стене — изюминка гостиной/спальни (диван — раскладной). Основная одежда хранится в гардеробной.
Особенно симпатичной получилась ванная комната, и совмещенный с ней санузел. Еще одним безусловных плюсом современного ремонта является огромный выбор аксессуаров, мебели и текстиля для дома. Особенно много всего сегодня можно найти для оформления и ремонта ванной комнаты. Одних только ванн сотни: из чугуна, акрила и стали, и это не считая душевых кабин. В данном случае, особый позитивный настрой и дух молодости несет керамическая плитка разных оттенков и необычная раковина. Ванна достаточно простая, но современная. Жителям Екатеринбурга можно посоветовать интернет-магазин сантехники v-vannu.ru. Самые современные ванны в Екатеринбурге, продаются именно здесь.
Интересное решение для размещения стиральной машинки.

Что-то из этого дизайн-проекта явно было навеяно скандинавскими интерьерами .


Основная изюминка кухни в наличии в ней раскладного дивана, на котором могут ночевать родители или гости.

Потолок мятного цвета, посуда, стулья и подушки на диване — продолжают главную идею.


Дизайн однокомнатной квартиры с отдельной кухней 30 кв. Проекты однокомнатных квартир с отдельной кухней - 3 проекта с примерами планировок
Всего двадцать лет назад все мы считали очевидным, что кухня в квартире – это то помещение, которое обязательно должно быть отделено и изолировано. Однако, в последние годы идеи объединения кухни и гостиной в общее пространство или размещать все зоны маленькой квартиры в рамках общего студийного пространства стала настолько популярной, что отдельная кухня встала редкостью.
На данной странице мы собрали несколько проектов «однушек», планировка которых предполагает отделение кухни в отдельную комнату. Причём в каждом конкретном проекте – эта задача реализована по-своему.
1. Однокомнатная квартира 38 кв. м, кухня отделена глухой перегородкой
В этой квартире поместилось очень много функций: прихожая, кухня, столовая, спальня, гостиная, рабочая зона для двоих, санузел и даже гардеробная комната.
Цветовая гама очень сдержанная., на стенах мы использовали декоративную штукатурку, которая приятно бликует на свету. Обилие природных фактур, таких как дерево и камень, в сочетании с синими акцентными элементами гармонично дополняют и подчеркивают друг друга, а тёмные детали придают графичности пространству.
.
Дизайн 1-комнатной квартиры 45м2. Квартира 45 кв. м. — современный дизайн, стильный интерьер и схема расстановки мебели (120 фото)
Большинство людей хватаются за голову, когда им предстоит ремонт в квартире в 45 квадратов. Они понятия не имеют как вместить все необходимое на маленькой площади. Как все расположить, чтобы ни одна вещь не мешала и была удобно расположена. Благодаря советам, у вас все получится.

Хоть размеры квартиры оставляют желать лучшего, можно организовать все так, что визуально пространства будет больше. Все благодаря светлым тонам, они добавляют пространства и делают помещение более светлым.

Гостиная
Делая ремонт квартиры 45 квадратов, обращайте внимание на цветовую гамму в гостиной. Она играет очень важную роль. Не затемняйте комнату, иначе в ней будет неприятно находиться, и вы постоянно будете хотеть спать.
Нежные цвета: кремовый, слоновая кость, розовый, белый сделают комнату уютнее и нежнее. В этом поможет подвесной потолок с большим количеством светильников. Чем больше освещения, тем лучше для гостиной.

Ориентируйтесь на простоту, старайтесь использовать только натуральные материалы. Деревянная мебель отлично впишется в светлую комнату. Причем совершенно не важно какой древесный оттенок будет, под светлость подойдет любой.

Для штор подойдет легкая ткань, отличного цвета от стен. Пусть она будет более темной, но не переборщите, иначе скроете весь свет. Подберите соответствующую обивку для дивана и не забудьте про ковер с крупным ворсом. Он сделает помещение теплым и уютным.

Покупайте компактную мебель, которая вешается на стены. Пусть цвет соответствует цвету стен, тогда шкафы будут практически незаметны.

Спальня
В спальной комнате должно быт все просто, без лишнего пафоса и сложных дизайнерских идей. Винтажный стиль идеально подойдет для комнаты отдыха и спокойствия. Громоздкий и вместительный шкаф можно поставить у стены или угол комнаты.

Пусть кровать будет с подходящим под деревянного гиганта изголовьем. Его можно сделать самостоятельно или выполнить на заказ. В качестве тумбы можно использовать ящик, собранный из деревянных реек. Предварительно обработайте и украсьте его.
Современные дизайнеры предлагают использовать подиум в спальнях для экономии места. Е обязательно ставить громоздкий шкаф, его можно организовать под подиумом. Там достаточно свободного места, а визуально все спрятано.

Санузел
Как правило, в небольших квартирах ванная совмещена с туалетом, это рассчитано на экономию места. Несмотря на размеры, при правильном расположении, в нее можно поместить все необходимые элементы мебели и сантехники:
- ванна;
- унитаз;
- раковина;
- зеркало с подставкой;
- небольшая тумбочка;
- корзина для белья;
- стиральная машина.

Если хотите установить подвесной шкаф, то выбирайте модели с зеркальными дверцами. Благодаря им они становятся незаметными и визуально не загромождают место.

Привлекательно смотрятся сантехника и мебель с ровными сторонами и подобием на мрамор. Дизайн квартиры в 45 кв. м. моментально преображается.

Кухня
Стоит обратить достаточно внимания интерьеру кухни. Ведь это место, где проходят семейные собрания за ужином, обедом или чашечкой чая. Комната должна вызывать желание находиться в ней и способствовать хорошему настроению на целый день.
Черно-белый цвет хорошо подходит под это описание. Эти цвета не являются броскими, они не будут резать глаза, благодаря своей нейтральности дизайн кузни вам не надоест. Они хороши и с практичной стороны, так как них не видны мелкие загрязнения.

Предпочитайте угловую мебель, она даст возможность сохранить больше места. Отличным решением будет, прикрепить металлический фасад, который позволить хранить на стене большое количество кухонного инвентаря.

Темные люстры, держащиеся на длинном проводе и шторы черного цвета в римском стиле идеально подчеркнут и украсят общую стилистику.

Балкон
Балкон – это не только место хранения старого хлама. Современные дизайнеры творят чудеса с небольшим участком квартиры. Если маленькое помещение застеклено, тогда есть большое количество идей и вариантов, что можно с него сделать.
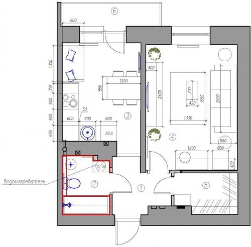
Дизайн однокомнатной квартиры 40 кв.м с отдельной кухней. Есть несколько замечательных способов справиться с проблемой нехватки площади в «однушке»
Главная трудность в маленькой однокомнатной квартире — это организация пространства. Его нужно разделить таким образом, чтобы каждая из частей была самостоятельной и выглядела полноценно. Конечно, в разных семьях потребности могут отличаться, но, не делая серьезный ремонт, выделить в небольшой квартире место для приема гостей, сна и работы требуется всем. Предлагаем несколько способов, как сделать удобный и комфортный дизайн однокомнатной квартиры 40 кв.м.
Max Kasymov Interior/Design Сохранить фото
Для экономии места лучший дизайн однокомнатной квартиры 40 кв.м (на фото) — разделить пространство на две зоны: гостевую и приватную
Corynne Pless Сохранить фото
Четко разделите комнату на зоны
С помощью мебели вы можете создать удобные зоны для встречи гостей, работы и сна. Для таких целей отлично подходят стеллажи (ширмы лишь занимают место), секретеры (а не письменные столы), а также комоды: в некоторые из них вещей входит больше, чем в средних размеров шкаф — проверено.
Мария Дадиани Сохранить фото
Правильная планировка однокомнатной квартиры 40 кв.м (как на фото) визуально увеличит небольшое пространство
Откажитесь от того, что не нужно
Некоторые традиционные предметы мебели, такие как диван (помимо спального места), кресла или «стенка» могут быть обременительны для интерьера квартиры 40 кв.м, стесняя и без того небольшое пространство.
Откажитесь от габаритных и не всегда нужных вещей. Если вы любите смотреть телевизор на диване, избавьтесь от лишних кресел. Место для сидения гостей найдется всегда, к примеру, на удобных подушках, которые потом можно сложить и убрать в шкаф.
А уж если вы предпочитаете работать с ноутбуком на кухне, поближе к холодильнику, вам точно не нужен отдельный рабочий стол.
BAM Design Lab Сохранить фото
Поставьте диван спинкой к кровати
Таким образом вы сможете сэкономить место в интерьере, а заодно организовать отдельный спальный уголок, какой бы ни была планировка квартиры 40 кв.м. Эти предметы мебели можно как разнести по комнате, так и поставить спина к спине, вплотную.
Сохранить фото
Разные цвета совмещайте на небольших элементах
Если вы хотите оживить комнату яркими оттенками, следует воздержаться от злоупотребления цветами в больших масштабах. Лучше выплесните творческий порыв на дизайн мелких предметов декора, текстиль иди малогабаритную мебель — прикроватные тумбы, изголовье кровати, панно (хорошая идея красивого цветного панно — на фото) или постеры.
Nichole Loiacono Design Сохранить фото
Дизайн однокомнатной квартиры 40 кв.м (на фото) в стиле фьюжн позволил «спрятать» обеденную зону в зоне гостиной
Перенесите столовую в комнату
Если на кухне совсем не хватает места, подумайте об организации столовой в единственной комнате. Место для стола можно найти либо у окна, либо у самого входа в комнату. Заодно он может сыграть и роль письменного стола.
Совет: Круглый стол в маленьком помещении будет смотреться более изящно, чем квадратный или прямоугольный.
OlgaL Сохранить фото
Делая ремонт в однокомнатной квартире 40 кв.м, заранее продумайте нестандартные места для хранения мелочей, например, как на фото этого интерьера
Используйте стену с окном
Если удлинить подоконник и сделать одну столешницу-полку над радиаторами, под ней еще найдется место для хранения разных предметов (книг, документов или пары коробок с мелкими вещами)
Совет: При покупке мебели, сделанной на заказ, вы сможете использовать каждый полезный сантиметр комнаты. Типовые предметы мебели часто не слишком удобны в маленьких пространствах.
Tommy Chambers Interiors, Inc. Сохранить фото
Оформите кровать
Хорошо декорированная кровать в единственной жилой комнате, к примеру, студии — мечта многих владельцев однокомнатной квартиры. Легче всего реализовать такой вариант при угловом размещении, создав изголовье из двух стенок, а также украсив кровать разнообразным текстилем — несколькими видами подушек разных размеров.
Black and Milk | Interior Design | London Сохранить фото
Используйте мебель-трансформер
Вместо того, чтобы спать на диване, купите откидную кровать, которая будет днем превращаться в небольшой стеллаж у стены. И к тому же такой вариант визуально разгрузит интерьер квартиры 40 кв.м (на фото) и освободит столь необходимое место в центре комнаты.
ARCHIFORMS studio Сохранить фото
Используйте пространство над кроватью
Для организации хранения можно повесить здесь несколько открытых или закрытых полок, небольших шкафчиков. Но не каждый будет способен психологически выдержать данный вариант: сначала следует проверить свою реакцию, повесив на время небольшую полку.
ВАША ОЧЕРЕДЬ…
С какими трудностями вы сталкивались, создавая дизайн интерьера однокомнатной квартиры 40 кв.м? Какие решения принимали? Поделитесь вашим опытом в разделе комментариев!
Дизайн однокомнатной квартиры с отдельной кухней. Дизайн кухни в однокомнатной квартире (100 фото)
Проектируя кухню, необходимо учитывать ряд важных аспектов: требования эргономики, конфигурацию помещения, инженерные коммуникации, стиль и предметное наполнение интерьера. Грамотное проектирование требует системного подхода к поставленным задачам. Рассмотрим основные этапы создания удобного и функционального интерьера, используя подборку лучших фото дизайна кухни в однокомнатной квартире.



Дизайн и эргономика кухни в однокомнатной квартире
Кухня – единственное помещение в квартире, где проходит технологический процесс. От соблюдения правил эргономики зависит безопасность во время приготовления пищи.
Основные правила эргономики на кухне:
- Компактный «рабочий треугольник». Идеально, если расстояния между плитой, мойкой и холодильником примерно одинаковые или сумма трех сторон составляет не больше 6 м. Правильное расположение кухонных приборов сокращает движения хозяйки на кухне. Размещение мойки и газовой плиты определяется выводами инженерных коммуникаций: водопроводной, канализационной и газовой трубой.
- Схема расстановки мебели зависит от конфигурации помещения в плане. Универсальная схема размещения кухонной стенки – линейная. Для стандартной формы в плане (приближенной к квадрату) актуально использовать Г-образную схему. Существуют другие варианты расстановки кухонного гарнитура: П-образный, Т-образный, линейный на две стороны, островной. Но эти схемы лучше использовать для просторных кухонь-столовых или для квартиры-студии.
- Высота рабочей поверхности и размещения навесных шкафчиков зависит от роста хозяйки. Средняя высота столешницы от пола – 85 см (для высокого роста допустимо 90-95 см). Ширина фартука составляет 45-60 см, что тоже подбирается индивидуально.