Из однушки двушка 40 кв м. Готовые схемы проектов переделки однокомнатной квартиры в двухкомнатную разной площади
- Из однушки двушка 40 кв м. Готовые схемы проектов переделки однокомнатной квартиры в двухкомнатную разной площади
- Как из однушки 40 кв.м сделать двушку. Из однушки получилась двушка, перепланировка
- Перепланировка однокомнатной квартиры 40 кв.м в двухкомнатную. Как разделить комнату на две зоны, варианты и способы зонирования
- Видео мастер-класс как из однушки 35 м.кв. сделать двушку. Перепланировка однокомнатной квартиры.
Из однушки двушка 40 кв м. Готовые схемы проектов переделки однокомнатной квартиры в двухкомнатную разной площади
При перепланировке в 38 кв м учитывается все до мелочей. Для такой квартиры лучше всего подойдут такие стили, как хай-тек, скандинавский или кантри. При использовании одного из стилей в квартире будет уютно и просторно. Важно заранее все распланировать, как из однушки сделать двушку и постепенно начать перестройку. Главное, выбрать подходящий вариант и тем самым можно преобразить свою жилплощадь.

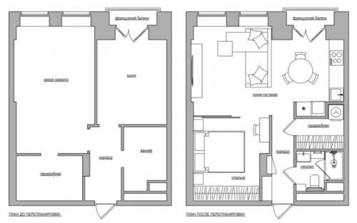
Спальная зона выделена в небольшую, но отдельную комнату. Большая часть пространства досталась кухне-гостиной, в которой раскладной диван служит дополнительным местом для сна
При 40 кв м комнаты могут быть открытыми, что придаст квартире неповторимый вид. При перепланировке в любой интерьер можно внести “изюминку” и тогда все будет смотреться изящно и красиво. Каждому хозяину квартиры можно создать индивидуальный проект и решить как из однушки сделать двушку 40 кв. Разграничивая помещения в квартире нужно сделать так, что все было компактно расставлено.

Приватное место для ночного отдыха размещено за стеклянной перегородкой, что позволило сохранить в спальне естественное освещение
При 43 кв м будет уютно, если разграничить основную комнату перегородкой. У тех, у кого есть дети сделать для них игровую комнату. Если владелец проживает один, то ему можно создать уютное офисное помещение. Все гармонично сочетаться в соответствие с установленными правилами.

Комната с двумя окнами разделена на спальную и гостиную зоны, последняя отделена от кухни барной стойкой
При 45 кв м в одной комнате можно установить кровать и диван без потери основного стиля. Вторая половина может быть занята кухней в американском стиле. Здесь можно все разграничить так, чтобы уместились:
- напольные вешалки;
- небольшие шкафчики;
- напольный торшер;
- столик;
- диван и т.д.

Благодаря перепланировки удалось организовать просторную кухню-гостиную и уютную спальную зону с небольшим гардеробом
При 50 кв м может получиться в одной половине уютная спальня, а в другой отдельный уголок отдыха. В качестве перегородки можно поставить прозрачные. Это придаст помещению современный, презентабельный вид. В квартире может быть объединена кухня с гостиной и отдельная спальня. Все это может быть удобным вариантом для семейной пары.

Функциональный интерьер с достаточно большой спальной комнатой, кухне-гостиной и рабочим кабинетом на утепленной лоджии
При перепланировке 55 кв м можно сделать интерьер в швейцарском стиле, использовав светлые оттенки. Интерьер лучше не перегружать лишними деталями, а повесить украшения на стены и потолок. Если даже дизайн простой, то интерьер может получиться стильный и современный.

Как из однушки 40 кв.м сделать двушку. Из однушки получилась двушка, перепланировка
При покупке заказчиками эта уютная квартирка площадью 44 кв.м была со свободной планировкой — то есть с возможностью расставить стены и перегородки, как душе угодно. Перед нами стояла задача сделать из однушки двушку: вместить сюда спальню и гостиную-гостевую. Смотрите ниже, что получилось!
— Кухня с панорамным видом — просто мечта!
— Мы объединили лоджию с кухней, чтобы максимально увеличить площадь. Получилось и правда круто! Здесь чуть более 15 кв. м, есть телевизор и уютный диванчик, чтобы посидеть с друзьями или посмотреть за ужином кино в одиночестве.
— Обычно вы стараетесь оттенить чем-то белые фасады — ярким фартуком или стенами. Почему тут решили сделать всю кухню белой?
— Хотелось подчеркнуть воздушность интерьера, добавить простора. Светлая кухня не выглядит скучной и блёклой, потому что глазу есть за что зацепиться. Тут притягивают внимание молдинги на кухонных шкафчиках и стенах, золотистая фурнитура, плитка на полу, цветные мягкие стулья и цветочные принты в рамах в столовой зоне — пусть все эти детали не яркие, но они в совокупности делают интерьер кухни очень интересным и насыщенным.
— Какого размера получилась эта гостиная?
— Маленького, всего 8 кв.м :) Что поделать, перепланировка однушки в двушку крадёт место. Если разложить диван, то останется проход вдоль стены с телевизором. Но и цель достигнута: нам нужно было сделать изолированную комнату, в которой можно посидеть вечером с книгой или перед теликом, и где могли бы при случае переночевать родственники или друзья.
За дверью слева находится миниатюрная спальня – чтобы в неё хоть немного проникал дневной свет, мы сделали межкомнатные двери с матовыми стеклянными вставками.
— Ой, это что, вся спальня? Размером с кровать?
— Такая малютка, да. Зато отдельная. :) Чтобы расширить визуально пространство, мы сделали одну стену зеркальной — ту, что за туалетным столиком. Я знаю, есть люди, которым не понравилось бы спать напротив зеркала, но у заказчицы, к счастью, на этот счёт предубеждений нет. Слева, за шторкой, находится большая гардеробная.
Совет дизайнера
Очень маленькую комнатку лучше сделать максимально светлой, с однотонными стенами без крупных рисунков и картин. Визуально можно увеличить пространство с помощью крупных зеркал и глянцевой мебели. Чтобы комната без окна не превратилась в мрачную каморку, выбирайте дверь с большими стеклянными вставками, через которые хоть немного будет попадать дневной свет.
— Сантехника золотого цвета выглядит очень необычно.
— Да, и как всё необычное, стоит дороже. :) Санузел редко входит в дизайн-проект, однако в этом случае заказчица решила не экономить на визуализации. Здесь нет каких-то невероятных дизайнерских решений, могу только обратить внимание на идею с тем, как можно изящно вписать стиральную машину под столешницу с умывальником. Главный секрет в том, чтобы стиралка и мебель были одинакового цвета.
Перепланировка однокомнатной квартиры 40 кв.м в двухкомнатную. Как разделить комнату на две зоны, варианты и способы зонирования
Самыми популярными способами сделать двухкомнатную квартиру из однокомнатной являются разделение комнаты на гостиную и спальню.

Гостиная и спальня
Вы можете отделить одну комнату от другой кирпичной, гипсокартонной стеной , стеклоблоками или при помощи мебели (см фото). Первый вариант вынудит вас столкнуться с государственными органами, которые следят за тем, чтобы владелец жилища ненароком не снёс несущие стены.
Попросту говоря, при условии возведения капитальной стены, вам необходимо будет пройти процедуру узаконивания перепланировки . Поэтому наименее конфликтными являются три последних варианта.

Переделка однокомнатной квартиры на две комнаты при помощи:
- Гипсокартона
Перегородка из гипсокартона позволяет сделать одну из комнат глухой, то есть без естественного освещения. Такое помещение с точки зрения уединённости и отсутствия раздражителей в виде дневного света, будет оптимальным решением для спальни (примеры на фото). Ввиду отсутствия естественного света, следует максимально обеспечить искусственное освещение. Лучшим решением для такой комнаты будут не люстры, а точеные светильники, установленные по периметру потолка, а также бра и торшеры.

- Стеклоблоков
Этот вариант оформления перепланировки достаточно выигрышен, так как позволяет сохранить естественное освещение в отделяемом помещении. Ввиду высокой прочности данного материала, он рассматривается дизайнерами как наиболее вероятный вариант.
- С помощью мебели
Данный способ как из однокомнатной квартиры сделать двухкомнатную, является декоративным, так как в этом случае вам не удастся добиться полного эффекта создания автономных комнат. Кроме того, уровень звукоизоляции не позволяет называть комнату, отделённую методом установки мебели, отдельной (см фото). Преимуществом в этом случае является то, что вентиляция отделяемого помещения будет более естественной, циркуляция воздуха в обоих помещениях не будет нарушаться.

Кроме того, в случае разделения комнаты методом установки стены из гипсокартона и стеклоблоков вам следует задуматься о том, чтобы дверной проём был достаточно большим, так вентиляция в такой комнате тоже отсутствует.
Территория детства
Если высота потолков в вашем жилище выше 2,5 м, в однокомнатной квартире можно соорудить второй этаж, предоставив его в качестве комнаты детям. Такая импровизация позволит разделить её на зоны игрового пространства и спального места ребёнка. Кроме того, в целях экономии пространства, лестницу, ведущую на верхний этаж, можно сделать небольшими тумбами-ступеньками для хранения игрушек, книг или белья фото. Такое оформление комнаты позволит вам сделать как спальное, так и игровое (рабочее) место для ребёнка.
Сделать из однокомнатной квартиры две комнаты также будет актуальна для семей с разнополыми или разновозрастными детьми . Вы можете оформить жилое пространство для каждого ребёнка индивидуально, в зависимости от его пола и возраста. Так в детской комнате мальчикам подходит трек с машинками и зона для игры с конструктором, девочке необходимо место для кукольного домика и стоянка для волшебных пони.

Если малышам дошкольного возраста хватит детского столика для рисования с упаковкой карандашей и фломастеров, то школьникам понадобится серьёзное рабочее место. Эти и другие особенности можно учесть при переделке комнаты в квартире под детскую комнату для мальчика и девочки либо для детей разных возрастов.
Кроме того, если у вас нет других вариантов, как жить с детьми в одной комнате, можно оформить зонирование таким образом, что в одной комнате будет заключено и взрослое, и детское жизненное пространство.