Магия преображения: как из 34 м сделали уютную двушку
- Магия преображения: как из 34 м сделали уютную двушку
- Связанные вопросы и ответы
- Какие существуют способы разделить однушку на две комнаты
- Как выбрать материалы для перегородки, чтобы не уменьшить полезную площадь
- Важно ли согласовывать перепланировку с БТИ
- Какие варианты внутренней двери лучше всего подходят для небольшой квартиры
- Можно ли сделать двушку из 34 м без значительных вложений
- Как правильно рассчитать толщину перегородки, чтобы она была прочной
- Какие современные дизайнерские решения помогут визуально разделить пространство
Магия преображения: как из 34 м сделали уютную двушку
Проблема и решение
Современный ритм жизни часто заставляет нас сталкиваться с ограничением жилой площади. 34 квадратных метра – этоfar не самая большая квартира, но с правильным подходом к планировке и дизайну можно создать уютное и функциональное жилье. В этой статье мы рассмотрим, как превратить небольшую двушку в комфортное место для жизни.
Планировка и дизайн
Первым шагом в преображении любой квартиры является разработка планировки. Для 34 м оптимальным вариантом является открытая планировка, которая визуально увеличивает пространство. Удаление лишних стен и перегородок позволяет создать единое пространство, которое можно разделить на функциональные зоны.
Цветовая гамма и материалы
Выбор цветовой гаммы играет ключевую роль в создании уютной атмосферы. Для небольших помещений рекомендуется использовать светлые тона, которые визуально увеличивают пространство. Например, белые или пастельные стены, светлый пол и минимум темных акцентов.
| Цвет | Эффект |
|---|---|
| Светлые тона | Визуально увеличивают пространство |
| Пастельные оттенки | Создают уютную атмосферу |
| Темные акценты | Добавляют глубину и интерес |
Функциональные зоны
В небольшой квартире важно грамотно организовать функциональные зоны. Кухня, гостиная и спальня должны быть разделены так, чтобы сохранить ощущение единства пространства.
Кухня
Кухня – это сердце любой квартиры. Для 34 м оптимальным вариантом является узкая кухня с линейной планировкой. Такое решение позволяет максимально эффективно использовать пространство.
Гостиная
Гостиная должна быть местом для отдыха и общения. Удобный диван, небольшой столик и телевизор – это основные элементы, которые можно разместить в этой зоне.
Спальня
Спальня – это место для отдыха. Для небольшой квартиры идеально подойдет компактная кровать и встроенные шкафы для хранения вещей.
Хранение
Одной из основных проблем в небольшой квартире является нехватка места для хранения вещей. Решением может стать использование встроенных шкафов, полок и других хранилищ.
- Встроенные шкафы
- Полки
- Контейнеры для хранения
Освещение и текстиль
Освещение играет важную роль в создании уютной атмосферы. Использование нескольких источников света (центральный свет, настольные лампы, гирлянды) позволяет создать необходимый уровень освещенности.
Текстиль также способствует созданию уютной атмосферы. Использование подушек, одеял и ковров может добавить комфорта и тепла в интерьер.
Советы по освещению
- Используйте несколько источников света
- Выбирайте светильники с регулируемой яркостью
- Добавьте гирлянды для создания уютной атмосферы
Советы по текстилю
- Используйте подушки и одеяла в пастельных тонах
- Добавьте ковёр в гостиную зону
- Используйте шторы для разделения пространства
Следуя этим советам, вы сможете создать уютную и функциональную двушку даже на 34 м. Главное – это грамотная планировка, правильный выбор цветовой гаммы и использование всех возможных хранилищ.
Связанные вопросы и ответы:
Вопрос 1: Какие есть преимущества и недостатки преобразования однокомнатной квартиры в двушку
Преобразование однокомнатной квартиры в двушку имеет несколько преимуществ. Во-первых, увеличивается функциональность пространства, что делает жилье более комфортным для жизни. Во-вторых, такая перепланировка может повысить стоимость квартиры при продаже. Однако есть и недостатки. Например, требуется разрешение на перепланировку, которое может быть сложно получить. Кроме того, ремонт может занять много времени и средств. Также стоит учитывать, что разделение пространства может сделать комнаты меньше, что не всем понравится.
Вопрос 2: Как лучше всего разбить пространство в однокомнатной квартире, чтобы сделать ее двушкой
Разделить пространство в однокомнатной квартире можно несколькими способами. Один из самых популярных вариантов — строительство межкомнатной перегородки. Это позволяет создать две отдельные комнаты. Также можно использовать раздвижные двери или шумопоглощающие экраны для разделения пространства. Еще один вариант — возведение второго уровня, например, мансарды или ложного потолка, но это требует более сложных конструктивных изменений. Важно учитывать, что перепланировка должна соответствовать требованиям безопасности и нормам строительства.
Вопрос 3: Какие документы необходимы для легализации перепланировки однокомнатной квартиры в двушку
Для легализации перепланировки однокомнатной квартиры в двушку необходимо собрать пакет документов. Во-первых, требуется проект перепланировки, который должен быть разработан лицензированным архитектором или проектировочной организацией. Во-вторых, нужно получить разрешение на проведение строительных работ от местных властей. Также потребуется заключение экспертизы, подтверждающее, что перепланировка не нарушает конструктивную безопасность здания. После завершения работ необходимо пригласить комиссию для осмотра и составления акта о завершении работ. Без этих документов перепланировка будет считаться незаконной.
Вопрос 4: Сколько времени занимает перепланировка однокомнатной квартиры в двушку
Время, необходимое для перепланировки однокомнатной квартиры в двушку, зависит от сложности проекта и объемов работ. Если речь идет о простом разделении пространства с помощью легкой перегородки, то работы могут занять около 2-3 недель. Однако, если требуется возведение капитальных стен, установка дверей, проведение коммуникаций и другие работы, то сроки могут увеличиться до 2-3 месяцев. Также важно учитывать время на получение необходимых разрешений и проведение экспертиз, что может занять дополнительные 1-2 месяца.
Вопрос 5: Какие материалы лучше всего использовать для перепланировки однокомнатной квартиры в двушку
Для перепланировки однокомнатной квартиры в двушку можно использовать различные материалы, ty thuc от ваших потребностей и бюджета. Для строительства перегородок хорошо подходят гипсокартонные конструкции, которые легкие, недорогие и легко монтируются. Если требуется более прочная конструкция, можно использовать кирпич или пеноблоки. Для отделки стен и потолков можно использовать штукатурку, покраску или облицовку панелями. Пол можно выстелить ламинатом, паркетом или плиткой, в зависимости от ваших предпочтений. Также важно использовать качественные материалы для дверей и окон, чтобы обеспечить звукоизоляцию и комфорт.
Вопрос 6: Какая приблизительная стоимость перепланировки однокомнатной квартиры в двушку
Стоимость перепланировки однокомнатной квартиры в двушку может варьироваться в широком диапазоне, в зависимости от сложности проекта и материалов. В среднем, стоимость может начинаться от 150 000 рублей за простое разделение пространства с помощью гипсокартонных конструкций. Если требуется возведение капитальных стен, установка дверей, проведение коммуникаций и другие работы, то стоимость может достигать 500 000 рублей и выше. Также необходимо учитывать расходы на получение разрешений, проведение экспертиз и другие сопутствующие расходы.
Вопрос 7: Как сделать перепланировку однокомнатной квартиры в двушку максимально практичной и функциональной
Чтобы сделать перепланировку однокомнатной квартиры в двушку максимально практичной и функциональной, необходимо тщательно продумать планировку. Во-первых, важно сохранить достаточное количество свободного пространства в каждой комнате, чтобы жилье было комфортным. Во-вторых, стоит предусмотреть места для хранения, например, встроенные шкафы или полки. Также важно правильно распределить освещение и обеспечить хорошую звукоизоляцию между комнатами. Кроме того, можно использовать многофункциональную мебель, чтобы сэкономить пространство. Наконец, важно учитывать ваши личные предпочтения и образ жизни при проектировании интерьера.
Вопрос 8: Как выбрать подрядчика для перепланировки однокомнатной квартиры в двушку
Выбор подрядчика для перепланировки однокомнатной квартиры в двушку требует тщательного подхода. Во-первых, стоит поискать рекомендации у друзей или знакомых, которые уже проводили подобные работы. Во-вторых, необходимо проверить отзывы и портфолио потенциальных подрядчиков. Также важно заключить официальный договор, в котором будут указаны все сроки, объемы работ и стоимость. Кроме того, стоит требовать гарантии на выполненные работы и обеспечить возможность контроля за процессом. Наконец, важно убедиться, что подрядчик имеет необходимые лицензии и сертификаты для проведения таких работ.
Какие существуют способы разделить однушку на две комнаты
Комнату в современной квартире не тяжело разделить на несколько частей и для этого совсем не нужно строить дополнительную стену в помещении. Как же можно разделить комнату и какие методы сейчас используют?

Перегородки из кирпича или блока
Для того чтобы построить в своей комнате стационарную перегородку для разделения ее на две зоны нужно что бы в вашей комнате должно быть минимум 2 окна.

Для изготовления перегородки используют следующие материалы:
- кирпич;
- пено- и шлакоблоки;
- гипсокартон прикрепленный на металлической профиль;
После возведения такой перегородки комната полноценно разделяется на 2 зоны, которые могут выступать самостоятельными комнатами. Для того что бы в данных комнатах было светлее стоит сделать акцент на искусственном освещении.
Передвижные перегородки
Такая перегородка в плане установки несколько сложная конструкция . Для ее правильной установки нужно будет установить несколько направляющих из металла на пол и потолок комнаты.
После усердного измерения высоты комнаты на самой перегородке нужно разместить специальный механизм в виде металлических роликов. Ролики должны быть металлическими, потому что при установки пластиковых роликов срок износа значительно сокращается. Стоит помнить, что при использовании передвижной перегородки металлический нижний рельс нуждается в периодической очистке.

Полотно перегородки можно изготовить из следующих материалов:
- дерево;
- полотно из гипсокартона, для изготовления которого также понадобится металлический каркас из метало профиля;
- стекло достаточной толщины и закалки, которое можно оснастить оригинальным орнаментом;
- пластиковое полотно, которое также можно оснастить орнаментом;
Данная перегородка занимает достаточно немного места, является легкой и подвижно, но пропускает шум.
Ширма
Еще одним, правда временным способом разделения помещения комнаты может быть ширма, что обычно применяется для отделения зоны для переодевания или своеобразного рабочего места в уединении. Ширмы что складываются, обычно изготавливают из тонкого слоя дерева или пластика. Положительными качествами ширмы является то что ее легко перенести в любое место комнаты, а также профессионально подобраный цвет ширмы дополнит ваш интерьер.

Шторы
Если применять в целях зонирования ткань тогда обстановка в комнате станет более уютной и приятной. Их можно применять при зонировании спальных комнат и гостинных, но ни в коем случае на кухне так как материал штор будет пропитываться запахом и пачкаться.

Для того чтобы правильно создать перегородку из ткани, стоит подготовить следующие элементы:
- карнизы, которые прикрепить на стене или потолке;
- материал для изготовления ширмы просчитав ширину, длину ткани;
- мелкие детали для того чтобы подвесить ткань (кольца, крючки зацепы и т.д.).
Разделение комнаты на две части с помощью мебели
Как правильно разделить комнату на две зоны используя мебель? При разделении помещения с помощью мебели сразу решается две проблемы, а именно создание отдельного помещения и возможность хранения вещей. Какие же существуют варианты зонирования с помощью мебели:
- Стеллаж
Ограждение помещения с помощью стеллажа является самым простым вариантом зонирования, что является универсальным и подходит практически для любой комнаты. Полки стеллажей могут быть заставлены как книгами так и любыми безделушками для декорирования.

Как выбрать материалы для перегородки, чтобы не уменьшить полезную площадь
В первую очередь нужно разобраться с терминологией. Межкомнатные перегородки – это любые стены, не являющиеся несущими. Выше мы упоминали о том, что в настоящее время квартиры в новостройках в большинстве случаев не делят на зоны и планировкой помещений занимаются новые владельцы квартир. Неудивительно, что многих новоселов беспокоит вопрос, из чего делать перегородки в квартире новостройки?
Выбор материала для стен должен осуществляться с учетом особенностей зонируемого помещения. Только зная, в какой комнате будут возводиться разделяющие конструкции, можно выбрать подходящий по всем параметрам материал. При этом нужно учитывать и особенности самого дома. Объясним почему.
Возведение любой стены вызывает увеличение нагрузки на пол в комнате, а точнее, на перекрытие в доме. Поэтому если перекрытия не отличаются высокой прочностью и существует ограничение по нагрузке на них (к примеру, они деревянные), то делать стены в квартире следует из легких материалов. Каркас можно соорудить из металла или дерева и обшить его гипсокартоном. При условии, что перекрытия прочные (например, бетонные плиты), для возведения перегородок можно использовать кирпич или легкие бетонные блоки.

Существуют и другие требования, обязательные к соблюдению при зонировании пространства в квартире с помощью перегородок. Перечислим основные запреты:
- Не допускается делать капитальные стены с целью увеличить кухонное пространство, расширить ванную комнату или туалет за счет жилой площади.
- Не разрешается уменьшение площади кухни или санузла с целью расширить жилое пространство.
- Недопустимо оборудование ванной и туалета над кухонной зоной квартиры этажом ниже.
- Нельзя переносить кухонную зону в жилую.
- В газифицированных домах запрещено объединение кухни с жилыми помещениями.
- Не допускается разделение пространства на несколько жилых комнат, если имеется только один источник естественного света (окно).
- Недопустим снос несущих стен, как и перенос их на другое место.
Ниже мы расскажем об основных материалах, из которых можно делать перегородки в квартирах, и отметим их основные преимущества и недостатки.
Важно ли согласовывать перепланировку с БТИ
Тема переустройства, перепланировки и реконструкции очень ёмкая. Но достаточно популярная. Кто не задумывался о том, чтобы изменить конфигурацию своей квартиры? Особенно в жилье старого формата.
Вроде бы все просто: получил разрешение, сделал все в соответствии с требованиями, получил акт приемки и подал все сведения в Росреестр. Но как на деле все получается?
Регламентируется данная процедура главой 4 Жилищного кодекса РФ.
Переустройство помещения в многоквартирном доме (Далее - МКД) представляет собой установку, замену или перенос инженерных сетей, санитарно-технического, электрического или другого оборудования, требующие внесения изменения в технический паспорт помещения в МКД.
Перепланировка помещения в МКД представляет собой изменение его конфигурации, требующее внесения изменения в технический паспорт помещения в МКД, может включать: перенос и разборку перегородок, перенос и устройство дверных проемов, разукрупнение или укрупнение многокомнатных квартир, устройство дополнительных кухонь и санузлов, расширение жилой площади за счет вспомогательных помещений, ликвидация темных кухонь и входов в кухни через квартиры или жилые помещения, устройство или переоборудование существующих тамбуров.

Важные моменты, которые мы отметили:
Существуют виды перепланировок, которые узаконить не получится . В их числе:
- расширение санузлов и перенос мокрых зон в сухие (кухню в жилую комнату переносить нельзя - устройство своей кухни под санузлом или своей жилой комнаты под кухней или санузлом расположенной этажом выше квартиры);
- объединение лоджии или балкона с внутренними помещениями;
- снос несущих стен и колонн;
- вынос радиаторов на лоджию или балкон;
- подключение теплых полов к центральному отоплению;
- присоединение технических помещений (расширили квартиру за счет чердака или общей части подъезда);
- изменение фасада здания (например, замена обычных окон панорамными);
- объединение газифицированного помещения с жилой комнатой.
Некоторые изменения узаконить довольно просто, так как они не влияют на функционал здания. Возможные варианты перепланировочных работ:
- снос встроенной мебели, если она предполагалась в помещении при сдаче первому владельцу;
- заделка проходов в несущих стенах (не ломать, а строить);
- перемещение газовой или электроплиты, раковины на кухне;
- перенос сантехники в пределах одного помещения (поменяли ванну с унитазом местами);
- монтаж или снос межкомнатных перегородок, не являющихся несущими.
Нужно ли согласовывать перепланировку нежилого помещения, надо ли изготавливать проект и техзаключение?
Если речь идет о многоквартирном доме (трех- или двухквартирных) – обязательно.
За соблюдением собственниками объектов требований ЖК РФ следит Жилищная инспекция.
Ответственность за незаконную перепланировку нежилого помещения в многоквартирном доме предусмотрена законом. Ст. 26 ЖК РФ установлены основания для переустройства помещения в МКД. При проведении перепланировки и переустройства следует соблюдать эти правила, особенно что касается санитарно-эпидемиологических требований Роспотребнадзора, норм вентиляции помещений, учет конструктива пола и перекрытий.
Изучая тему наткнулись на фразу, что нужно согласовывать замену конструкции полов, если дом с деревянными перекрытиями.
Полезли искать. изменение конструкции пола не является перепланировкой/переустройством помещения в МКД в силу ч. 1, 2 ст. 25 ЖК РФ.
При этом в Постановлении правительства Москвы от 25.10.2011 г. N 508-ПП, в перечне работ, которые необходимо согласовывать значится: «Устройство послойной конструкции пола». Поэтому нужно обращать внимание еще и на региональные регламенты.


Для получения разрешения на перепланировку вам необходимо принести в жилищную инспекцию:
- Документ, подтверждающий право собственности;
- Технический паспорт жилья;
- Заявление (бланк выдадут по месту обращения);
- Проект или эскиз перепланировки в двух экземплярах.
Можно подать документы в МФЦ или на сайте Госуслуг.(Если дом представляет историческую и культурную ценность, то эти же документы нужно отнести в департамент культурного наследия).
Ответ вам обязаны предоставить в течение 45 дней. Если все оформлено правильно, вы получите разрешение .
Важно отметить, что срок действия разрешения ограничен : в разных регионах от отличается и составляет от 12 до 18 месяцев. НО если вы не успели – то можно подать заявление на продление.
После он утратит силу независимо от того, реконструировали объект или нет.
Какие варианты внутренней двери лучше всего подходят для небольшой квартиры
Выбирая дверь для маленьких помещений, стоит учитывать ее стиль, обращая внимание на материал изготовления, конструкцию, цвет и оттенок, а также декор. Рассмотрим основные моменты, на которые следует обращать внимание при выборе межкомнатных дверей для маленьких комнат:
- Материал. Для маленького помещения не подойдут большие двери из массива древесины или металла, так они будут смотреться громоздко, зрительно уменьшая пространство. Выбирайте дверной блок, изготовленный из легких материалов, к примеру, из ПВХ. В маленьком помещении он будет смотреться более органично;
- Декор. Чтобы в ограниченном пространстве дверь не выглядела приземистой, нужно избегать насыщенного декора, например, филенок или резьбы. Зато отлично будут смотреться декоративные стеклянные вставки, которые визуально увеличат пространство, сделав его более легким;
- Цвет. Для небольшой комнаты оптимальным решением станет светлая дверь. Подойдут покрашенные дверные блоки или двери из шпона под светлую древесину. Не стоит выбирать конструкции темных либо ярких цветов, так как они поглощают свет, тем самым скрадывая пространство;
- Конструкция. Для помещений небольшой площади более всего подойдут раздвижные двери, ведь для закрывания/открывания их створок не нужно дополнительное пространство, которое можно оставить свободным или поставить туда что-либо. А вот столь популярные у многих распашные двери для небольших комнат не подойдут, поскольку при открытии и закрытии они занимают много места.
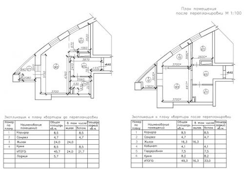
Можно ли сделать двушку из 34 м без значительных вложений
При расчете минимальной толщины гипсокартонной перегородки необходимо учесть множество параметров. Будет ли в ней звукоизоляция, какой профиль используется, как много листов для обивки – всё это увеличивает сечение на 1-2 см. В итоге конструкция может получиться не больше 8 см, либо больше 15 см.
Если главная цель возведения перегородки – экономия пространства, то используют тонкий металл 50 и листы ГКЛ 12,5. Если выбора совсем нет, и нужно сделать сечение еще меньше, выбирают листы 9,5 мм, но этого делать специалисты не советуют.
Складывают размер металлической рейки с суммарной толщиной листов (9,5 или 12,5 мм): 50 мм профиля + 9,5 и 9,5 мм = 69 мм при использовании максимально тонких листов. При применении классических ГКЛ 12,5 мм ширина увеличивается на 6 и равна 75 мм.
Минимальное сечение листов может использоваться только в том случае, если не предусмотрена установка дверей. Также не следует выбирать такой тип, если стена ставится в месте, где опционально человек может удариться локтем или упасть в этом пространстве.
Если же стена должна быть прочной, но при этом необходимо максимально сократить ее сечение, используют профиль 50 и двойную обшивку с одной или обеих сторон. Вот, как можно усилить каркас в этом случае:
- использовать попранное соединение стоечного профиля в шаге 60 см между ними;
- добавить бруски 5 на 5 см в сечении, вложив их в стойки;
- уменьшить расстояние между вертикальными ребрами опоры каркаса до 40 см.
Толщина в этом случае при двухсторонней обшивке одним слоем ГКЛ получится 75 мм, а если обшить двумя слоями полотен, то 100.
Добавление шумоизоляции
Если внутри будет использоваться слой шумоизоляции, либо планируется проведение водопровода, электрики, канализации, то используют расширенный профиль 100. Если прочность не должна быть высокой, применяют обычные полотна ГКЛ с однослойной обшивкой каркаса, в результате получается: 100 профиля + два листа по 12,5 = 125 мм готовой стены.
Если же нужно максимизировать уровень поглощения шума, то внутри укладывают прочный слой ваты, а сам каркас делают двойным. Для этого ставят 50 профиль в шаге от 5 до 10 мм друг от друга. Под направляющими конструкции кладут демпферную ленту – сверху и снизу.
Каркас заполняют минеральной ватой 60 х 10 см. Обшивают конструкцию 2 полотнами ГКЛ с обеих сторон. В результате получится следующая толщина: 2 каркаса по 50 мм, зазор 5, 4 ГКЛ при 2-слойной обшивке по 12,5 = 155 мм. Если зазор увеличен до 10 мм, то размер стены будет 160 ровно.
Как правильно рассчитать толщину перегородки, чтобы она была прочной
механизм
не стоит путать перегородки и двери шкафа-купе. в отличие от последних, у перегородок отсутствует нижний трек, механизм устанавливается в верхней части проема. это сделано для того, чтобы вам ничто не мешало и вы не спотыкались о рельс, вмонтированный в пол. Перегородка UNION.размера проема
в случае, если проем недостаточно широкий и вам хочется оставить его полностью свободным для прохода, лучше установить перегородку, створки которой двигаются вдоль стены. для проемов шириной от двух метров подойдут перегородки со створками, которые устанавливаются внутри проема и двигаются в обе стороны. при работе с пространствами большой ширины каждый случай рассматривается отдельно: максимальная ширина створки ограничена, так что для проема шириной в три метра можно использовать три створки по метру каждая.особый подход необходим и при установке перегородок в помещениях с высокими потолками (например, в зданиях старого фонда): перегородки для таких квартир предлагают далеко не все производители, однако у union подходящее решение можно найти. максимальный размер полотен union составляет 3,5 х 1,2 м, так что у заказчика и дизайнера будет шанс подобрать наиболее оптимальное соотношение размеров и количества створок, в том числе и для нестандартных проемов. Перегородка UNION.материалы
если вы заказываете перегородку со вставками из стекла, убедитесь в его травмобезопасности. существует специальное закаленное стекло: если оно разобьется, то рассыпется в мелкую крошку. также есть многослойное стекло триплекс: между двумя стеклами размещается незаметная глазу пленка, и разбившееся стекло остается на ней.стеклянное полотно может быть выполнено с обрамлением или без — в первом случае конструкция будет более надежной. в перегородках union травмобезопасное стекло обрамляют профили из алюминия: это надежный, прочный, но при этом легкий материал. Проект Гавриила и Маргариты Вербицких, IDOL DESIGN. Раздвижная перегородка UNION.Какие современные дизайнерские решения помогут визуально разделить пространство
- Блог
Естественный свет считается самым безопасным для глаз человека, кроме того, он положительно влияет на цветовосприятие. Многие из нас хотели бы заменить привычные светильники и люстры на мягкий солнечный свет. Поэтому каждый хоть раз задавался вопросом, как организовать естественное освещение дома правильно. Задуматься об этом нужно уже на этапе проектирования здания. Даже если этот момент был упущен, решение есть. Например, можно встроить световоды в крышу дома.
Преимущества естественного освещения и польза для здоровья
Естественный свет обладает массой преимуществ. Он не только создает уютную атмосферу в помещении и помогает обустроить комфортное рабочее место, но и полезен для здоровья. Например, естественный свет:
- Способствует выработке витамина D в организме. Это важное вещество, помогающее поддерживать нормальное состояние костей и сердечной мышцы. Также витамин D положительно влияет на фигуру и предотвращает развитие онкологических заболеваний. Солнечный витамин вырабатывается в организме независимо от того, где вы находитесь: на улице или дома.
- Нормализует работу нервной системы. Для некоторых осень — пора золотых листьев, согревающего чая и тыквы. У остальных же в этот сезон наблюдаются отрицательные психологические изменения. Нередко возникают депрессивные расстройства. Избежать этого помогает достаточное количество естественного освещения.
- Нормализует сон. Ночной отдых и умственное здоровье связаны друг с другом. На них существенно влияет солнечный свет. Исследования показывают, что чем больше естественного света получает человек днем, тем крепче он спит ночью.
- Уменьшает вред от искусственного освещения. Современные лампы считаются безопасными, однако они могут негативно влиять на зрение и нервную систему. Искусственное освещение повышает вероятность возникновения чувства усталости в глазах и мигреней.
Как организовать естественное освещение в жилом доме
Казалось бы, решение очевидно: нужно просто распахнуть шторы или жалюзи, и дневной свет будет проникать в квартиру в больших количествах. Однако не все так просто. Некоторые дома получают мало дневного света по другим причинам. Правильно организовать естественное освещение помогут следующие рекомендации:
- Установите несколько больших зеркал. Солнечный свет, проникающий через окна, будет отражаться и равномерно распределяться по помещению. Главное, правильно выбрать место установки. Например, некоторые делают зеркальные потолки. Чаще встречаются шкафы с зеркальными дверцами.
- Избавьтесь от тяжелых, плотных портьер, препятствующих проникновению солнечного света. Это станет важным этапом организации естественного освещения в жилом доме. Кроме того, проникающий через окно солнечный свет становится естественным будильником. Нормализуется циркадный ритм, из-за чего пробуждение становится менее тяжелым.
- Используйте правильные тона при оформлении помещения. Лучше всего отражают свет белые покрытия. Конечно, это значит, что нужно превратить дом в больничную палату ради естественного света. Можно выбрать более приятные светлые цвета. Хорошо смотрится в жилых помещениях пастельная гамма. Большую часть естественного света поглощает темный пол. Его нужно покрыть светлым ковром.
Световоды SOLARGY
Это инновационное решение в сфере естественного освещения жилых домов и производственных помещений. Световод прокладывается через чердак и этажи. Зенитный фонарь улавливает максимальное количество солнечного света и равномерно распределяет его по помещению. Такие конструкции имеют следующие преимущества:
- Широкую сферу применения. Световод можно устанавливать на любую крышу.
- Нетребовательность в обслуживании. Не имеют компонентов, требующих регулярной замены.
- Экономичность. Световоды помогают экономить до 60% энергии.
В нашей компании вы можете заказать проектирование, изготовление и монтаж световода SOLARGY под ключ.