Интерьер и декор

Сотни идей для Вашего интерьера!

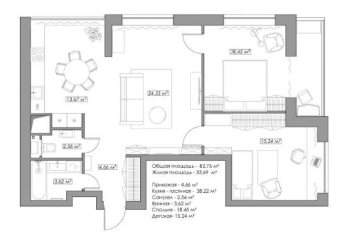
Нюдовая трёхкомнатная квартира с мягкой и спокойной атмосферой.

16.01.2026 в 09:44

Эта квартира оформлена в нежной нюдовой палитре, которая создаёт ощущение света, уюта и визуального простора. Объединённая кухня - гостиная стала сердцем дома, где легко собираться всей семьёй или принимать гостей. Центральное расположение диванной зоны сделало пространство сбалансированным и логично организованным. Мягкие оттенки подчёркивают естественное освещение и добавляют интерьеру ощущение спокойствия и гармонии. Такой дизайн не перегружает, но при этом выглядит современно и стильно.
Нюдовая трёхкомнатная квартира с мягкой и спокойной атмосферой.

Нюдовая трёхкомнатная квартира с мягкой и спокойной атмосферой. 01
Площадь: 83 кв. м.

Нюдовая трёхкомнатная квартира с мягкой и спокойной атмосферой. 02
Нюдовая трёхкомнатная квартира с мягкой и спокойной атмосферой. 03
Нюдовая трёхкомнатная квартира с мягкой и спокойной атмосферой. 04
Нюдовая трёхкомнатная квартира с мягкой и спокойной атмосферой. 05
Нюдовая трёхкомнатная квартира с мягкой и спокойной атмосферой. 06
Нюдовая трёхкомнатная квартира с мягкой и спокойной атмосферой. 07
Нюдовая трёхкомнатная квартира с мягкой и спокойной атмосферой. 08
Нюдовая трёхкомнатная квартира с мягкой и спокойной атмосферой. 09