Как превратить однушку в двушку: советы и хитрости
- Как превратить однушку в двушку: советы и хитрости
- Связанные вопросы и ответы
- Возможно ли законно преобразовать однокомнатную квартиру в двушку
- Сколько стоит преобразовать однокомнатную квартиру в двушку
- Сколько времени занимает преобразование однокомнатной квартиры в двушку
- Какие лучшие способы разделить однокомнатную квартиру на два отдельных помещения
- Нужны ли специальные разрешения для преобразования однокомнатной квартиры в двушку
- Какие дизайнерские решения подходят для преобразования однокомнатной квартиры в двушку
- Можно ли установить перегородную стену в однокомнатной квартире, чтобы создать два отдельных помещения
Как превратить однушку в двушку: советы и хитрости
Однокомнатная квартира – это отличное решение для молодых семей, пар и даже одиноких людей, которые ценят уют и компактность. Однако по мере роста семьи или изменения потребностей возникает вопрос: как увеличить жилую площадь без покупки новой квартиры? Ответ прост – перепланировка! В этой статье мы расскажем, как превратить однушку в двушку, используя проверенные советы и хитрости.
Планировочные решения
Перед началом работ важно продумать, как именно вы хотите изменить свою квартиру. Существует несколько вариантов перепланировки, которые помогут вам создать дополнительное помещение.
1. Демонтаж стен
Одним из самых популярных способов увеличить площадь – это объединение жилой комнаты с кухней или коридором. Это не только визуально увеличивает пространство, но и делает квартиру более просторной.
Для этого необходимо:
- Получить разрешение в БТИ.
- Проверить, какие стены можно демонтировать (несущие стены демонтировать запрещено).
- Привлечь специалистов для выполнения работ.
2. Совмещение с балконом или лоджией
Если ваша квартира имеет балкон или лоджию, вы можете оформить его в полноценную комнату. Для этого необходимо:
- Остеклить балкон.
- Утеплить стены и пол.
- Установить двери и окна.
Таким образом, вы получите дополнительное помещение, которое можно использовать как кабинет, детскую или гостиную.
3. Модульные конструкции
Если вы не хотите заниматься сложными перепланировками, можно использовать модульные конструкции. Например, установить перегородку, которая разделит комнату на два отдельных помещения.
Преимущества этого метода:
- Отсутствие необходимости получения разрешений.
- Возможность быстро изменить планировку в случае необходимости.
- Низкая стоимость работ.
Дизайн и интерьер
После того как вы определились с планировкой, важно продумать дизайн интерьера. Это поможет создать уютную и функциональную обстановку.
1. Зонирование пространства
Если вы не хотите устанавливать перегородки, можно использовать зонирование. Например, разделить комнату на зоны с помощью:
- Штор или тюля.
- Различных цветов стен.
- Функциональной мебели.
2. Выбор цветовой гаммы
Цвета играют важную роль в создании уютной атмосферы. Используйте светлые оттенки, чтобы визуально увеличить пространство. Темные цвета лучше использовать для акцентов.
3. Функциональная мебель
Выбирайте мебель, которая сочетает в себе функциональность и компактность. Например, диваны с подъемными механизмами, столы-трансформеры и т.д.
Юридические аспекты
Перед началом перепланировки важно обратить внимание на юридические аспекты. Это поможет избежать проблем с властями и соседями.
1. Получение разрешений
Для проведения перепланировки необходимо получить разрешение в БТИ. Для этого вам понадобится:
- Проект перепланировки.
- Согласие соседей (если работы могут повлиять на их квартиры).
- Разрешение от управляющей компании.
2. Согласование проекта
Проект перепланировки должен быть разработан профессиональным архитектором. Это гарантирует, что все работы будут выполнены в соответствии с строительными нормами и правилами.
3. Учет соседей
Если ваши работы могут повлиять на соседей (шум, вибрации и т.д.), обязательно предупредите их заранее. Это поможет избежать конфликтов.
Итог
Перепланировка однокомнатной квартиры в двушку – это сложный, но вполне выполнимый процесс. Главное – продумать все детали, получить необходимые разрешения и привлечь квалифицированных специалистов. С помощью наших советов и хитростей вы сможете создать уютное и функциональное жилое пространство, которое будет соответствовать вашим потребностям.
Связанные вопросы и ответы:
Вопрос 1: С чего начать перепланировку одной комнаты в двукомнатную квартиру
Для начала необходимо четко определить, чего вы хотите достичь, то есть какая площадь и планировка вам нужна. Затем стоит обратиться к специалистам, таким как архитектор или строитель, которые помогут создать проект и убедиться, что ваша идея реализуема. После этого необходимо получить разрешение на перепланировку в соответствующих органах. Также важно учесть бюджет и сроки выполнения работ. Наконец, выберите надежного подрядчика, который возьмет на себя ответственность за выполнение всех работ по проекту.
Вопрос 2: Какие стены можно демонтировать при перепланировке
При перепланировке важно знать, какие стены являются несущими, а какие нет. Несущие стены нельзя демонтировать, так как они держат нагрузку всего дома. Ненесущие стены, то есть перегородки, можно сносить для объединения пространства. Перед демонтажем обязательно проконсультируйтесь с chuynистом, чтобы не нанести ущерба конструкции здания. Также важно учитывать, что демонтаж стен может повлиять на звукоизоляцию и безопасность.
Вопрос 3: Как построить новую перегородку при перепланировке
Строительство новой перегородки требует тщательного планирования. Сначала определите, где будет находиться стена, и убедитесь, что это не нарушит структуру здания. Затем выберите материал для перегородки, например, гипсокартон или кирпич. Установите каркас и обшейте его выбранным материалом. Не забудьте про дверной проем и установку двери. Также важно обеспечить звукоизоляцию, используя специальные материалы.
Вопрос 4: Как оформить документацию для перепланировки
Для перепланировки необходимо оформить проект, который включает планы и схемы будущей квартиры. Затем подайте заявку в жилищную инспекцию или другие соответствующие органы для получения разрешения. Вам также понадобятся согласования от соседей, особенно если вы планируете вести шумные работы или менять структуру стен. После завершения работ необходимо пригласить комиссию для осмотра и оформления акта о завершении перепланировки.
Вопрос 5: Как расширить жилую площадь за счет лоджии или балкона
Для расширения жилой площади можно присоединить лоджию или балкон к основной комнате. Сначала необходимо утеплить лоджию или балкон, установить двойные окна и обшить стены утепляющими материалами. Затем можно демонтировать перегородку между комнатой и лоджией, создав единое пространство. Также важно оформить разрешение на такие изменения в жилищной инспекции. После завершения работ ваша квартира станет просторнее и комфортнее.
Вопрос 6: Какие материалы лучше использовать для шумопоглощающих конструкций
Для шумопоглощающих конструкций можно использовать материалы с высоким коэффициентом звутоизоляции, такие как минеральная вата, пенопласт или специальные шумопоглощающие плиты. Также можно применять двойные стены или стены с воздушной полостью. Для потолков и полов используют звукоизоляционные материалы, такие как пробка или резиновые прокладки. Кроме того, можно устанавливать шумопоглощающие двери и окна. Все это поможет создать тишину и комфорт в вашей квартире.
Вопрос 7: Как увеличить полезную площадь без значительных вложений
Одним из способов увеличить полезную площадь без больших вложений является использованиеtransformer мебели, такой как кровати-шкафы или столы, которые можно сложить. Также можно использовать вертикальное пространство, устанавливая полки и шкафы до потолка. Еще один способ – объединение комнат, например, гостиной и кухни, что создает ощущение простора. Кроме того, можно использовать светлые цвета и зеркала, которые визуально увеличивают пространство.
Вопрос 8: Какие современные технологии и материалы можно использовать для перепланировки
Современные технологии и материалы могут значительно улучшить вашу квартиру. Например, можно использовать модульные стены, которые легко устанавливаются и демонтажируются. Также популярны inteligentные дома, где все системы управляются через смартфон. Для отделки можно применять экологичные материалы, такие как bambуковая доска или натуральный камень. Кроме того, можно установить системы вентиляции и очистки воздуха, которые улучшат качество жизни в квартире.
Вопрос 9: Как сохранить единство стиля после перепланировки
Для сохранения единства стиля после перепланировки важно разработать общий дизайн-проект, который учитывает все детали, от цветовых решений до стиля мебели. Выберите основную цветовую гамму и материалы, которые будут использоваться во всей квартире. Также важно учесть освещение, которое должно быть согласовано с общим стилем. Не забудьте про текстиль и декоративные элементы, которые помогут создать единую атмосферу. Консультируйтесь с дизайнером, если вы хотите добиться идеального результата.
Вопрос 10: Как выбрать надежного подрядчика для перепланировки
Выбор надежного подрядчика для перепланировки – это важный шаг. Сначала поищите рекомендации у друзей или знакомых, которые уже делали подобные работы. Проверьте отзывы и порфолио подрядчика. Также важно заключить официальный договор, в котором будут указаны все сроки, объемы работ и условия оплаты. Убедитесь, что подрядчик имеет необходимые лицензии и сертификаты. Наконец, проконтролируйте выполнение работ на каждом этапе, чтобы убедиться в их качестве.
Возможно ли законно преобразовать однокомнатную квартиру в двушку
Девочки спасибо вам огромное!!!!если бы не ВЫ!!! так бы и сидели мы на попе ровно думая что все возможно!!через скандал(ну так.. немного не допоняли друг друга) с мужем, который (в итоге признал! что я права )))))посоветовавшись с сотрудником БТИ), после кучи звонков!!принято решение брать в этом же доме однушку но 52 кв., трудности пока только в ипотеки которую надопере одобрить…но кредитный менеджер вроде обещал что все будет окееее
в агенстве сказали что документы будут готовиться в течении месяца…так что через месяц я точно скажу получилось или нет))мало ли какие обстоятельства..ну а пока Простите что отняла ваше время!!Вы нам очень помогли!!приду к Вам еще не один раз за советом)))
План квартиры пока только такой, видели ее в реальности, она сразу кажется намного больше первой.. 
Кухню скорее всего перенесем, в коридор где шкаф…а там видно будет..вообще в БТИ сказали что это вполне реально узаконить..главное крепкие нервы,круглую сумму денег, и время пол года….
В общем держим кулачки девочки))
охохо настроение на 0…вначале все казалось так радужно…а теперь..в общем решили брать квартиру в ипотеку, с родителям живем 7 лет вместе, копили копили, и конечно не успеваем за рынком никак, в итоге имеем половину суммы…муж уперся что квартиру нужно здесь,Редактирую: т.к здесь инфраструктура хорошая, до работы доехать реально,дом уже готов)))(я бы наверно уехала и за 50 км…но мужа тоже жалко , путь до работы будет долгим.)и т.д. и т.п…..ладно как итог "имеем"(срок сдачи конец 15, дом уже построен идет отделка) квартира однушка общей площадью 44 кв. жилая 40. Теперь надо придумать как из однушки сделать двушку….пока есть три варианта итак вот что имеем по метражу(красной ручкой обведено.
Под срезом наши варианты.
итак первый вариант и любимый вариант мужа это.. перенести кухню в жилую комнату, я против, переживаю что кто-нибудь пойдет и пожалуется что им мешает шум воды-вытяжки. Плюс такую перепланировку точно не узаконить. Муж говорит что сделаем, шумо-гидро изоляцию, все будет оке. Что миллионы людей так делают, и потом спокойно продают такие квартиры. Вариант на самом деле то самый оптимальный и кухонька нормальная получается, и комната для нас нормальная останется, и для ребенка пока 8 кв. нормально(здесь хочу уточнить что сейчас мы трое живем в 9 кв. метрах.) Но не дает мне покоя этот незаконный перенос кухни. 
Вариант номер два кухня остается на своем месте мы делим большую комнату на две части, ребенку комната с окном, нам темная. Муж этого варианта вообще не одобряет, а я сомневаюсь только в одном моменте, ненавижу духоту!!Обожаю спать с открытыми окнами и что бы только нос из под одеяла торчал. Ладно Летом-Весна этот вопрос может решить кондиционер, а зимой…мне кажется никакая вентиляция не справится с этим вопросом. С другой стороны плюс что кухня останется полноценной и можно будет использовать ее как и гостиную)) 
ну и третий вариант…который мне так нравился в голове.. а потом разонравился…это кухня остается на своем месте но отгородить стенной по всей ширине квартиры, получится закуток кухонный, + обеденная зона , куда даже встанет диван и шкаф. но комнатушки получаться клетушки…по 8 метров,и кухонный уголок макс.4 кв. 

Сколько стоит преобразовать однокомнатную квартиру в двушку
Владельцы однокомнатных квартир со стандартной планировкой сталкиваются с определенными неудобствами, когда нужно организовать место для сна. В этом случае, в гостиной ставят диван, который вечером раскладывают для сна, а утром собирают.
Метод этот совсем неудобный. Кроме того, раскладной диван меньше подходит для сна, чем полноценная кровать.
Еще один вариант — поставить еще и кровать. В этом случае отпадает необходимость возиться с диваном по утрам. Но в комнате становится слишком много мебели. Кроме того, нет приватного пространства, в котором можно комфортно спать. Особенно это касается квартир, в которых живут несколько человек.
Чтобы отделить спальную зону от остальной гостиной, дизайнеры придумали зонирование интерьера. С его помощью можно разграничить пространство. Гостиную делят на зоны с помощью мебели, ширм, штор, стеклянных или деревянных перегородок. Также определенную зону можно выделить с помощью света и цвета отделки.
Когда в квартире проживает семья с детьми, можно выделить не только спальную, но и детскую, рабочую зону и зону отдыха. Работать или заниматься учебой проще, если находишься не у всех на виду. Благодаря зонированию в одной комнате можно создать несколько пространств: для сна, работы или учебы. Площадь помещения используется максимально, а сами зоны не кажутся тесными.
Зонировать помещение значительно дешевле, чем создавать полноценные стены и разделять пространство на несколько комнат. Если в однокомнатной квартире в гостиной поставить полноценную стену и разделить её на две комнаты, то квартира станет меньше примерно на одну комнату. В комнате без окон будет темно и душно. К тому же придется предусмотреть место для открытия двери. Получившиеся комнаты будут маленькими и в них не получится создать подходящий дизайн или установить всю необходимую мебель.
Сколько времени занимает преобразование однокомнатной квартиры в двушку
Перепланировка или переустройство — это работы, которые отражаются на плане квартиры БТИ. Например, когда появляются дополнительные помещения, а также меняется их функциональное назначение:
- когда в квартире появляются гардеробные или одна комната делится на две и более;
- когда кухня переносится из своего прежнего места в коридор либо кладовку;
- когда сносится подоконный блок между лоджией и комнатой и устанавливаются французские двери;
- когда площадь санузла расширяется за счет переноса дверей или делается новый проем в перегородке или несущей стене;
- когда объединяются помещения – ванная и туалет, кухня и гостиная.
Это лишь малая часть тех работ, которые нужно согласовывать, а все изменения фиксировать в БТИ на плане квартире.
Есть такой ремонт, который оставляет план квартиры неизменным, и это не будет являться перепланировкой. Может показаться, что вы делаете серьезный, капитальный ремонт, но в реальности получать разрешение на него не нужно, как и готовить проектную документацию, менять план БТИ, платить госпошлины и ждать разрешение. Можно просто сделать ремонт, не обращаясь ни в какие инстанции.
Критерии, по которым можно понять, что согласование с Мосжилинспекцией не требуется:
- дверные и оконные проемы не переносятся;
- сами двери остаются там, где предусмотрены на плане БТИ;
- конструкция пола не меняется;
- сантехника, трубы, газопровод — все остается на своих местах.
перегородки внутри квартиры остаются на месте;
На плане квартиры отображается, где расположены дверные проемы, какие двери установлены — распашные или раздвижные. Если распашную дверь демонтируют и оформляют раздвижную, это перепланировка. Если заменить дверь на другую аналогичную, даже если она будет открываться в другую сторону, перепланировкой это не будет, так как на плане ничего не изменится.
Примеры работ, которые не нужно согласовывать:
- замена электропроводки, когда нужно штробить стены;
- прокладка новых труб для санузла;
- выравнивание стен под покраску или под обои;
- установка новых дверей;
- замена окон;
- замена ванны, унитаза, раковины, мойки;
- отделка помещения — покраска стен, замена обоев и потолочного покрытия.
Все это не считается перепланировкой и не требует согласования даже при желании собственника квартиры. Если подать документы в Мосжилинспекцию с просьбой выдать разрешение на такие работы, она откажет.на работы, которые не предполагают внесение изменений в план БТИ, разрешение в принципе не выдается.
Если вы сомневаетесь, нужно ли узаконивать ваш ремонт, напишите нам список предполагаемых работ. Наша консультация бесплатна. Мы точно скажем, что можно делать без разрешений, а на что его необходимо получать:
Здравствуйте! Вы можете задать мне любой интересующий вопрос в WhatsApp.
Получите консультацию специалиста или отправьте нам на предварительную оценку необходимые документы.
Какие лучшие способы разделить однокомнатную квартиру на два отдельных помещения
Друзья, после 13 лет скитаний по съемным углам появилась возможность обзавестись своим углом. Средств хватило только на однушку. Поэтому нужен ваш совет.
Итак, имеем однушку в доме серии ИП-46С от Су-155. Общ. площадь 43,42 кв.м., находится на 14 этаже 17 этажного дома.
Скажу сразу, что планировка меня более чем устраивает. Ничего сносить, переносить и как-то кардинально менять я не хочу. Нравится наличие гардеробной, куда можно сложить все барахло, чтоб не загромождать шкафами жилую зону. Нравится раздельный санузел (это такая редкость для однушек), -я не буду его объединять. Нравится наличие балкона. Я его, конечно, утеплю и сделаю теплые полы, но не буду присоединять к кухне.
Вот суть моего вопроса. Жить в квартире будут трое: моя мама (55 лет), я (30 лет) и мой сын (1 годик). Хочу малой кровью сделать перегородку в комнате, чтобы выделить "уголок" для мамы. Для экономии пространства в перегородке будут раздвижные двери. На рисунке (см. ниже) я накидала самые основные предметы мебели и техники. Схему делала с телефона через приложение, поэтому не бросайте в меня тапками, если что. Там не было раздвижных дверей, поэтому на рисунке в перегородке стоит распашная. И размеры я не все выверяла, только самые основные
Хотелось бы еще как-то определиться с дизайном и основной расстановкой мебели. Дело в том, что я не хочу ставить диван. Т.к. предпочитаю спать на полноценной кровати с орт. матрацем. А гостей у нас практически не бывает. Ребенок спит со мной (т.е. дет. кровати пока не надо). Когда она понадобится, тогда и будем решать, куда ее ставить. Возможно в перспективе эта маленькая комнатка станет детской, посмотрим.
Так вот, то, что на схеме изображено как диван - на самом деле будет 1,5 спальной кроватью. Хочу над ней на стену прикрепить карниз для штор, на который повешу подушки на петлях-липучках - будет "типа диван", куда можно откинуть спину.
Очень интересует ваше мнение, друзья! Может кто-то "рулит" в теме фен-шуя? Тоже буду признательна за какие-то ценные советы!

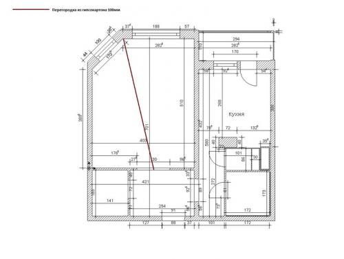
Пытаясь найти альтернативное решение вопроса -наткнулась на просторах интернета на такую перепланировку. Там хозяин для повышения доходности сдаваемой квартиры сделал перегородку по диагонали комнаты (чтобы получить две изолированные комнаты). Мне такое, конечно, не нужно, но интересно было посмотреть, какой выйдет маленькая комнатка. Вроде ничего, вполне себе жилой вариант получился.





Нужны ли специальные разрешения для преобразования однокомнатной квартиры в двушку

В современном мире так много вещей, благодаря которым можно изменить квартиру до неузнаваемости, потратив минимум средств. Однако все элементы декора и предметы мебели совсем не имеют никакого смысла, если в вашем доме недостаточно света и царит темнота. Естественный свет, во главе с витамином Д не только улучшает настроение и работоспособность, но и значительно меняет ваше пространство в лучшую сторону, а также помогает увеличить небольшие комнаты.
Надоела темнота? Впусти свет! Представляем вам 5 эффективных способов запустить в ваш дом максимальное количество естественного света.
- Ухаживаем за подоконником
Вам может показаться странной связь подоконника и естественного света. Давайте разбираться. Зачастую, в жилых помещениях подоконники используют для комнатных растений, которые требуют к себе особого внимания и ухода, а также много света. Благодаря растениям ваша комната облагораживается. Однако, растения могут сыграть с вами злую шутку, если вы перестанете ухаживать за ними. Следите за тем, чтобы растения не закрывали солнечный свет.

Старайтесь избегать больших деревьев, лиан и всевозможных изгородей. Тщательно ухаживайте за растениями – они будут благодарны и поделятся не только солнечными лучами, поступающими к вам в окно, но и чистым воздухом в вашей комнате.
- Держим окна в чистоте
Регулярно производите очищение окон, особенно, если вы живете вблизи проезжей части. Большое скопление пыли и грязи блокируют солнечный свет, а значит, ваша комната становится темнее. Также советуем вам остановить свой выбор на легких и прозрачных тканях для штор – они будут защищать вас от уличной суеты без потери естественного света.


- Игра зеркал
Отличным решением будет приобретение нескольких зеркал. Вам обеспечено много естественного света благодаря правильному расположению – напротив окна или коридора. Зеркала помогают не только добавить отражения, но и увеличить пространство, и создать воздушность в комнате.

Если вам недостаточно зеркал, остановите свой выбор на зеркальном потолке или стене – солнечный свет гарантировано будет вашим самым частым гостем в комнате.

- Избегаем темные цвета
Помните простое правило: темные цвета поглощают солнечный свет, поэтому избегайте их, если хотите светлую комнату. Выбирайте яркие или нейтральные цвета для стен, потолка, мебели и аксессуаров – это поможет вам приумножить свет. Лучше всего естественный свет отражают оттенки белого, но и пастельные оттенки работают также хорошо.


- Правильное расположение мебели
Правильно расположенная мебель может творить чудеса в вашей темной комнате. Избегайте блокировки окон и световых потоков, не выбирайте громоздкую мебель, тяжелые темные шторы, большие шкафы, которые будут только портить общую картину пространства. Выбирайте по максимуму светлую мебель, нежные оттенки для стен, светлый потолок – и ваша комната будет наполнена солнечными лучами и естественным светом. Также, светлая мебель и яркие аксессуары будут незаменимыми помощниками в увеличении пространства, создавая ощущение просторной и светлой комнаты.


Какие дизайнерские решения подходят для преобразования однокомнатной квартиры в двушку
В многофункциональных комнатах необходимо правильно разграничивать пространство, выделяя компактные площадки. Способов зонирования очень много. Владельцам остается лишь выбрать подходящий для них вариант.
Оборудование подиумов
Такая конструкция визуально разделяет гостиную и спальню, кухню и зону отдыха, рабочий кабинет и зал – вариантов на самом деле очень много. Подиумы имеют различную высоту. Они могут размещаться в одном из углов, занимая ¼ помещения, или полностью отгораживать часть комнаты по всей ширине.
Подиум может быть открытым, огороженным мебелью, полочками или шкафами, полноценными стенками из фанеры, ДСП, стекла. Если позволяет высота, внутри оборудуют выдвижные ящики, выкатные кровати,и даже устанавливают стиральные машины. На нем располагают: спальные места; кухонные гарнитуры с; зоны для отдыха и творчества; рабочие и учебные площадки.
Двухуровневые помещения
Если в квартире живет большая семья, зал автоматически превращается в спальню для взрослых или детей. А места для установкипросто не хватает. В этом случае на помощь приходят современные решения. Кровать можно поднять на антресоли, если позволяет высота потолков.
Ложе-трансформер прячут на день в стенную нишу или шкаф. Интересны конструкции кроватей-столов для подростка или взрослого хрупкого телосложения. Кроме того, популярны диваны с механизмами трансформации, которые на ночь превращаются в роскошное двух-трехспальное место.
Текстилем
Самый доступный вариант зонирования – это разделение комнаты с помощью портьер, жалюзи, нитяных штор или передвижных ширм. Такие перегородки можно убирать на день, перемещать с места на место без особого труда. С их помощью кардинально меняют наскучивший интерьерный дизайн, обновляя и оживляя его.
Перегородки
Не менее эффектно смотрятся перегородки из деревянных реек, ажурных конструкций, матового, серебристого или узорчатого стекла, стеклянных блоков.
Способ зонирования хозяева выбирают, исходя из собственных вкусов, финансовых возможностей, выбранного интерьерного стиля.

Можно ли установить перегородную стену в однокомнатной квартире, чтобы создать два отдельных помещения
Названа разница цен между однокомнатными и двухкомнатными квартирами в России
Исследование: разница цен между однокомнатными и двухкомнатными квартирами в среднем по России составляет около 859,3 тыс. рублей
В среднем переезд из однокомнатной в двухкомнатную квартиру обойдется россиянину в 859 289 рублей. Столько придется заплатить, чтобы сменить «однушку» площадью 36 кв. м на «двушку» в 51 кв. м, сообщили «Известиям» 29 марта эксперты платформы «Авито Недвижимость».
Специалисты составили по этому показателю рейтинг из 33 крупных городов. В шести крупных городах размер доплаты оказался меньше средней суммы, а в 27 — превысил этот уровень.
Первое место в списке занял Ижевск, где сменить квартиру с одной комнатой на недвижимость площадью побольше можно за 680 тыс. рублей.
«Второе и третье место поделили Волгоград, Тула и Брянск. В этих городах разница в цене составила 800 тыс. рублей. За ними следует Киров, где дополнительная комната обойдется в 810 тыс. рублей. Следующий город в рейтинге — Омск, где улучшить жилищные условия можно за 880 тыс. рублей», — рассказали эксперты.
Самая высокая доплата за двухкомнатную квартиру наблюдается в Москве , где за переезд в «двушку» придется отдать 4,6 млн рублей. Это больше, чем средняя стоимость двухкомнатного жилья в 19 городах-миллионниках.
«Следом идет Сочи. В курортном городе разница цен на «однушки» и «двушки» составляет 3 210 000 рублей. Третье с конца место — у Санкт-Петербурга: 2 900 043 рублей нужно заплатить, чтобы сменить здесь однокомнатную 37-метровую квартиру на двухкомнатную площадью 55 кв. м», — отметили эксперты.

Зеленый квадрат: как меняют индустриальную застройку в России и мире
Зачем промзоны превращают в жилые кварталы с парками и как они влияют на развитие современной Москвы
7 марта аналитики компании «Этажи» сообщили, что в России цены на вторичное жилье за месяц выросли до 7,5%. Так, по данным аналитиков, заметнее всего цены выросли в Краснодаре — на 7,5%, в Челябинске — на 4,6%, в Нижнем Новгороде — на 3,5%, в Екатеринбурге — на 2,7%, в Санкт-Петербурге — на 1,6%. Эксперты объяснили это высоким спросом на вторичное жилье — он вырос за год в среднем на 4%.