Пол второго этажа по деревянным балкам: подбор материалов и инструментов
- Пол второго этажа по деревянным балкам: подбор материалов и инструментов
- Связанные вопросы и ответы
- Какие материалы лучше использовать для пола второго этажа по деревянным балкам
- Какие инструменты необходимы для монтажа пола второго этажа по деревянным балкам
- Какие этапы и методы монтажа пола второго этажа по деревянным балкам
- Как обеспечить доступность и долговечность пола второго этажа по деревянным балкам
- Какие советы и рекомендации можно дать для монтажа пола второго этажа по деревянным балкам
- Как избежать проблем с деревянными балками при монтаже пола второго этажа
- Как обеспечить устойчивость и прочность пола второго этажа по деревянным балкам
- Как сделать пол второго этажа по деревянным балкам безопасным и удобным для использования
Пол второго этажа по деревянным балкам: подбор материалов и инструментов
Создание пола на втором этаже из деревянных балкок — это популярный способ организации пространства в многоэтажных домах и квартирах. Однако, для достижения качественного результата необходимо правильно подобрать материалы и инструменты. В этой статье мы рассмотрим основные аспекты подбора материалов и инструментов для создания пола второго этажа по деревянным балкам.
Подбор материалов
Основными материалами для создания пола второго этажа по деревянным балкам являются:
1. Деревянные балки
2. Двухсторонняя фанера
3. Двухсторонний шпон
4. Двухсторонняя доска
5. Плита OSB
6. Плита ДСП
Деревянные балки
Деревянные балки являются основным элементом конструкции пола второго этажа. Они должны быть прочными, устойчивыми к деформации и выдерживать значительный вес. В качестве материала для балки чаще всего используется сосна, ель или клен. Балки должны быть обработаны специальными составами для предотвращения гниения и вредителей.
Двухсторонняя фанера
Двухсторонняя фанера является одним из наиболее распространенных материалов для покрытия пола второго этажа. Она обладает высокой прочностью и долговечностью, а также хорошо поддается обработке. Двухсторонняя фанера изготавливается из различных видов древесины, таких как сосна, ель, клен и другие.
Двухсторонний шпон
Двухсторонний шпон — это более дешевый вариант покрытия пола второго этажа, чем двухсторонняя фанера. Он изготавливается из древесины низкого качества и обладает меньшей прочностью. Двухсторонний шпон подходит для покрытия пола в помещениях с небольшим нагрузкой.
Двухсторонняя доска
Двухсторонняя доска — это вариант покрытия пола второго этажа, который обладает высокой прочностью и долговечностью. Она изготавливается из древесины высокого качества и подходит для покрытия пола в помещениях с большой нагрузкой.
Плита OSB
Плита OSB (Oriented Strand Board) — это современный материал для покрытия пола второго этажа. Она изготавливается из древесных волокон, склеенных специальным клеевым составом. Плита OSB обладает высокой прочностью и долговечностью, а также хорошо поддается обработке.
Плита ДСП
Плита ДСП (Двухсторонняя шпоновая плита) — это традиционный материал для покрытия пола второго этажа. Она изготавливается из древесины низкого качества и обладает меньшей прочностью, чем плита OSB. Плита ДСП подходит для покрытия пола в помещениях с небольшой нагрузкой.
Подбор инструментов
Для создания пола второго этажа по деревянным балкам необходимо использовать следующий набор инструментов:
1. Электродрель
2. Электропила
3. Дробилка
4. Шлифовальная машина
5. Уровень
6. Штангенциркуль
7. Метр
8. Зажимы
9. Молоток
10. Ножницы для металла
Электродрель
Электродрель — это основной инструмент для обработки деревянных балкок и других материалов. Она позволяет выполнять сверление, фрезерование и шлифование.
Электропила
Электропила — это инструмент для разрезания деревянных балкок и других материалов. Она позволяет выполнять прямые и кривые разреза.
Дробилка
Дробилка — это инструмент для обработки деревянных балкок и других материалов. Она позволяет выполнять сверление, фрезерование и шлифование.
Шлифовальная машина
Шлифовальная машина — это инструмент для обработки поверхности деревянных балкок и других материалов. Она позволяет выполнять шлифование и полировку.
Уровень
Уровень — это инструмент для проверки горизонтальности и вертикальности деревянных балкок и других элементов конструкции.
Штангенциркуль
Штангенциркуль — это инструмент для измерения длины и угла деревянных балкок и других элементов конструкции.
Метр
~~~~
Метр — это инструмент для измерения длины и ширины деревянных балкок и других элементов конструкции.
Зажимы
Зажимы — это инструмент для удержания деревянных балкок и других элементов конструкции во время обработки.
Молоток
Молоток — это инструмент для удержания деревянных балкок и других элементов конструкции во время обработки.
Ножницы для металла
Ножницы для металла — это инструмент для разрезания металлических элементов конструкции, таких как шурупы и саморезы.
Выбор материалов и инструментов для создания пола второго этажа по деревянным балкам является ключевым этапом процесса. Важно правильно подобрать материалы и инструменты, чтобы достичь качественного результата и обеспечить долговечность конструкции.
Подбор инструментов для создания пола второго этажа
Для создания пола второго этажа по деревянным балкам необходимо использовать следующий набор инструментов:
- Электродрель - это основной инструмент для обработки деревянных балкок и других материалов. Она позволяет выполнять сверление, фрезерование и шлифование.
- Электропила - это инструмент для разрезания деревянных балкок и других материалов. Она позволяет выполнять прямые и кривые разреза.
- Дробилка - это инструмент для обработки деревянных балкок и других материалов. Она позволяет выполнять сверление, фрезерование и шлифование.
- Шлифовальная машина - это инструмент для обработки поверхности деревянных балкок и других материалов. Она позволяет выполнять шлифование и полировку.
- Уровень - это инструмент для проверки горизонтальности и вертикальности деревянных балкок и других элементов конструкции.
- Штангенциркуль - это инструмент для измерения длины и угла деревянных балкок и других элементов конструкции.
- Метр - это инструмент для измерения длины и ширины деревянных балкок и других элементов конструкции.
- Зажимы - это инструмент для удержания деревянных балкок и других элементов конструкции во время обработки.
- Молоток - это инструмент для удержания деревянных балкок и других элементов конструкции во время обработки.
- Ножницы для металла - это инструмент для разрезания металлических элементов конструкции, таких как шурупы и саморезы.
Каждый из этих инструментов играет важную роль в создании пола второго этажа, и использование каждого из них поможет вам выполнить свою задачу на высоком уровне.
Связанные вопросы и ответы:
Вопрос 1: Какие факторы могут повлиять на прочность деревянных балкок на втором этаже
Ответ: Прочность деревянных балкок на втором этаже может быть подвержена влиянию различных факторов, таких как качество используемого материала, методы обработки и монтажа, а также условия окружающей среды. Использование высококачественного дерева, такого как дуб или орех, может увеличить прочность конструкции. Обработка дерева с помощью специальных химикатов может защитить его от насекомых и грибков, улучшив прочность и долговечность балкок. Монтаж балкок должен быть выполнен профессионально, чтобы избежать сдвигов и деформаций. В условиях повышенной влажности или изменения температуры необходимо принимать дополнительные меры для защиты деревянных балкок от повреждений.
Вопрос 2: Какие материалы можно использовать для покрытия деревянных балкок на втором этаже
Ответ: Для покрытия деревянных балкок на втором этаже можно использовать различные материалы, такие как лаки, краски, олифа, масло для дерева и т.д. Лаки обеспечивают защиту от влаги и ультрафиолетового излучения, а также предотвращают загрязнение и износ поверхности. Краски могут быть масляными или водными и придают балкам цвет и защиту. Олифа и масло для дерева увлажняют и защищают поверхность, предотвращая ее изнашивание и высыхание. Выбор материала для покрытия зависит от предпочтений и требований к внешнему виду и защите балкок.
Вопрос 3: Какие виды покрытий можно использовать для деревянных балкок на втором этаже
Ответ: Для деревянных балкок на втором этаже можно использовать различные виды покрытий, такие как глянцевые, матовые, текстурированные и т.д. Глянцевые покрытия дают блестящий и глянцевый вид, делая балки более привлекательными. Матовые покрытия предотвращают появление следов от пыли и пятен, делая балки более практичными. Текстурированные покрытия могут быть использованы для создания уникального дизайна и текстуры на поверхности балкок. Выбор вида покрытия зависит от предпочтений и требований к внешнему виду и защите балкок.
Вопрос 4: Как часто нужно менять покрытие на деревянных балках на втором этаже
Ответ: Частота смены покрытия на деревянных балках на втором этаже зависит от многих факторов, таких как качество исходного покрытия, условия окружающей среды, интенсивность использования и т.д. В идеале, покрытие должно быть обновлено каждые 2-3 года, чтобы обеспечить оптимальную защиту и долговечность балкок. Однако, в условиях повышенной влажности или изменения температуры может потребоваться более частый ремонт и обновление покрытия.
Вопрос 5: Какие инструменты и материалы необходимы для покраски деревянных балкок на втором этаже
Ответ: Для покраски деревянных балкок на втором этаже необходимы следующие инструменты и материалы:
* Кисти для покраски и шпатлы для распределения краски;
* Латексные или масляные краски, подходящие для деревянных поверхностей;
* Очиститель для поверхности, чтобы удалить пыль и грязь;
* Шлифовальные панели или шкурки для подготовки поверхности;
* Защитные перчатки и очки;
* Стаканы или контейнеры для краски;
* Наклейка для защиты окружающих поверхностей.
Вопрос 6: Как обеспечить долговечность деревянных балкок на втором этаже
Ответ: Для обеспечения долговечности деревянных балкок на втором этаже необходимо принимать следующие меры:
* Использовать высококачественное дерево и методы обработки и монтажа, чтобы обеспечить прочность конструкции;
* Обеспечить защиту от насекомых и грибков, используя специальные химикаты;
* Обеспечить защиту от влаги и ультрафиолетового излучения, используя лаки и краски;
* Обеспечить регулярный ремонт и обновление покрытия, чтобы предотвратить изнашивание и высыхание;
* Обеспечить защиту от механических повреждений, используя наклейку или другие методы защиты окружающих поверхностей.
Какие материалы лучше использовать для пола второго этажа по деревянным балкам
Обязательно посмотрите наш каталог проектов - Дома из бруса и Дома из профилированного бруса .
Мы строим тёплые деревянные дома в Москве, Московской области и ЦФО с 2007 года.
Строительство домов из живого костромского леса под усадку и под ключ.
Древесина заслуженно считается наиболее популярным материалом, применяемым в отечественном частном домостроении. Учитывая тот факт, что загородные коттеджи обычно выполняются в одно- или двухэтажном варианте, именно оцилиндрованное бревно и профилированный брус используются сегодня особенно часто. При этом технология строительства в большинстве ситуаций не представляет особой сложности. Наиболее трудным является вопрос о том, как грамотно сделать пол второго этажа деревянного дома.
Особенности выполнения работ
Пол второго этажа в деревянном доме обычно выполняется так же, как и большинство других конструкций здания, из древесины. При этом к нему предъявляются стандартные для подобных элементов постройки требования, в частности:
- Достаточная жесткость и наличие необходимых прочностных характеристик;
- Устойчивость внешнего покрытия и конструкции в целом к истиранию, воздействию влаги и другим отрицательным факторам, сопровождающим эксплуатацию дома;
- Простота конструкции, позволяющая сделать второй этаж деревянного дома своими руками;
- Обеспечение требуемого уровня шумо- и теплоизоляции;
- Экологическая и пожарная безопасность данного элемента здания;
- Способность выдержат нагрузки от расположенной на этаже мебели, людей, отопительных приборов и других подобных предметов.
Наиболее правильный вариант выполнения работ, позволяющих произвести устройство пола второго этажа в деревянном доме – это четкое выполнение требований проектной документации, разработка которой является обязательным этапом организации любого серьезного строительства. К сожалению, далеко не всегда это условие реализуется на практике, что может привести к не самым приятным последствиям. Это объясняется тем, что полы являются частью общей конструкции перекрытия, которая является важным несущим элементом здания. Очевидно, что подходить к его устройству необходимо крайне внимательно и ответственно.
Устройство пола второго этажа деревянного дома
Основу конструкции пола второго этажа обычно составляют балки. Для их изготовления используется брус сечением 15*15 см или 10*15 см для небольших зданий. Для наиболее массивных сооружений используется материал размерами 18*18 см. Балка укладывается в процессе монтажа ограждающих конструкций, при этом края бруса должны быть надежно изолированы и заходить на стену не менее, чем на 15-20 см.
В большинстве случаев обустройство пола второго этажа выполняется в два яруса. Нижняя часть представляет собой черновой потолок, который изготавливается, чаще всего, из досок или ОСП. Он крепится к балкам при помощи так называемого черепного бруска.
Сверху на выполненный настил укладывается слой пароизоляции, а на него – выбранный для выполнения работ утеплитель. Чаще всего с подобной целью применяется минеральная вата, эковата, пенопласт, керамзит и другие подобные материалы. Фактически они размещаются между балками, защищенные снизу слоем паро-, а сверху гидроизоляцией. В результате сохраняется эффективность материала в течение длительного срока эксплуатации, предохраняя здание от потерь тепла.
Завершающей технологической операцией, позволяющей сделать пол второго этажа в деревянном доме, является устройство основного настила. Для этого могут применяться различные материалы, начиная от обычных досок и заканчивая ДСП или даже МДФ. В последнее время широко используются ОСП-плиты, позволяющие получить качественное и ровное покрытие, готовое к финишной отделке.
Следует помнить, что для эффективной и долговечной эксплуатации такого важного элемента деревянной постройки как пол второго этажа, необходимо соблюдать ряд простых правил. Во-первых, не допускается отклонений в размерах несущих конструкций. Во-вторых, все деревянные поверхности и части здания должны быть обработаны антисептиками и, при необходимости, антипиренами. В-третьих, эффективная работа утеплителя возможна только при создании правильного изоляционного пирога, обеспечивающего надежную защиту от влаги как самого материала, так и конструкций из дерева.
Какие инструменты необходимы для монтажа пола второго этажа по деревянным балкам
Пол второго этажа по деревянным балкам может быть уложен двумя основными способами:
- Прямо по поверхности конструкции, этот вариант применим, если толщина утеплителя внутри конструкции меньше высоты балок и снизу будет небольшая полость для вентиляции. Если же минвата располагается вровень с верхним краем балок, то лучше использовать второй вариант.
- На балки укладываются лаги, что позволяет сделать так называемый «плавающий пол», так как он жестко не соединяется со стенами и может незначительно двигаться при перепадах температур. Такой вариант позволяет улучшить шумоизоляцию в деревянном доме .
Также работы различаются в зависимости от используемого материала:
- Если вы решили сделать деревянный пол, то приобретается специальная доска толщиной 32 мм и более со специальной системой крепления шип-паз. Работы просты: доска закрепляется саморезами или гвоздиками через выемку, т.е. паз, далее вставляется следующий элемент так, чтобы соединение было плотным, при необходимости можно подстучать торец киянкой. Так получается ровная поверхность без шляпок гвоздей и саморезов.
- Если вы решили стелить ламинат, паркет или другое покрытие, то поверхность проще всего застелить листовыми материалами: фанерой либо ориентированно-стружечной плитой. Второй вариант обладает высокими показателями влагостойкости, поэтому его используют чаще. Работы просты: листы совмещаются так, чтобы соединения шли по балкам и прикручиваются саморезами.

Какие этапы и методы монтажа пола второго этажа по деревянным балкам
Среди многих видов чаще всего используются два: минеральная вата и пенопласт . Какой выбрать? Ответ на вопрос должен искать каждый застройщик самостоятельно, мы лишь даем свои рекомендации.
- Минеральная вата . Может быть рулонной или прессованной, пришла на замену традиционной стекловате. Имеет два реальных преимущества: не горит и не выделяет в воздух вредных химических соединений. Недостатки: высокая цена, относительно большой вес и гигроскопичность. Последний недостаток требует отдельного внимания. Дело в том, что вата очень быстро впитывает влагу и длительный период времени сохнет. Это значит, что деревянные конструкции пола постоянно эксплуатируются в условиях повышенной влажности, а это крайне негативно сказывается на долговечности. Еще одна проблема гигроскопичности – влажная вата резко увеличивает показатели теплопроводности, эффективность утепления заметно понижается.

Минеральная вата

Теплоизоляция пола улучшит температурные показатели в комнате на втором этаже
- Пенопласт . К этому материалу многие потребители относятся настороженно, сказываются последствия антирекламы конкурентов. Мол, он горит и выделяет агрессивные химические соединения. Такую антирекламу распространяют производители минеральной ваты, у них есть свои личные экономические цели. Что на самом деле? Современный пенопласт изготавливается с использованием инновационных добавок, за счет этого количество выделяемых вредных веществ уменьшилось до нормируемого допустимого уровня. По этим параметрам жестких ограничений для пенопласта не существует, он, кстати, менее токсичен, чем некоторые лаки, используемые для изготовления мебели. Еще одно малоизвестное качество – современный пенопласт не поддерживает открытого горения, это очень важная характеристика всех строительных материалов. Конечно, по показателям пожарной безопасности пенопласт намного уступает минеральной вате, но это не столь критично, как может показаться. На практике еще никто не видел, чтобы весь дом сгорел, а пол с минеральной ватой остался целым и невредимым. И наоборот, пожарные не наблюдали ситуации, когда сгорел лишь один пол с пенопластовым утеплителем, а все остальные конструкции от огня не пострадали. При пожаре нет большой разницы, каким материалом вы утеплили пол второго этажа, дом в любом случае полностью сгорит. Зато по стоимости технологичности и долговечности эксплуатации полы с пенопластовым утеплителем намного превосходят конструкции с минеральной ватой.


Как обеспечить доступность и долговечность пола второго этажа по деревянным балкам

Очередной технадзор - вызов на тему отлетающей плитки тёплых полов. Фундамент - МЗФЛ с толщиной цоколя 40 см. Уровнем фиксирую уклон от краёв комнаты к центру перекрытия - 5 мм на 2 метра. Этого достаточно, чтобы плитку начало "отстреливать" в местах, куда приходится максимальная изгибающая нагрузка. Залезаю в подпол. Посреди пролёта балки перекрытия опираются на красивые столбики с КДПВ. Снизу аккуратный блин из бетона, который элегантно подчёркивает наличие у строителей знания о необходимости создания опорной площадки для подпорок из блоков и одновременно показывает, что заниматься этим им было лень. Сверху тоже нашлёпали немного бетона, т.к. высоты двух блоков не хватило, а пилить блок напополам или искать подходящий по размеру брусок - это долго.

Естественно, деревянное перекрытие нагруженное стяжкой и плиткой, начало продавливать эти опоры. Медленно, но верно. Этот процесс не имеет ярко выраженной динамики, но он неумолим. И если с ним не бороться, то дело закончится разрушением перекрытия - вдавив эти "костыли" в землю достаточно глубоко, чтобы они уже не могли брать на себя хотя бы часть нагрузки, лаги пола начнут ломаться.
Можно ли что-то предпринять в подобных ситуациях? Конечно. Есть несколько способов решения подобной проблемы.
Способ первый. Отлить недостающие части фундамента, которые подопрут лаги перекрытия. Это самый правильный способ и одновременно самый затратный. Помимо того, что потребуется вести земляные работы в ограниченном объёме цоколя и привязываться к имеющемуся фундаменту, нужно с ювелирной точностью вывести новый цоколь под лаги (либо наращивать его кирпичом) в то время, пока перекрытие приподнято домкратами на нужный уровень.
Способ второй. Закрутить сваи и наварить на них опоры, которые будут удерживать лаги на нужном уровне. Менее затратно, но не менее трудоёмко. К тому же - пожароопасно, т.к. потребуется работать сваркой в ограниченном объёме.
Способ третий. Сделать хорошо то, что было сделано плохо. Отлить опорные площадки и сложить пирамиды из бетонных блоков, используя не менее двух блоков в нижней части. Для ускорения процесса можно использовать в качестве подошвы опоры тротуарную плитку большого размера - 50х50 или 70х70 см. Перекрытие в любом случае немного утрамбует грунт под опорой, как бы вы его не прессовали. Поэтому сверху лучше всего ставить винтовой домкрат - компенсатор, который можно регулировать в дальнейшем. По моему опыту, необходимость такой регулировки зависит от типа грунта и дальнейших нагрузок на перекрытие. Зачастую, после первичного выставления уровня перекрытия дополнительных действий предпринимать не надо.

Проблема батутности или прогиба полов вовсе не в недостатке технологии деревянных перекрытий, а её не соблюдении. Любой фундамент и перекрытие должны быть инженерно просчитаны, а не прикинуты примерно на листочке в клеточку. Тогда не будет батутности, прогибов и разрушений. Сэкономив на количестве опор и толщине лаг можно поставить себя в неловкую ситуацию — дом уже готов, но нормально жить в нём нельзя.
Практика ниндзя-ремонта в низких подполах показывает, что таким способом можно быстро исправить прогиб и устранить батутность перекрытий при высоте цоколя от 40 см. Но чем ниже подпол - тем дороже ремонт. Не экономьте на проектировщиках, рассчитывайте нагрузки правильно и тогда вам не придётся делать ремонт в только построенном доме.
Какие советы и рекомендации можно дать для монтажа пола второго этажа по деревянным балкам
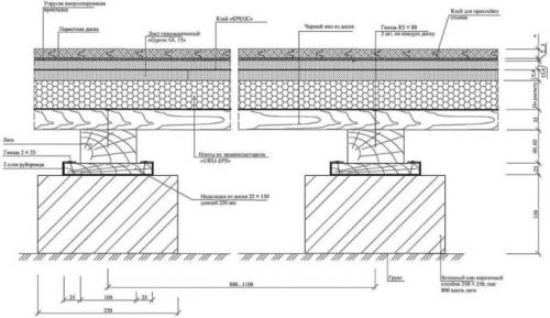
В классическом случае применения балок межэтажного перекрытия и лаг полов второго этажа, конструкция будет иметь следующий вид:
- Балки перекрытия из цельного дерева, прямоугольной формы, без сочленений (сечение зависит от длины пролета – ширины комнаты) являются основой конструкции межэтажного перекрытия;
- Торцы балок закреплены в массив противоположных несущих стен и зафиксированы при помощи металлических шпилек или на саморезах и металлических перфорированных крепежных элементах;
- Поверх балок установлены лаги пола второго этажа. Они установлены перпендикулярно балкам на одинаковом расстоянии и имеют форму и сечение, обеспечивающие надежное крепление досок чистового пола;
- Пространство между балками и лагами заполнено утеплителем для шумо- и теплоизоляции помещений.

Конструкция межэтажного перекрытия
В такой конструкции, рассчитанной на полезную нагрузку в 400-450 кг на 1 квадратный метр, естественным считается деформация на прогиб в 1/300 длины балки. Проще говоря, при длине балки в 6 метров прогиб балки максимально может иметь величину около 2 см . Если балка прогнулась на большее значение, конструкция требует дополнительного усиления и укрепления.
Сами балки выдерживают на себе два вида нагрузки: первая – это статическая нагрузка от веса остальных элементов перекрытия и установленных предметов мебели и оборудования на них. Вторая — динамическая нагрузка — возникает от перемещения по поверхности пола второго этажа людей и временной установки мебели в центральной части, когда балки и лаги имеют наибольшую нагрузку.
Выдерживать различные виды нагрузок и не поддаваться деформации конструкции межэтажного перекрытия помогают правильно подобранные материалы, их качество, и метод установки, в том числе расстояние между балками и лагами.

Зависимость (в милиметрах) сечений лаг и шагов между ними от толщины половых досок
Оптимальным считается двутавровая форма составных лаг для пола и составная форма балок для межэтажного перекрытия. При этом, для любых видов лаг и балок, основным видом деформации, влияющим на всю конструкцию дома, выступает прогиб в центральной части. И именно поэтому чаще всего осуществляется усиление балок и лаг, расположенных в центре.
Как избежать проблем с деревянными балками при монтаже пола второго этажа
Балки в конструкции пола — это деревянные или металлические элементы, которые опираются на фундамент и служат для передачи нагрузки. Так как у нас древесина все еще самый дешевый инструмент, чаще всего балки у нас деревянные. Делают их из бруса — цельного, клеенного или используют срощенные балки (из нескольких досок).

Один из вариантов чернового пола по деревянным балкам
Балки могут опираться только на фундамент, могут иметь промежуточные опоры. В домах с подполом промежуточными опорами служат простенки, при отсутствии подпола складывают кирпичные столбики или делают столбики из армированного бетона. На эти опоры укладывается в два слоя гидроизоляция (рубероид или что-то типа него, но не пленка), а на гидроизоляцию опирают балки или лаги.
Балки и лаги — отличие
Чем балки отличаются от лаг? Если коротко, то балки — несущие конструкция, а лаги — нет.
Балка — линейный элемент несущих конструкций, опирающийся на оба конца (в отличие от консоли) и работающий преимущественно на изгиб. Как правило, сечение балки прямоугольное или квадратное. В деревянных домах делают еще из тесаного бревна. Шаг установки балок и их сечение считается при разработке проекта. Лаги, прописываются тоже, но они не столь критичны, так что их характеристики можно менять в процессе строительства.

Общее устройство чернового пола по балкам перекрытия. Если лаги поставить на ребро, можно будет между ними уложить утеплитель
Лаги не являются элементами несущей конструкции и их делают просто из толстой доски, которую часто ставят «стоя» — опирают на узкую часть. При такой установке между лагами удобно укладывать утеплитель — при выборе шага установки лаг, принимают во внимание еще и ширину утеплителя. Черновой пол по лагам может быть и с расположением утеплителя сверху. Такой тип называется плавающим полом, так как прямого контакта чистовое покрытие с основанием (в данном случае с черновым настилом) не имеет.

От такого утепления толку будет мало
Есть два важных момента. Первый — при использовании в качестве утеплителя минеральной ваты, надо измерить реальную ширину рулона или плит. Она не всегда совпадает с заявленной. Второй — расстояние между лагами должно быть на 3-4 см меньше ширины утеплителя. Тогда его можно ставить в распор и держаться он будет за счет силы упругости. Это делает монтаж проще. Но есть и еще один плюс такого решения. Даже если утеплитель немного «примнется» или усохнет в процессе эксплуатации, щели между ватой и лагой не появятся, так как материал распрямится.

При закладке утеплителя, основное — не оставить щелей и минимизировать мостики холода
При использовании в качестве утеплителя пенопласта, пенополистирола, пенополиуретана шаг лаг (и их сечение) также лучше подбирать. Но в данном случае «сжать» его не получится. Плиты режут на куски чуть меньшей ширины, чем расстояние между лагами, а щели заполняют монтажной пеной.
Шаг установки лаг
Шаг установки зависит от доски из которой делают лаги:
- для доски толщиной 40 мм расстояние между центрами опоры 80-90 см;
- 50 мм — расстояние 100-110 см;
- толщина доски 60 мм — 120-130 см.
Черновой пол является основанием для чистового, поэтому его надо выравнивать в горизонт. Чем ровнее будет основание, тем меньше проблем при укладке остальных материалов. Поэтому уже при установке лаг, их край выводят на одном уровне.

Один из возможных вариантов
Если шаг балок небольшой — до 80 см, черновой настил можно стелить сразу, без лаг (доска 40 мм). При большом шаге балок поперек укладывают лаги, а на них настил чернового пола.
Пару комментариев насчет широкой доски. Если бюджет ограничен, можно сэкономить, делая сборные лаги. Две доски толщиной 25 мм стоят меньше чем одна доска такой же длины шириной 50 мм. Покупаем две доски, складываем их одна к другой, соединяем гвоздями или саморезами (предпочтительнее гвозди). Крепеж ставим с двух сторон в шахматном порядке. Ставят лаги «на ребро», так что по прочности они даже превосходят доску — меньше шансов на появление трещины по слою древесины. Есть еще один нюанс, который поможет избежать «кручения» сборной лаги: доски располагаем так, чтобы годовые кольца были расположены навстречу друг другу.
Как обеспечить устойчивость и прочность пола второго этажа по деревянным балкам
Чтобы пол оказался качественным и прослужил долго, следует определиться с количеством балок.
Для этого можно воспользоваться специальными программами, но застройщики идут по другому пути, опираясь на стандартные подходы:
- Выбирается брус с сечением 150х150 мм или 200х200 мм.
- Балки располагаются на расстоянии 0,6 м друг от друга.
Как правило, выбирается сосна, как самая недорогая и доступная строительная древесина. В зависимости от того, кирпичное здание или деревянное, выполняется крепление балок перекрытия. В кирпичном доме они заделываются в кирпичную кладку. В деревянной конструкции они укладываются на деревянное основание, и крепятся металлическими скобами.
Этот процесс требует особого подхода, который может опираться на определенные правила:
- Все деревянные конструкции, в том числе и балки, следует обрабатывать антисептиками и огнеупорными материалами.
- Не следует покрывать смолой любые деревянные конструкции, так как это может привести к появлению конденсата.
- Первый брус должен быть установлен на расстоянии 5 см от стены и не более.
Как уже было сказано выше, монтаж балок перекрытия производится в зависимости от конструкционных особенностей строения.
Устроены полы на втором этаже частного дома следующим образом. Для начала нужно прикрепить бруски со всех сторон балок. Бруски крепятся таким образом, чтобы при укладке досок они находились на одном уровне с балками. Крепление должно быть надежным, так как по полу придется ходить.
Перекрытие полностью зашивается с нижней части, которая впоследствии будет служить потолком первого этажа. Доски подгоняются очень плотно, чтобы не было щелей. После этого, верхняя сторона зашивки покрывается слоем гидроизоляции или обычным глино-песчаным раствором.
Достоинство его в том, что эта смесь не горит, поэтому идеально подходит для таких целей. Раствор наносится тонким слоем, после чего нужно дать время для его высыхания. Как вариант, можно уложить рубероид. Подобные технологические операции увеличивают срок службы утеплителя.
Пол второго этажа в деревянном доме должен быть теплым, а для этого следует уложить между балками теплоизоляцию.
В качестве утеплителя можно использовать:
- обычный шлак, который засыпается в промежутки между балками;
- минеральную вату;
- пенопласт;
- керамзит или опилки.
В большинстве случаев применяется минеральная вата из-за не высокой стоимости, легкости и простоты укладки. Этот материал укладывается между балками, причем очень плотно, чтобы не было щелей, тем более что работа с минватой позволяет ее уплотнять. Это позволит получить качественное теплоизоляционное покрытие, без всевозможных мостиков холода.
В заключение поверхность можно накрыть пароизоляцией, хотя и не обязательно, если имеются затруднения в плане финансов.
Как вариант, можно применить пенопласт, но при этом следует помнить, что он имеет положительную горючесть, несмотря на его уникальные теплоизоляционные характеристики.
Если говорить о таких материалах, как опилки, керамзит или шлак, то это сыпучие материалы и их не так просто занести на второй этаж в достаточном количестве.
После того, как утеплитель уложен, можно приступать к производству окончательного настила пола на втором этаже. Это делается по той же технологии, что и предыдущая зашивка пространства между балками. Но тогда доски крепились снизу, а теперь это нужно сделать сверху. Главное, чтобы черновой пол оказался заподлицо с балками.
Существует еще один вариант финишного покрытия пола по балкам. Для этого, поверх балок и в направлении перпендикулярном направлению расположения балок, крепятся лаги. В таком случае получается вентилируемое пространство, которое положительно влияет на долговечность конструкции.
Кроме этого, такой подход позволяет смонтировать плавающий пол, который в несколько раз может снизить уровень шумов.
Поверх лаг крепится обычная доска или листы ДСП. При этом следует предусмотреть промежутки между полом и стенами. В любом случае, монтаж пола можно закончить финишной отделкой, в качестве которой подойдет линолеум, паркет или ламинат.
Вывод напрашивается сам собой: вариант теплого пола на втором этаже своего дома является наилучшим выбором. Как правило – это дополнительный комфорт и уют.
Как сделать пол второго этажа по деревянным балкам безопасным и удобным для использования
Основа деревянного перекрытия – это балки, которые удерживаются на несущих стенах и служат своеобразным «фундаментом» для остальных элементов конструкции. Так как балки при эксплуатации перекрытия будут нести на себе всю нагрузку, особенно внимание следует уделить их грамотному расчету.
Для балок обычно используют массивный или клееный брус, бревна, иногда — доски (единичные или скрепленные по толщине гвоздями или скобами). Для перекрытий желательно использовать брусья из хвойных пород (сосны, лиственницы), которые отличаются высокой прочностью на изгиб. Брусья из лиственных пород работают на изгиб намного хуже и могут деформироваться под нагрузкой.
На балки перекрытия с обеих сторон закрепляют черновые доски (OSB, фанеру), поверх которых нашивают лицевое покрытие. Иногда пол второго этажа настилают на лаги, которые закрепляют на балках.
Стоит помнить, что деревянное перекрытие со стороны первого этажа будет являться потолком, а со стороны второго этажа (мансарды, чердака) – полом. Поэтому верхнюю часть перекрытия обшивают напольными материалами: шпунтованной доской, ламинатом, линолеумом, ковролином и т.п. Нижнюю часть (потолок) – вагонкой, гипсокартоном, пластиковыми панелями и т.п.
Благодаря наличию балок, между черновыми досками образуется пространство. Его используют для придания перекрытию дополнительных свойств. В зависимости от назначения второго этажа, между балками перекрытия закладывают теплоизоляционные или звукоизоляционные материалы, защищенные от влаги гидроизоляцией или пароизоляцией.
В том случае, если второй этаж – это нежилой чердак, который не будет отапливаться, в конструкцию перекрытия обязательно закладывают теплоизоляцию. К примеру, базальтовую вату (Rockwool, Parock), стекловату (Isover, Ursa), пенопласт и т.п. Под теплоизоляционный слой (со стороны первого отапливаемого этажа) укладывают пароизоляционную пленку (пергамин, полиэтиленовые и полипропиленовые пленки).
Если в качестве теплоизоляции был использован ЭППС, не поглощающий водяных паров, пароизоляционную пленку из «пирога» можно исключить. Поверх теплоизоляционных или звукоизоляционных материалов, впитывающих и способных портиться от влаги, укладывают слой гидроизоляционной пленки. В том случае, если при отделке были исключены возможности попадания атмосферной влаги на чердак, утеплитель можно не защищать гидроизоляцией.
Если второй этаж планируется, как отапливаемое и жилое помещение, то «пирог» пола не нуждается в дополнительной теплоизоляции. Однако, чтобы уменьшить воздействие шума, который будет возникать при передвижении людей по перекрытию, между балок укладывают звукоизоляционный слой (обычно используют привычные теплоизоляционные материалы).
К примеру, базальтовую вату (Rockwool, Parock), стекловату (Isover, Ursa), пенопласт, звукопоглощающие панели ЗИПС, звукоизоляционные мембраны (Tecsound) и т.п. При использовании материалов, способных впитывать водяные пары (базальтовая вата, стекловата), между первым этажом и звукоизолятором укладывается пароизоляционная пленка, а поверх звукоизолятора – гидроизоляция.



