Существующие типы двухкомнатных квартир. Планировка
- Существующие типы двухкомнатных квартир. Планировка
- Планировка 2 комнатной квартиры в 5 этажном панельном доме. Отличительные черты планировки хрущевок в кирпичных домах
- Планировка 2 комнатной квартиры в 9 этажном доме. 111-97
- План 2х комнатной квартиры с размерами. Варианты в зависимости от типа постройки
- Планировка 2 комнатной квартиры в панельном доме. Планировка двухкомнатной квартиры в «панельном доме»
- План квартиры двухкомнатной. Тонкости планировки двухкомнатной квартиры
- Планировка двухкомнатной квартиры хрущевка. Учитываем особенности планировки
- Двухкомнатная квартира площадь. «Хрущевки»
- Типовые планировки двухкомнатных квартир. Планировка двухкомнатной квартиры: 13 оптимальных вариантов
Существующие типы двухкомнатных квартир. Планировка
Существует множество планировок двухкомнатных квартир. Однако все стандартные планировки можно классифицировать по группам в зависимости от того, в каком доме находится жилое пространство.


Стоит подробно рассмотреть каждую группу 2-комнатных квартир, чтобы определить их характерные особенности, плюсы и минусы.
«Сталинки»
Главное отличие таких квартир – большие площади и высокие потолки. Здесь, например, встречаются квартиры площадью в 54, 65 или 70 кв. м.
Есть возможность максимально выгодно использовать имеющееся пространство и при необходимости выполнить перепланировку квартиры, используя чертежи.
Владельцы «Сталинок» часто обращаются к дизайнерам с просьбой переделать двухкомнатную квартиру в трехкомнатную. Изменение размеров позволяет оборудовать место для детской или кабинета.
«Хрущевки»
Изначально дома, в которых находились такие квартиры, возводили в качестве временных. Однако сегодня именно такие планировки встречаются чаще остальных, несмотря на маленькую площадь: до 17 кв. м. Ключевые особенности:
- небольшие площади;
- низкие потолки;
- маленькие кухни;
- совмещенные санузлы.


Минус «хрущевки» – плохо продуманная схема проходимости, из-за чего часто возникает дискомфорт у тех, кто проживает в квартире. Если пожить в малогабаритном пространстве, можно найти и другие минусы, но дизайнеры помогут справиться с большинством недостатков. Часто эти квартиры называют «распашонки», название это связано с тем, что две комнаты расположены по обе стороны от коридора, но чаще это название применимо к трехкомнатным квартирам.
«Брежневки»
Не самый хороший, но и не самый плохой вариант для жилья, среднее жилье составляет 43 кв. м . По сравнению со «сталинками» квартиры значительно меньше, и даже спальни в них небольшие. Но при этом планировка может похвастаться отдельным санузлом и просторной кухней. Также есть возможность объединения кухни с залом.
Минус «брежневок» – наличие несущих стен внутри квартиры , из-за чего возникают трудности с перепланировками и изменением метража. Для смены расположения комнат потребуется разрешительная документация, и не во всех случаях ее можно получить.
Новостройки
Последний и современный вариант квартир, в которых среди особенностей можно выделить:
- большие кухни;
- площади до 38, 46 и даже 70 кв. м;
- раздельные санузлы;
- вместительные коридоры.
Также большинство квартир предусматривают наличие лоджий, с помощью которых удается расширить пространство. Новостройки не нуждаются в перепланировках, так как в таких квартирах зачастую все продумано для комфортного проживания.
Планировка 2 комнатной квартиры в 5 этажном панельном доме. Отличительные черты планировки хрущевок в кирпичных домах
При рационализации строительства панельных домов было принято решение заменить железобетонные панели, которые в то время использовались для строительства на силикатный кирпич. Его было удобно перевозить на место стройки. Был заново разработан новый проект, который немного отличался от разработанного до этого для панельных зданий.

Если в двухкомнатной хрущевке проживает пара или семья с ребенком, квартира нуждается в переделке.
Было разработано новое архитектурное новшество, которое подразумевало переделку комнат с использованием продольного расположения. Это уменьшало количество однокомнатных квартир в жилом доме. Изменились также габариты кухни – они стали меньше, но увеличилась площадь, которую занимают кладовки и добавились лоджии.

Если снести все стены (за исключением несущих), получится квартира со свободной планировкой.
Угловая 2 комнатная хрущевка отличается измененной планировкой, которая выводит окна на две стороны, и существует возможность обзора улицы с разных ракурсов. На этом плюсы этой жилплощади заканчиваются. При возведении панельных домов стены делались тонкими, что уменьшало их теплоизоляционные свойства.

Эти квартиры были холоднее по сравнению с другими, которые находились, например, внутри здания.
В кирпичных домах, где стены достаточно толстые (полметра и больше), такая проблема с промерзанием угловых стен не бывает такой актуальной. В таких помещениях намного теплее и комфортнее.
Планировка 2 комнатной квартиры в 9 этажном доме. 111-97
Эту серию разработали в 1971 году. Девятиэтажки по ней строят и сейчас. Собирают их из типовых панелей шириной 3 и 4,5 м, благодаря чему в одном подъезде можно расположить два варианта однокомнатных квартир – 34 и 43 кв. м.
На первых этажах балконов нет, в 4-комнатных квартирах их два. Санузел располагается через перегородку с кухней. Её размер в 1-комнатных квартирах – порядка 9 кв. м, в остальных – 13 квадратов. В подъезде есть мусоропровод и лифт, который ходит только до 8 этажа. На чердаке дома технический этаж.
Типы панельных домов 9 этажей: серия 111-97
Дома этой серии строят не только в 9-этажном исполнении. Пятиэтажка – не менее распространённый вариант, хотя встречаются и другие решения (6, 7, 10 и даже 11 этажей). Но в пяти- и шестиэтажках из-за отсутствия лифта планировка отличается.
Лифты были только в домах выше семи этажей.
Конфигурации здания
В девятиэтажках несколько вариаций расположения подъездов:
| Тип компоновки подъездов, фото | Особенности |
| Одноподъездный | Одноподъездный, секционного типа, с тремя квартирами на этаже: двух, трёх и четырёхкомнатными. |
| Угловой, с поворотом на 90 градусов | 4 квартиры на этаже. |
| Угловой, с поворотом на 30 градусов | 4 квартиры на этаже. |
| Малосемейка | На каждом этаже по 8 квартир, только на первом по 7. |
Модернизация серии: что изменилось в планировке
В нулевых годах нынешнего столетия серия 111-97 подверглась модернизации. Был существенно переработан конструктив наружных стеновых и кровельных панелей, плит перекрытия, увеличена высота чердака.
В результате серые непрезентабельные здания получили эстетичные фасады и более удобные планировки (оможете узнать из статьи на нашем сайте).
Правда, некоторые застройщики отказываются от квартир с четырьмя комнатами из-за трудностей с их продажей.
Тем не менее, в проекте они присутствуют: площадью 78-84 кв. м. А до 90-х годов для многодетных семей были предусмотрены и 5-комнатные по 93-95 квадратов. Площадь двухкомнатных квартир в среднем составляет 53 квадрата, трехкомнатных – 67-70.
Малосемейки обычно состояли из одного-двух подъездов, с несколькими вариантами 1-комнатных квартир: 28, 31 и 39 кв. м, и одним вариантом 2-комнатных – 42 кв. м. Кухни везде шестиметровые.
- схемы и чертежи кухни с учетом размеров
Обеденная зона у окна малосемейки
Дома этой серии, построенные в 70-80 и 90-х годах, не соответствуют нынешним нормам по расчётному сопротивлению ограждающих конструкций теплопередаче.
Именно поэтому проект и решено было модернизировать. Теперь кухни увеличились почти до 16 кв. м, балконы стали большими, расширилась и общая площадь квартир:
- с одной комнатой до 45 кв. м;
- с двумя – до 70 кв. м;
А вот 4-комнатные, если они вообще есть, по размеру остались прежними. В таких домах лифт ходит на последний этаж. Высота потолков в панельном доме 9 этажей после модернизации составляет 3 м, тогда как раньше была 2,64 м.
План 2х комнатной квартиры с размерами. Варианты в зависимости от типа постройки
Огромное количество домов в нашей стране построены при советской власти, именно поэтому можно столкнуться с самыми разными типами планировки, в том числе не очень удобными. В новостройках же используются более функциональные и удобные варианты расположения комнат, однако, очень часто планировка зависит от того, насколько удобно это застройщикам. Квартиры в элитных домах часто вообще не имеют перегородок между комнатами, это называется свободной планировкой. Если же дома относятся к жилым комплексам, у них планировка является готовой, типовой, а часто такой же является и отделка.


Перед тем как приступить к внутренней планировке, застройщик утверждает планы квартир в БТИ. Любые последующие изменения, которые будут вноситься в расположение комнат, считаются перепланировкой и также должны быть согласованы в БТИ.
Несмотря на сложности и обилие бумаг, которые нужно собрать для того, чтобы утвердить перепланировку, многие выбирают именно этот путь, т. к. далеко не всем удобно типовое расположение комнат.

«Сталинки»
2-комнатная квартира в «сталинке» – это высокие потолки, довольно широкий коридор и большая кухня. «Сталинки» часто выстроены полукругом, поэтому в местах «сгиба» здания квартиры могут иметь оконные проемы нетипичной формы, а также малую освещенность в некоторых комнатах. Часто встречаются эркеры, балконы же, если имеются, то не подлежащие остеклению, полукруглые, отделанные лепниной.
В основном планировка у «сталинок» типовая, но встречаются и дома, построенные по индивидуальному проекту. Двухкомнатные квартиры могут иметь общую площадь минимум 47 или 53, 56 или даже 57 кв. м, комнаты могут быть как изолированными и выходить на разные стороны здания, так и смежными и выходить на одну сторону.
«Брежневки»
В брежневских домах квартиры имеют раздельные санузлы (объединенные могут быть только в однокомнатной квартире). Комнаты изолированы, спланированы таким образом, что выходят на различные стороны дома. Прихожие имеют достаточно места для того, чтобы расположить встроенный шкаф.
«Брежневки» на самом деле начали строиться практически одновременно с «хрущевками», поэтому название не совсем исторически верное. Кухня и прихожая в таких квартирах остались столь же небольшими, как и в «хрущевке».
Что касается материала для строительства, используются железобетонные плиты, обшитые панелями. В отношении строительства действует СНиП 1962 года. Из неудобств можно отметить планировку с использованием вытянутых комнат-пеналов, в которых сложно расставить мебель.
Несмотря на то что общие площади квартир довольно велики из-за наличия балкона (а в трех- или четырехкомнатных квартирах – зачастую двух), полезная площадь не так велика, как кажется. Кухня имеет площадь около 9 м2, прихожая узкая.


«Хрущевки»
Дома- «хрущевки» сразу наводят на мысли о тесных комнатах и неудобной планировке, и это действительно так. Однако благодаря этой жилищной программе из коммунальных квартир было расселено большое количество семей. Поэтому те, кому посчастливилось обзавестись собственным жильем, а это значит – отдельной кухней, ванной и туалетом, вряд ли когда-либо сказали что-то плохое в адрес «хрущевки».
Конечно, изначально планировки у двухкомнатных квартир в этих домах совсем неудобные. Расположение комнат смежное либо проходное, общей площадью 40-45 м2. Потолки имеют высоту 2,5 м, наружные стены – толщину 0,3-0,4 м. Соответственно, поскольку стены тонкие, то и звукоизоляции практически нет. Очень теплыми квартиры тоже назвать трудно. Кухни в таких квартирах очень маленькие, площадь их максимум 6 м2. Стандартная двухкомнатная «хрущевка» может иметь такую планировку:
- «книжка» общей площадью 41 м2, ее особенностью являются смежные комнаты, и она считается одной из наиболее неудобных;
- «трамвай» – немного побольше, 48 м2, также со смежными комнатами, однако, их удобнее перепланировать;
- «мини-улучшенка» – 44,6 м2 с изолированными комнатами, здесь перепланировка возможна, причем не только комнат, но и кухни;
- «распашонка» или «бабочка» (здесь площадь может варьироваться в зависимости от величины комнат, может быть и 38, и 39, и 46 кв. м) – комнаты одинаковые по размеру, изолированные и расположены симметрично, при этом несмотря на очевидное удобство, перепланировка такой квартиры очень сложна.
Планировка 2 комнатной квартиры в панельном доме. Планировка двухкомнатной квартиры в «панельном доме»
Квартиры в панельных домах стоят намного меньше, чем в других жилых строениях. Именно поэтому в старой «пятиэтажке» или «девятиэтажке» стены сделаны именно из панелей. Выполнить перепланировку в панельной квартире очень сложно, но возможно, если приложить некоторые усилия.
Самостоятельная перепланировка в большинстве случаев требует вмешательства профессионалов. Например, при необходимости встраивания дверных проемов в несущие стены. Если ремонт требует столь серьезных изменений в конструкции здания, то необходимо получить разрешение в специализированных учреждениях.


Планировка 2-х комнатной квартиры 83-й серии заключается в объединении спальни и кладовки с целью получения одного большого помещения. В панельной «двушке» 90-й серии кладовая комната отсутствует, поэтому для увеличения пространства используются только визуальные иллюзии.
Планировка двухкомнатной квартиры «распашонка», она же «бабочка», может быть представлена в двух вариантах. В первом случае жилище имеет маленькую кухню и прилегающую к ней лоджию, которую зачастую и используют для расширения полезного пространства. Во втором случае кухня имеет площадь порядка 14 кв. м, а сама квартира оснащена двумя небольшими лоджиями.
Существует планировка «двушки» под названием «усеченная трёшка». В данном случае кухня прилегает к кладовой комнате, с помощью которой можно увеличить площадь кухонного пространства до 12 м2. Также для этой цели можно использовать лоджию.
План квартиры двухкомнатной. Тонкости планировки двухкомнатной квартиры

Двухкомнатная квартира считается самым популярным и востребованным видом жилья, так как ее площадь позволяет выполнить удобную планировку и обеспечивает комфортное проживание для всех членов семьи. Кроме этого, для таких квартир существует множество дизайн-проектов, благодаря которым можно увеличить пространство и тем самым расширить функциональные возможности комнат. Используя современные отделочные материалы и фантазию в оформлении интерьера, простую «двушку» легко превратить в шикарные апартаменты.

Виды типовых зданий
Квартирный вопрос играет огромную роль в жизни многих семей. Перед людьми иногда становится нелегкий вопрос, связанный с продажей, обменом или покупкой нового жилья.
Перед тем, как решиться на переезд, в первую очередь стоит не только подобрать площадь квартиры, но и выяснить, в какой постройке она размещена, так как от вида здания будет зависеть планировка комнат и возможность выполнения ремонта.
На сегодняшний день различают следующие типы домов.
Кирпичные
:
Строения характеризуются долговечностью, хорошим монтажом и сохраняют тепло. Если дом построен еще в 70-х годах, то в его квартирах планировка подразумевает небольшие проходные комнаты, узкий длинный коридор.
То же самое касается и «сталинок»: они представляют собой пятиэтажки с большими балконами. В 2-комнатной квартире, здесь, как правило, просторные комнаты с толстыми стенами и надежными перекрытиями. Помимо жилых помещений, в планировку также включена и кладовая, но общий вид жилья портит «коридорная» система.


В «хрущевках» двухкомнатные квартиры маленькие, их высота не превышает 2.60 метров.
Хотя они стоят недорого, но плохая звукоизоляция, узкие входные лестницы и старые коммуникации создадут много проблем во время проживания.


Панельные
Дома данного типа – это пятиэтажки и девятиэтажки, внешние стены которых выложены из бетонных плит. Высота потолков в квартирах составляет 3.20 метра. Могут встречаться «старые» и «новые» панельные дома улучшенной планировки, их еще называют новостройки. К «старым» панелям относят также «корабли», «брежневки» и «хрущевки».
Постройки, которые возведены в 60-70-х годах, аналогично имеют небольшие смежные комнаты, встроенные шкафы и кладовки. В их квартирах холодно, так как стыки между панелями не обеспечивают хорошей теплоизоляции. Площадь «двушек» здесь не превышает 42-45 м2, хотя в планировке имеется просторная кухня и раздельный санузел. В домах есть лифты и мусоропроводы.
Если выбор пал на жилье в панельном здании, то не рекомендуется приобретать угловую квартиру, так как придется дополнительно выполнить утепление полов.


Что же касается «кораблей», то их планировка особенно не порадует: миниатюрный коридор и одна большая комната, с которой можно попасть в другие помещения. Но, несмотря на это, такие сооружения прочны в эксплуатации.
Самым современным и удобным типом жилья считается «новая панель». «Двушки» в данных домах открывают полную свободу к любым решениям в отделке и перепланировке, начиная от оформления студий и заканчивая двухуровневым дизайном.


Описание помещений
Двухкомнатные квартиры занимают большую часть жилищного рынка, так как они пользуются огромным спросом. При этом основная их масса представлена в панельных домах. Здесь они имеют площадь 40-45, 50-54 и 60 кв. м. В планировку современного жилья входят не только жилые помещения, но и просторные балконы, кухни, холлы, санузлы. В последнее время застройщики стараются возводить квартиры больших площадей, которые обеспечивают максимально комфортные условия для проживания.
Что же касается вторичного рынка, то здесь, как правило, встречаются стандартные двухкомнатные квартиры, отвечающие линейной планировке. Из площадь не превышает 50.2 м2, исключением считаются «распашонки» с 57.8 м2. Поэтому, если финансовое положение позволяет, семьям лучше всего приобретать жилье в монолитных домах, построенных по индивидуальным проектам. В них любая двухкомнатная квартира не будет меньше 75 м2, а сбалансированное соотношение между нежилой и жилой площадью позволит рационально распределить помещения на свое усмотрение.
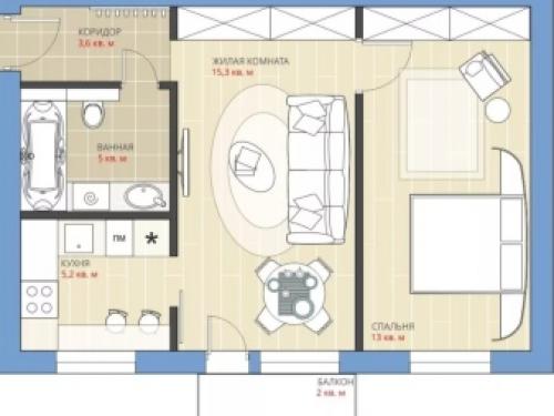
Планировка двухкомнатной квартиры хрущевка. Учитываем особенности планировки
Типовая хрущевка имеет очень маленькую кухню – 5-6 квадратов. Ещё одна особенность – невысокие потолки до 2,7 метров. Двушки без перепланировки зачастую бывают неудобны, особенно, если вторая комната проходная.
Стандартная площадь двухкомнатной хрущевки – около 43-44 кв метров. Дома пятиэтажные. В большинстве своем комнаты смежные, окна выходят на одну сторону (за исключением угловой квартиры с двумя окнами). В качестве достоинств хрущевки можно выделить наличие кладовки и балкона.
Рассмотрим самые распространенные типы планировок подробней.
Книжка
Такая планировка считается самой неудачной: проходная комната с широким дверным проемом играет роль столовой, а в семье с детьми – ещё и спальни. Уединенности в таком пространстве добиться трудно. Чтобы разделить помещения, придется пожертвовать частью комнаты. Без перегородок, на снос которых необходимо получить разрешение, хрущевку можно превратить в просторную студию.



На фото маленькая угловая кухня со встроенным холодильником и столом, вписанным в подоконник.
Трамвайчик
Такое народное название (также употребляется слово "паровозик") планировка получила за расположенные друг за другом комнаты, напоминающие вагоны. Гостиная с балконом является проходной, но переделка решает эту проблему: если отсечь часть комнаты и превратить ее в коридор с двумя входами, в получившейся нише можно организовать систему хранения.



На фото комната в кремовых тонах с акцентной стеной в телевизионной зоне.
На фото проект двухкомнатной хрущевки 44 кв. м.
Распашонка
Вполне удобная планировка, при которой комнаты разделены кухней и прихожей, но такой тип хрущевки встречается нечасто. Также ее называют "бабочкой" благодаря схожести комнат с симметричными крыльями.



На фото крошечная кухня , где глянцевые белые шкафчики-нивидимки занимают всё межпотолочное пространство.
Двухкомнатная квартира площадь. «Хрущевки»
Дома- «хрущевки» сразу наводят на мысли о тесных комнатах и неудобной планировке, и это действительно так. Однако благодаря этой жилищной программе из коммунальных квартир было расселено большое количество семей. Поэтому те, кому посчастливилось обзавестись собственным жильем, а это значит – отдельной кухней, ванной и туалетом, вряд ли когда-либо сказали что-то плохое в адрес «хрущевки».
Конечно, изначально планировки у двухкомнатных квартир в этих домах совсем неудобные. Расположение комнат смежное либо проходное, общей площадью 40-45 м2. Потолки имеют высоту 2,5 м, наружные стены – толщину 0,3-0,4 м. Соответственно, поскольку стены тонкие, то и звукоизоляции практически нет. Очень теплыми квартиры тоже назвать трудно. Кухни в таких квартирах очень маленькие, площадь их максимум 6 м2. Стандартная двухкомнатная «хрущевка» может иметь такую планировку:
- «книжка» общей площадью 41 м2, ее особенностью являются смежные комнаты, и она считается одной из наиболее неудобных;
- «трамвай» – немного побольше, 48 м2, также со смежными комнатами, однако, их удобнее перепланировать;
- «мини-улучшенка» – 44,6 м2 с изолированными комнатами, здесь перепланировка возможна, причем не только комнат, но и кухни;
- «распашонка» или «бабочка» (здесь площадь может варьироваться в зависимости от величины комнат, может быть и 38, и 39, и 46 кв. м) – комнаты одинаковые по размеру, изолированные и расположены симметрично, при этом несмотря на очевидное удобство, перепланировка такой квартиры очень сложна.
Типовые планировки двухкомнатных квартир. Планировка двухкомнатной квартиры: 13 оптимальных вариантов
В условиях устаревания рынка и неактуальности прежних проектов 60-х годов и младше, планировка двухкомнатной квартиры требует трансформации под современный ритм и стиль жизни. Рассмотрим варианты планировки и дизайна типовых двухкомнатных квартир.
Планировка типовых двухкомнатных квартир

https://youtu.be/yu3Xs3MUR4g
Перед тем как начать ремонтные работы требуется согласование и узаконивание перепланировки либо переустройства двухкомнатной квартиры.
7 вариантов планировки 2-комнатной квартиры (53 кв. метра) в панельном доме серии П-3
Для справки: типовая серия многоэтажных домов П-3 – разработана АО МНИИТЭП (популярна с 1971–1988 г. и по настоящее время).
Панельная постройка имеет 16 или 17 этажей. Квартиры – 1-, 2-, 3-, 4-комнатные. Несущие стены из железобетонных плит (толщина 14–18 см), наружные стены из керамзита (32 см).
Дома из серии П-3 считаются самыми удачными с точки зрения планировки и площади. Комнаты в домах – изолированные, а кухня – большая (9 кв. метров). Модифицировать пространство 2-комнатного жилья посредством планировки — задача сложная, но выполнимая.
Типовая двушка П-3 – квартира, ограниченная несущими стенами, что отрицает возможность кардинальной перепланировки. Единственная возможная модификация – согласование переноса проёма двери в стену, разделяющую кухню и гостиную, хотя здесь тоже есть свои сложности. Итак, рассмотрим несколько вариантов планировки.

1 вариант
Квартира с двумя комнатами сегодня считается малогабаритной, но достаточно приемлемой для семьи из 2-х человек. Комнату с большей квадратурой легко обозначить, как помещение зала и расположить в нём стеллажи с книгами и мягкий угловой модуль.
В маленькую комнату переместить спальню, например с просторной кроватью Кинг-сайз, и установить платяной гардероб.
Кухонное пространство займёт мягкий гарнитур Г-образной формы и стол с раздвижной столешницей для приёма гостей.
В маленькой ванной встанет угловая душевая кабинка или мини-джакузи. В помещении гардероба есть место для бытовой техники, расположенной на полках друг над другом (стиральная и сушильная машинки), а ещё для хранения домашнего скарба.

2 вариант
Для пары, один из супругов которой работает удалённо, не выходя из дома, встанет вопрос о добротной рабочей зоне. Выручит система зонирования с помощью книжных стеллажей и тумбы для техники, ими можно ограничить пространство у входа в большую комнату.
В прихожую помещается плательный шифоньер, так как он более ёмкий. А на место ванной в душевой комнате встанет кабинка. Теперь здесь можно установить стиральную машину.
На кухне в обеденную точку можно запросто поставить лаконичный прямоугольный стол с парой стульев и диванчиком по одной из сторон.

3 вариант
Если семья состоит из 3-х человек (с ребёнком-школьником), то ему необходима изолированная комната. Придётся жертвовать спальней, переоборудовав её под детскую. В гостевую «переедет» раскладной диван – он же спальное место, для симметрии по обеим его сторонам расположатся шкафы для хранения домашних вещей, книг и одежды.
Плоскому телевизору есть место на стене – это разгрузит пространство и даст возможность организовать рабочую точку в комнате.
Для выполнения школьных заданий в детскую встанет письменный стол или бюро с откидной крышкой, у входа в комнату – система-купе для игрушек и книг, кровать и короб для игрушек и детских «нужностей».
Большой шкаф для хранения разместится в прихожей по одну сторону от входа, а гарнитур с полками под обувь и крючками для одежды – с противоположной.

4 вариант
Дизайнеры разрушают стереотип о том, что при планировке двухкомнатной квартиры, гостевая комната должна размещаться в самой габаритной по площади.
Благодаря угловой мягкой мебели и мягкому гарнитуру из 2-х кресел гостиную легко перенести в маленькое жилое помещение площадью 14 кв. метра.
Теперь в спальне легко спроектировать зону для отдыха семьи, а за ширмой – гардероб. Здесь хочется посоветовать наш материал о дизайне маленькой спальни .

5 вариант
В рамках предыдущей планировки в центре большой комнаты со смещением к входу можно возвести ширму. Она поделит периметр на две самостоятельные части.
Источник: https://mdmstroyproekt.ru/novosti/ploshchad-dvuhkomnatnoy-kvartiry-v-hrushchevke-varianty-planirovki