Дизайн построек на участке 15 соток загородного дома. Особенности проектирования участка площадью 15 соток
- Дизайн построек на участке 15 соток загородного дома. Особенности проектирования участка площадью 15 соток
- Дизайн построек на участке частного дома с хозяйственными постройками. Как расположить дом и хозяйственные постройки относительно красной линии и границы соседнего участка
- Дизайн построек из контейнеров. Поэтапное строительство дома из морских контейнеров
- Дизайн построек на участке 15 соток. Постройки на участке
- Дизайн построек на участке. Планировка участка своими руками
- Дизайн построек на участке 7 соток. Планировка участка — зонирование и правила расположения элементов в ландшафтном дизайне (120 фото)
Дизайн построек на участке 15 соток загородного дома. Особенности проектирования участка площадью 15 соток
Первый и самый важный этап – создание проекта. Подробный план участка предполагает вид территории сверху с соблюдением точного масштаба. Предварительно можно посмотреть аналогичные готовые проекты или сразу взяться за разработку своего собственного
Перед тем как спланировать участок загородного дома 15 соток важно провести исследования и учесть некоторые нюансы:
Изучить рельеф имеющейся территории, он будет влиять на расположение основного дома, хоз. построек и проч.
Почва (кислотность, рыхлость и т. д.) и климат влияют на выбор насаждений.
Проверить уровень залегания грунтовых вод, это исследование проводят в летнее время. Если по итогу залегание вод более 2 м, возможна высадка практически любых растений, если менее, придется тщательно выбирать разновидности будущих насаждений или искусственно повышать уровень земли
Как вариант – проводить дополнительные дренажные работы.
При проектировании дома важно учесть стороны света. На южной стороне располагают максимальное количество окон, террасу, выстраивают туалетные комнаты
На севере – гаражные и технические постройки, котельную и проч. Западная сторона более влажная (но это зависит от климата), здесь выстраивают лестницы, кладовки, переходы, коридоры.
Планировка участка 15 соток обязательно включает исследование на освещенность. Замеры проводят в 9 утра, в 12 и 17 часов дня. В зависимости от этого на территории располагают светолюбивые и тенелюбивые деревья. На затененных участках хорошо «приживутся» места отдыха. А там, где много света, устанавливают теплицы и парники.
Дизайн построек на участке частного дома с хозяйственными постройками. Как расположить дом и хозяйственные постройки относительно красной линии и границы соседнего участка
Планировка участка начинается с разработки его подробного плана. Этап разбивается на ряд последовательных шагов:
- Берёте миллиметровку или разлиновываете лист бумаги в клеточку, соблюдая, для удобства, масштаб 1:100, т.е. 1 клеточка (1 см) – 1 метр. Если участок большой, то масштаб можно увеличить 1:200 (1 см – 2 м) или 1:300 (1см – 3 м).
- Наносите на чертеж границы заранее измеренного участка и линию дороги. Длину и ширину участка подписываете карандашом. Указываете стороны света.
- Отмечаете на плане расстояние от границы вашего участка (или намеченной линии забора) до соседних построек, например, спросив у соседей.
- Вооружившись рулеткой, измеряете размеры всех построек (бытовки, старого домика), которые уже есть на участке, и расстояние от них до границы вашего участка (линии забора). Наносите размеры на план.
- Отмечаете на плане, где находятся (или будут поставлены) въездные ворота и калитка. Если на участке растут деревья, которые планируется оставить, их также нужно нанести на план.

Главное — не игнорировать этап планировки и нанести на чертеж точные размеры границ участка и всех запланированных построек.
Теперь, зная размеры запланированного дома и построек, начертив их на плане, можно прикинуть, поместятся ли они на участке. Главное – нарисовать каждую мелочь, включая дорожки, место под огород, теплицы, газон и т.д.
Чтобы каждый раз не перерисовывать план, лучше, соблюдая длину и ширину, вырезать из куска картона «лекала» в масштабе 1см = 1 м — т.е. пятна застройки коттеджа, гаража, бытовки и т.д. Теперь, двигая «модели» по плану, можно легко менять их расположение относительно друг друга, красной линии или границы соседнего участка.
В зависимости от знаний, план можно начертить от руки или воспользоваться возможностями компьютерного программного обеспечения.

На фото ниже картинки хорошо сделанных планов участка.

План для узкого участка.

План участка на миллиметровке.

Итак, план нарисован, а загородному владельцу не терпится приступить к виртуальному заполнению объектами своей территории. Не торопитесь. Второй шаг — изучение документации, регламентирующей обустройство земельных участков. Как показывает практика, на этом этапе появляется масса вопросов. Приведем наиболее частые:
- Какие расстояния надо выдержать между различными постройками на участке.
- Какое противопожарное расстояние обеспечить между соседними домами.
- На каком расстоянии от забора и от дороги можно строить гараж.
Чтобы не лезть в дебри законодательства, упрощаем себе работу и записываем расстояния, которые необходимы для составления плана загородного участка, придерживаясь схемы:
- Расстояние от границы соседнего участка до дома и хозпостроек.
- Противопожарные расстояния до построек на участке соседей.
- Расстояние от дома до красной линии.
- Санитарно-бытовые расстояния, например, между домом и септиком, скважиной или колодцем.
Теперь изучаем следующие изображения.
Минимальные расстояния между объектами на участке.
Расстояние до красной линии – это расстояние, которое выдерживается от края проезжей части (края дороги), а не от забора, до загородного дома.

Т.е., если от дороги до забора (межи) выдержано пять метров, то дом можно построить на расстоянии трех метров от забора.
Примечание:
- минимальные расстояния от дворовых туалетов, помойных ям, выгребных септиков до соседнего дома – 4 м.
- минимальное расстояние от границ соседнего участка до открытой автостоянки – 1 м;
- минимальное расстояние от границ соседнего участка до отдельностоящего гаража – 1 м.
Минимальные противопожарные расстояния между домами на соседних участках.
Как пользоваться таблицей . Например, у вас и у соседа построены каменные дома (а). Значит, расстояние между коттеджами должно составлять 6 м. Если у вас дом типа (а), а у соседа дом типа (б), то между ними выдерживается расстояние 8 м. Между домом типа (б) и типом (в) уже выдерживается расстояние в 10 м, а между деревянными или каркасными домами 15 м.
Минимальные санитарно-бытовые расстояния от строений на участке до забора.
Соблюдение необходимых расстояний при строительстве дома и хозяйственных построек на участке в первую очередь необходимо самому застройщику. Например, в случае возникновения спорных ситуаций с соседями написавших жалобу в надзорные органы, а также для постановки коттеджа на кадастровый учет.
Дизайн построек из контейнеров. Поэтапное строительство дома из морских контейнеров
К человеку, который в нашей стране решил возвести коттедж из стальных контейнеров, двойственное отношение. И любопытно, и сложно поверить, что на финише выйдет что-то стоящее. Тем интереснее опыт ArturKrishtal. Участнику FORUMHOUSE удалось, не без ошибок, построить стильный дом под ПМЖ из морских контейнеров. Изучим нюансы этой эпопеи и в конце статьи сделаем вывод, оправданна ли эта технология для самостройщиков.
Стройку разбили на этапы:
- Зимой 2017 года закрутили свайно-винтовой фундамент.
- Контейнеры приварили к обвязке.
- Второй этаж дома собрали из металлических труб.
- У контейнеров вырезали внутренние стенки и усилили потолок дополнительными опорными столбами.
- Затем вырезали наружные стенки под проёмы под окна и дверь.
- На втором этаже, уложив утеплитель — ЭППС и арматурную сетку, подготовили площадку к заливке бетоном террасы.
- Установили обрешётку на первом этаже, под монтаж первого слоя минераловатного утеплителя толщиной 5 см.
- На втором этаже установили стропила.
- Стены дома снаружи утеплили и обшили плитами OSB под монтаж второго контура теплоизоляции.
- Дом полностью обшили ориентированно-стружечными плитами, а на крышу уложили металлочерепицу.
- Смонтировали локальную очистную станцию с выводом канализационных труб.
Всего смонтировали 24 сваи диаметром 108 мм. Сваи обвязали швеллером.
3. На фундамент установили три морских контейнера.
Процесс монтажа первого контейнера.

Металлический каркас сварен из швеллеров и профильных труб сечением 80х80 мм.
Основа каркаса – швеллер 18 и 12.
Параллельно с установкой контейнеров, на въезде на участок, в канаву, положили трубу и засыпали её строительным боем, чтобы на территорию свободно заезжала техника.

Также вырыли колодец — два столба по 6 колец каждый.

Важный момент! При строительстве каркаса второго этажа, опорные столбы, для жесткости и усиления конструкции , провели через отверстия в крыше и приварили к полу контейнеров.
Готовая конструкция.
На участок завезли ОСП — материал для внешней обшивки контейнеров.

Обрешётка сделана из деревянных брусков сечением 50х50 мм.
У дома односкатная кровля.
В мокрых помещениях, на втором этаже, также планируется стяжка. Для этого уложили экструзионный пенополистирол и арматурную сетку.

Бетонные стяжки второго этажа — ванная комната и терраса.

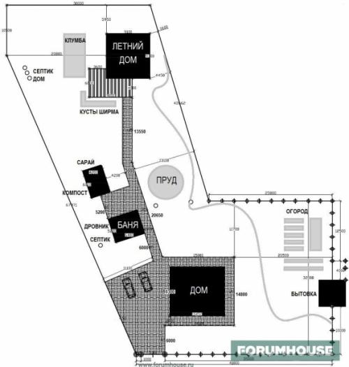
Дизайн построек на участке 15 соток. Постройки на участке
Планировка участка начинается с размещения построек. От них будем отталкиваться для расположения других объектов. Конечно же, самое главной строение – наш загородный дом, должен располагаться максимально удобным для нас образом. Для этого очерчиваем возможные границы – отступаем 5 м от заборов соседних участков и 5 м от главной улицы.

Зона для расположения дома
Напоминаем, что помимо данных расстояний необходимо учитывать и расстояния от строений соседей. Строение планируем стандартной геометрической формы 12 х 15 метров. Располагать будем продольно, по центру, с передней посадкой, т.е. ближе к калитке.

Участок с домом
Если вы не знаете чем утеплить стены дома снаружи или использовать ли клинкерный кирпич для фасада , то читайте наши другие статьи про отделочные материалы для фасадов частных домов .
Приступаем к следующим объектам. На втором этаже бани мы планируем разместить гостевые комнаты, поэтому руководствуемся расстояниями – 8 м от основного строения и 5 м от забора. Располагаем её на самом дальнем конце нашего земельного участка.

Баня на участке
Желаемые размеры строения – 6 х 6 метров. Этого пространства должно хватить для нескольких комнат.
Далее устраиваем беседку на участке размерами 4 х 4 м поблизости, как на фото.

Беседка
Место для отдыха должно вместить около десятка человек.
Следующим строением расположим хоз блок или сарай. Это небольшое строение 2,5 х 3 метра разместим около основного здания ближе к забору соседей.

Сарай
Для нашего участка 15 соток необходимы будут газонокосилка, садовый инструмент, а также различные приборы и принадлежности. Всё это мы будем хранить в сарае.
Следующим этапом будет планировка остальных зон.
Дизайн построек на участке. Планировка участка своими руками
Приобретение участка под загородное жилье или дачное строение – большое событие. Хочется все сделать правильно, максимально учесть и рассчитать. Чтобы не возникала необходимости что-то важное доделать, а где-то терпеть неудобства всю жизнь, грамотно выполненная планировка дачного участка поможет устранить много проблем.
В этот период, когда еще все впереди, главное не спешить, а правильно все рассчитать. Приведенные ниже советы окажутся полезными, если планировка участка своими руками у вас впереди.
Эмоциональный подъем, который этому сопутствует, толкает человека на подвиги. Появляется желание быстрее построить свое жилище, посадить цветы и кусты. Прежде чем приступить к планировке участка своими руками, предлагаем подробнее познакомиться со своим участком и получить ту информацию, которая пригодится впоследствии.
Знакомство с участком
Перед тем как приступать к планированию построек, обратите внимание на некоторые особенности участка. Их знание поможет разместить постройки и разделить площадь на зоны максимально удобным образом.
Рельеф местности
Если участок расположен на плоской поверхности, без холмов и впадин, тогда на этот раздел можно не обращать внимания. Холмистая местность с одной стороны создает трудности при планировании строительства. Хорошая новость в том, что построенный на возвышенности дом смотрится выигрышно.
Можно привести еще несколько аргументов в пользу строительства жилья на холме.
- Высоко расположенное строение имеет естественную защиту от подтопления как от весеннего паводка, так и от сильного дождя.
- При строительстве дома на горе подвал будет всегда сухим.
- Строительство фундамента будет выполняться быстрее, не потребуется дополнительная гидроизоляция.
Размещая остальные зоны и постройки по участку, ориентируйтесь на то обстоятельство, что в самой нижней части участка будут скапливаться осадки, возникать подтопления. При желании использовать эти места под растения останавливаться необходимо на любителях влаги.
Качество почвы
Знание основных характеристик почвы поможет определить, какие растения будут чувствовать себя наиболее комфортно на имеющейся территории.
Возможно, для того чтобы повысить урожайность будущих растений, необходимо принять специальные меры:
1. Выполнить мелиоративные работы.
1. На некоторых участках по причине непригодности для сельхозработ совсем не высаживать растения.
1. Хороший способ повысить качество почвы – завести новый плодородный грунт или внести удобрение.
Грунтовые воды
Знание о фактическом уровне грунтовых вод поможет правильно выбрать место для строительства домовладения, определиться с необходимостью строительства дренажной системы.
Информация о том, как глубоко находится подпочвенная вода, поможет подобрать деревья для будущего сада, определиться с выбором кустарников.
Роза ветров
Не стоит игнорировать тот факт, какие ветра преобладают на участке. Дом частично может закрыть участок от порывов ветра. С другой стороны, выбирая внутридомовую планировку, не стоит под спальни выделять стороны, наиболее подверженные ветровым нагрузкам.
Расположение участка по сторонам света
Дачники с большим опытом загородной жизни считают, что оптимальным местом для размещения дома является северная сторона. В этом случае тень от строения не закрывает местность, на территории остается достаточно места для посадки зеленых насаждений. В противном случае все то, что заботливые руки посадят на участке, не будет достаточно интенсивно расти и развиваться по причине отсутствия необходимого солнечного потока света.
Стиль разбивки территории
Прежде чем приступить к зонированию территории и размещению по ней объектов, определитесь, в каком стиле вы предпочитаете видеть свой участок в дальнейшем. Насколько важны правильные геометрические формы, поддерживаемая симметрия? Какие дорожки больше нравятся: неожиданно уходящие в сторону по, казалось бы, только им ведомым законам? Или строго отчерченные, с прямыми углами?
Различают несколько вариантов разбивки территории.
Регулярный сад
Планировка дачного участка по типу регулярный сад лучше всего подходит для случая, когда предполагается выращивать сельскохозяйственную продукцию или использовать свободное от постройки место, как сад. Для плана, составленного по указанным законам, все тропинки и дорожки имеют прямые формы. Углы прямые. Деревья посажены практически в шахматном порядке или по одной линии. Участок хорошо просматривается, клумбы имеют четкие формы, огорожены строгими бордюрами.
В этом случае здания и все постройки выстроены согласно одной оси. Очень удобная и четкая планировка.
Ландшафтный дизайн
Ландшафтная планировка более свойственная территории, которая расположена в нескольких уровнях. В этом случае дорожки вьются по линиям неопределенной формы. Растения рассажены без ориентации на симметрию и соблюдения строгих форм. Все гладко, обтекаемо. Формы переходят друг в друга.
Дизайн построек на участке 7 соток. Планировка участка — зонирование и правила расположения элементов в ландшафтном дизайне (120 фото)
Став счастливым обладателем загородного участка, человек сталкивается с несколькими проблемами. Одной из основных является планировка. Необходимо оптимально разметить территорию, продумать расположение жилых построек, элементов ландшафта, определиться с общим дизайном строительства.

Чтобы ответить на все возникшие вопросы необходимо составить подробный план земельного участка.

С чего следует начать разработку проекта
Любое планирование в строительстве начинается с оценки условий, в которых оно будет производиться. Данный этап описывает характеристики застраиваемой территории. От владельца при планировке земельного участка требуется учитывать:
- Рельеф поверхности. Последняя может быть ровной, холмистой, а также иметь овраги или крупные камни. Всё это влияет на общую схему расположения построек и прокладку коммуникаций;
- Качество почвы. Необходимо определить наличие плодородного слоя. А точнее его глубину. Если она менее 10 см, то на такой земле нельзя будет вырастить даже газонную траву. Требуется дополнительный завоз грунта;
- Наличие грунтовых вод. При их высоком уровне обязательно включение в план дренажной системы;
- Климат. В зависимости от климатической зоны следует тщательно подбирать состав насаждений;
- Размер, форма. В зависимости от формы и размера будет разрабатываться ландшафтный дизайн участка.
Еще больше о частных домах можно узнать на сайте
Методики планирования
При разработке проекта используют различные методы. Самыми распространёнными считаются:

Геометрический. Применяется при ровном рельефе поверхности. Отличительными особенностями считаются геометрическое расположение построек и насаждений, а также чёткие, ровные границы всех элементов ландшафта.

Например, деревья, кусты, цветочные клумбы располагают в форме прямоугольников или квадратов с ровными границами. Также возможна посадка растений и в виде других геометрических фигур, соответствующих общей стилистике плана.

Ландшафтный. Используется при неровной поверхности земли. Расположение построек и растений не следует чётким линиям. Наоборот, асимметрия применяется в дизайне всего экстерьера. Например, сохраняются либо создаются овраги и возвышенности, дорожки прокладываются кривыми линиями, деревья и растения высаживаются согласно фантазии владельца, а не геометрических форм.

При такой схеме планировки участка все искусственные элементы органично встраиваются в природный ландшафт, что позволяет создать более естественный дизайн.

Смешанный. Сочетает в разных пропорциях особенности ландшафтного и геометрического. Не имеет чётких правил построения. Наиболее популярен среди владельцев дач.

Деление участка на зоны
После выбора методики следует заняться зонированием. При создании проекта обычно выделяют: жилую зону, место отдыха,, зелёные насаждения и огород.
Под жилые строения обычно отводят 10% от всей территории, под растения и грядки — 75%, остальные 15% площади отводят для хозяйственных строений, площадок для отдыха, дорожек и декоративных элементов.

Жилая зона
В проекте планировки важнейшим является расположение дома. Если земельный надел имеет простую прямоугольную форму, то дом располагают исходя из удобства подъезда либо из эстетических соображений.

При нестандартной форме выбор оптимального места зависит от нескольких факторов. Например, если участок имеет узкую длинную форму, то дом строят торцом к основному входу. А при наклоне ландшафта строение размещают на возвышенности. Тем самым удаётся избежать подтопления фундамента и подвальных помещений.

Место отдыха
Рекомендуется размещать площадки для отдыха на заднем дворе. Если это беседка, летняя кухня или детская площадка, то располагаться они должны в хорошо просматриваемом месте и желательно в тени.

Вспомогательные постройки
Владельцы участков с баней и гаражом должны грамотно размещать свои строения. Место для гаража подбирается в зависимости от подъездных дорог. Гараж в целях безопасности желательно располагать с другой стороны от детской площадки. Узнайте также о.

Баня не должна стоять перед домом. Оптимальным вариантом будет удалённый угол участка, скрытый от улицы деревьями. Все вспомогательные постройки хозяйственного назначения лучше строить ближе к забору и скрывать кустарником.
