Интерьер и декор
Сотни идей для Вашего интерьера!
Main menu
Главная
Новости
Статьи
Главная
»
Статьи
»
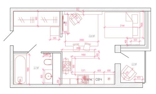
Как Вам дизайн квартиры — студии? Что бы Вы изменили?
Как Вам дизайн квартиры — студии? Что бы Вы изменили?
25.02.2020 в 15:41
Статьи
Понравилось? Поделитесь с друзьями!
⇦
Утепление деревянного дома мансарды. Утепление мансардного этажа деревянного дома
⇨
Проточный и накопительный водонагреватель – какой выбрать?