Интерьер и декор
Сотни идей для Вашего интерьера!
Main menu
Главная
Новости
Статьи
Главная
»
Статьи
»
Современный дизайн квартиры — студии. Как Вам такой стиль? Что-то бы изменили?
Современный дизайн квартиры — студии. Как Вам такой стиль? Что-то бы изменили?
01.03.2020 в 21:41
Статьи
Понравилось? Поделитесь с друзьями!
⇦
Как Вам такой интерьер квартиры в темных цветах? Мрачно или стильно?
⇨
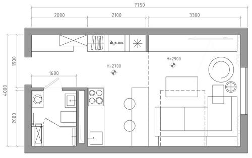
Студия 23 квадратных метра.