Дизайн и интерьер кухни совмещенной с гостиной в частном доме. Основные принципы организации совмещенной кухни с гостиной в частном доме
- Дизайн и интерьер кухни совмещенной с гостиной в частном доме. Основные принципы организации совмещенной кухни с гостиной в частном доме
- Дизайн кухни в частном доме своими руками. Прованс
- Кухня гостиная 40 метров в частном доме. Дизайн современной кухни-гостиной 40 кв м с фасадами из стекла и пеналами с техникой
- Дизайн гостинной совмещенной с кухней в частном доме бюджетный вариант. Как обустроить гостиную, совмещенную с кухней?
- Интерьер кухни-гостиной в деревянном доме. Как организовать переход между кухней и гостиной
Дизайн и интерьер кухни совмещенной с гостиной в частном доме. Основные принципы организации совмещенной кухни с гостиной в частном доме
Чтобы оформление интерьера было удобным и привлекательным, разберем несколько простых принципов организации пространства, которые используют профессиональные дизайнеры.
Выделение зон в рамках одного помещения
Дизайн интерьера кухни-гостиной в частном доме предполагает размещение островков разного функционала. “Оазисами” в интерьере называют сгруппированную мебель и другие элементы определенной функциональной зоны. Вместе они должны составлять законченную композицию. Несколько “оазисов” может существовать в рамках одной большой комнаты.
Приведем простой пример: стулья, обеденный стол и даже стоящая на нем ваза – все это входит в “оазис” обеденной части. Мягкие диваны, кресла, телевизор и стоящая неподалеку стерео-система – все это части лаунж-зоны. Высокие стулья, стоящие впритык к барной стойке, рядом с черным мини-холодильником – барный островок.
Такие островки помогают заполнить пространство так, чтобы убрать ощущение пустоты, оставив ощущение просторности. Они необязательно должны находится в углах или вдоль стен. При достаточно широком помещении оазис в самом центре комнаты будет смотреться стильно и уместно.
Создание динамичного пространства
С помощью подвижных элементов можно оживить пространство. Сделать это можно с помощью мобильных перегородок и раздвижных дверей. Поворачивающиеся на 360° высокие барные стульчики будут только в плюс. Динамичные элементы должны присутствовать хотя бы в двух “оазисах”. Особенно, если Вы хотите создать интерьер в гибком современном стиле.
Положительно на динамичность повлияют яркие цветовые доминанты и нарушающие симметрию элементы. Дополнительную объемность помещению дает декоративный подвесной потолок и ступеньки.
Смежные по функциональности участки
Участки с похожими функциями могут плавно переходить и дополнять друг друга. Самый яркий пример перехода – рабочая зона и мини-библиотека. При таком объединении стеллажи могут находиться в противоположной части комнаты от рабочего стола, а чуть ближе к слоту размещаются пуфики или кресла для чтения.
Классический пример плавного перехода функциональных участков – барная стойка, разделяющая рабочую зону готовки от обеденного стола.
Размещая смежные по функционалу участки рядом друг с другом, Вы делаете дизайн своего интерьера эргономичным. Все элементы находятся в гармонии между собой, а пользоваться ими становится еще проще.
Дизайн кухни в частном доме своими руками. Прованс
Дизайн кухни в частном доме в стиле, зародившемся в деревушке Франции в прошлом столетии, создают, не используя вычурных элементов в интерьере, с кричащими красками лицевых панелей и стенных панелей.
Прованс вписывается во все площади. Усилить эффект помогают окна во французском стиле. Они имеют деление на маленькие части или их продлевают до пола.
При отсутствии выхода на веранду, такой способ можно использовать для создания фальшивого балкона. Вместо окна, устанавливают прозрачную дверь с прочным стеклом триплекс. Завершают композицию оградой из витиеватых прутьев или кованого металла со стороны улицы.
В этом проекте отделку стен и потолка в светлом тоне, сочетают с деревом или керамикой на полу. Фишка стиля – декор балками или брусом. Их крепят на потолке. Они помогут разделить комнату на зоны, проецируя эффект на помещение.
Интерьер в светлых тонах из матового ламината или дерева. Техникой состаривания кракелюр , новому гарнитуру добавляют шарма. На дереве появляются элементы старения от времени. Обивка мягкой мебели в полоску или однотонная. Используют натуральную ткань для окон и интерьера.
Массивная мебель из дерева позволит скрыть современные электроприборы за своими дверками. Ультрамодная техника может не вписаться в общую гармонию, создавая этим дисбаланс. Добавляют в интерьер плетеную мебель и кресло-качалку.
Не используют пластик для оконных рам. Их выполняют из дерева, окрашивая белой краской.
В качестве декора и фурнитуры используют узоры ручной работы, корзиночки из соломки, и фарфоровые статуэтки из прошлого. Вешают связки из чеснока, лука и икебаны из полевых растений. Крупный и мелкий цветок размещают на лицевых панелях интерьера и занавесках. Лаванда в оттенке, добавит естественности и спокойствия обстановке.
Кухня гостиная 40 метров в частном доме. Дизайн современной кухни-гостиной 40 кв м с фасадами из стекла и пеналами с техникой
- Цена гарнитура: 3000$
- Площадь: —
- Планировка: Угловая
- Цвет мебели: Под дерево
- Фасады: Стекло
- Стиль: Современный
- Объединение: С гостиной
- Пол: Плитка
- Фартук: Плитка
- Потолок: —
Ваш репост изменит интернет :)
Рассказ Игоря, Надежды из Минска:

И вот — мы счастливые обладатели собственного жилья! Хорошо, что квартиру купили почти без отделки. От прежних владельцев остался линолеум, который даже не был приклеен, на бетонных стенах красовались бумажные обои и яркие акценты в интерьере — чугунные радиаторы кораллового цвета.
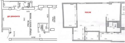
До ремонта
Сразу твердо знали, чего хотим от новой квартиры и кухни в частности, поэтому уже можно сказать с порога приступили к ремонту.

Произвели демонтаж всей отделки — самостоятельно, в кратчайшие сроки и с минимальными нервными потерями.

Монтаж перегородок и гипсокартонных ниш на потолке, выравнивание потолка, укладка плитки — дело рук строителей-отделочников.
Чугунные радиаторы кораллового цвета на белые стальные заменил сантехник.
Все остальные работы с удовольствием и энтузиазмом проводили самостоятельно.
Очень хотелось сделать яркие и одновременно нежные акценты. Одним из них стал кухонный фартук — его. В гостиной повесили занавески в тон одной из полосок на фартуке.

Как вам такой интерьер? Современная кухня 18 кв м с островом и подсветкой
На пол в рабочей зоне уложили плитку «Керамин», в гостиной и во всей квартире — ламинат EGGER с четырехсторонней фаской. Между плиткой и ламинатом вместо накладных порожков сделали полосу из белой мозаики в одной плоскости с напольными покрытиями.
Так как кухня совмещена с гостиной, необходимо было достаточно внимания уделить вентиляции, чтобы ароматы от котлет не разгуливали по всей квартире, а быстренько улетучивались куда следует. Для этого установили достаточно мощную по заверению продавца, вытяжку, а в гипсокартонной потолочной нише в правом углу вмонтировали принудительную вентиляцию.
Гарнитур изготовил индивидуальный предприниматель по нашим эскизам. Материалы фасадов — белое стекло и ламинированная ДСП, фурнитура — BLUM. Уже в процессе эксплуатации выяснилось, что стеклянные фасады гораздо практичнее ламинированных: на них не видны пятна, очень легко удаляется пыль и грязь даже без моющих средств. Просто находка для хозяйки, которая не получает большого удовольствия от уборки!

Вся бытовая техника — встраиваемая, фирмы BOSCH. Удовлетворяет всем нашим требованиям. В начале только огорчил. Как-то заранее не подумали о том, что встраиваемые холодильники менее вместительны. Но ничего, привыкли. Стали есть меньше!

Смеситель — китайского производства Gappo. Но очень даже порадовал: плавный ход ручки, легко отмываются известковые пятна, есть функция «дождик». Его даже полуторагодовалая дочка оценила. В восторге были все, когда она принимала душ прямо в раковине!

Справа от раковины получился очень удобный, скрытый от посторонних глаз уголок. Можно поставить все кухонные предметы первой необходимости, и их не будет видно. А еще этот угол просто незаменим при наведении супер-быстрой уборки. Если гости на пороге, а хозяйка у плиты, вокруг грязная посуда, быстренько убираем все лишнее в уголок от посторонних глаз и, вуаля — порядок!
Левый угол столешницы временно занимает домашнее растение, но оно с радостью уступит это место кофе-машине, которая, надеемся, в ближайшее время появится в нашей семье.

Место для обеденной зоны отвели в гостиной. Стену возле стола оформили небольшими деревянными брусочками разного размера, которые с помощью столярного клея закрепили на лист фанеры, заранее прикрученный к стене. Работа повышенной сложности, скажу я вам! Нарезка лобзиком брусочков из деревянных реек, обработка каждого брусочка наждачной бумагой и приклеивание на стену заняли два месяца. Трудилась вся семья, включая бабушек! Такая вот семейная стенка получилась!
Стол делали на заказ. Он из массива сосны, шпонирован дубом. Стулья — от польского производителя Signal. Вот только накладка вышла: вместо четырех стульев привезли три. В ближайшее время, по заверению продавца, недостающий стул довезут.

Освещение организовали так, чтобы можно было отдельно включать свет в обеденной зоне и рабочей. Очень удобной оказалась. Она не только справляется со своей основной задачей, но и еще дает приятный, нежный свет вечерней гостиной комнате во время просмотра телевизора или позднего чаепития.
Теперь о расходах (в долларах):
Работа отделочников и сантехника — 400.Радиаторы (кухня, гостиная) — 200.Плитка на фартук (Испания) — 300.Плитка на пол («Керамин») — 50.Смеситель — 120.Раковина — 80.Мебель — 3 тысячи.Стол — 400.Стулья — 300.Рольшторы (кухня и два окна в гостиной) — 170.Занавески в гостиной (ткань и пошив) — 240.Техника (варочная панель, духовой шкаф, холодильник, посудомоечная машина, вытяжка) — 2 тысячи 100 (покупали в Москве).Разные мелочи (потолочные светильники, клей плиточный, краска, трубы вентиляционные и прочее) — 300.
Итого: 7 тысяч 660 долларов.
Напоминаем, что Remont-Volot.ru есть ви.
Дизайн гостинной совмещенной с кухней в частном доме бюджетный вариант. Как обустроить гостиную, совмещенную с кухней?
Гостиная в сочетании с кухней экономит много места. К счастью, сегодня есть эффективные решения для устранения недостатков, на которые указывают противники, такие как продвинутые кухонные вытяжки, которые бесшумны и поглощают все запахи, выглядя действительно хорошо. При организации комбинированного пространства стоит учитывать стилистическую согласованность обеих частей и их функциональность.
Гостиная с кухней — это решение, которое все чаще выбирают современные люди. Если у вас есть возможность отказаться от закрытых кухонь, то следует выбирать открытые пространства. Как обустройство гостиной, так и кухни в отдельности чрезвычайно важны. Комнаты должны взаимодействовать стилистически. Обязательно решите для себя две задачи:
- Во-первых, следует определить, в каком стиле вы хотите обустроить эти комнаты, будь то классический, современный, скандинавский или, возможно, гламурный.
- Во-вторых, оцените личные финансовые возможности, потребности и ожидания относительно внешнего вида общего дизайна и мебели интерьера.



Умелое зонирование
Наиболее распространенные решения в этом типе договоренности — зонирование кухни и гостиной. Это можно сделать, правильно расставив мебель. Границей может быть диван, кухонный остров, бар или стол. Стеклянные и складные стены, например, гармошка, также все чаще встречаются. Другой вариант установить границу — изменить напольное покрытие, сочетая дерево в гостиной с плиткой на кухне. 

Современная гостиная с кухней не должна быть полностью открытой. Обычно границу устанавливает кухонный остров, барная стойка, шкафы, стол со стульями, а часто диван. Если вы хотите, чтобы граница между кухней и зоной отдыха была более четкой, то можете ввести раздвижные двери, которые могут заменить стену, разделяя кухню и гостиную. Полупрозрачные стеклянные двери позволят адекватно осветить совместную комнату. 


Гостиная с кухней: что в ней должно быть?
Наиболее часто повторяющийся страх соединить гостиную с кухней — это запах. При приготовлении пищи из кастрюли иногда выдаются чрезвычайно интенсивные ароматы, и они не всегда приятны остальным членам семьи. Чтобы избежать этого, просто монтируйте хорошую вытяжку на плиту. В магазинах есть действительно декоративные модели, которые красиво подчеркивают стильный интерьер. 
Если вы отказываетесь от большого стола в гостиной, следует выбрать кухонный остров. Помните, что зона, где вы будете есть, необходима. Предположение, что вы будете потреблять все обеденные блюда на диване, на практике неудобно, так как мешает приему гостей и оказывает крайне негативное влияние на личное здоровье.
Хорошо, если в части гостиной находится приятное дополнение, соответствующее кулинарному климату. Застекленный комод с посудой рядом с диваном придаст интерьеру характер целостности. Также в сегменте кухни стоит выделить место для книг или цветов.



Интерьер кухни-гостиной в деревянном доме. Как организовать переход между кухней и гостиной
Удаление массивной перегородки не предполагает отказа от зонирования территории, напротив, большое пространство обязательно нужно поделить. Но при этом необязательно наглухо отгораживать одну комнату от другой, можно организовать гармоничный переход между зонами. Как организовать интерьер кухни-гостиной в деревянном доме – несколько простых идей:
- Самое простое, но результативное решение – небольшой подиум, на котором будет располагаться кухонная зона. Достаточно поднять пол всего на 10 см, и переход между помещениями будет заметен каждому.
Это очень удобный вариант, так как он даёт возможность скрыть под полом разнообразные коммуникации, необходимые для кухонной техники. Важно также не забывать, что пол требует дополнительной гидроизоляции.

- Другой способ разделить помещения между собой - поставить в качестве границы барную стойку. Это не замена обеденного стола, а, скорее, приятное дополнение к нему, которое по достоинству оценят друзья владельцев дома. Она даёт возможность не изолировать полностью помещения, а только зрительно разделить их, создавая условный барьер.
- Более заметное решение – создание перегородки в виде стеллажей. На них можно расположить комнатные растения, книги или другие предметы. Это позволит сэкономить пространство в гостиной, так как перегородка будет одновременно использоваться для хранения предметов.
- Традиционный вариант разграничения пространства – разный цвет оформления стен, различные материалы в отделке потолка. К примеру, можно выбрать многоуровневый натяжной потолок с переходом как раз в месте разделения гостиной и кухни.
Дополнительным средством разделения пространства может стать освещение. Точечные светильники могут ощущать разные зоны помещения: несколько выключателей позволят управлять светом в доме, выделяя нужную область. Интерьер кухни-гостиной в деревянном доме может быть украшен светодиодными лентами: они подсвечивают контуры предметов, например, на кухонном гарнитуре – это также позволит отделить одну зону от другой.



