Расстановка мебели в хрущевке 2 комнатной с проходной комнатой. Некоторые дизайнерские хитрости
- Расстановка мебели в хрущевке 2 комнатной с проходной комнатой. Некоторые дизайнерские хитрости
- Дизайн двухкомнатной хрущевки со смежными комнатами. Дизайн двухкомнатной «хрущевки»: интересные идеи
- Перепланировка двухкомнатной хрущевки с проходными комнатами. Перепланировка 2-х комнатной хрущевки: быстро и просто
- Дизайн двухкомнатной хрущевки 44 кв. Нестандартный и запоминающийся дизайн двухкомнатной хрущевки 44 кв. м.
- Расстановка мебели в двухкомнатной хрущевке. Из угловой однушки в хрущевке – просторная двушка
- Дизайн хрущевки 2 комнаты смежные. Перепланировка хрущевки (2 комнаты смежные): варианты подготовки
- Дизайн двухкомнатной хрущевки со смежными комнатами без перепланировки. Идеи перепланировки
Расстановка мебели в хрущевке 2 комнатной с проходной комнатой. Некоторые дизайнерские хитрости
Значительную роль в визуальном расширении пространства и создании эффекта легкости малогабаритной квартиры играет правильное сочетание цвета, рисунка и материала отделки стен, пола и потолка. Дизайн двухкомнатной квартиры в хрущевке может основываться на некоторых хитростях, которые порой используют дизайнеры и профессионалы интерьерного дела:
- Пастельные цветовые тона с преобладанием светлых оттенков создают необходимый зрительный эффект, в то время как яркий и интенсивный цвет обеспечивает эффект визуального сжатия.
- Для небольших комнат подходит мелкий цветовой рисунок, орнамент.
- Высота комнаты зрительно увеличивается при белом или близком к белому цвете потолка. Можно использовать натяжные потолки.
- Эффект высоты обеспечивает разноуровневая конструкция потолка из гипсокартона. Правильный подбор осветительных приборов позволяет усилить эффект.
- Покрытие пола может быть светлым или цветным, но должно совпадать с общей цветовой палитрой комнатного интерьера. Цвет напольного покрытия тоже способен визуально раздвигать стены.
- Выбор мебели — важный элемент. Дизайн двухкомнатной квартиры в хрущевке подразумевает минимизацию количества предметов. Их следует подбирать в тон общему оформлению. Для маленьких комнат наиболее оптимальны раскладные столы, диваны раздвижного типа, многофункциональные комоды.
- Фотообои несколько вышли из моды, но при их правильном выборе можно обеспечить воздушность и визуальную безграничность помещения.
- Занавески на окнах дополняют общее впечатление об интерьере. В небольших помещениях не стоит развешивать громоздкие шторы, особенно темных оттенков. Лучше всего использовать легкие ткани светлой цветовой гаммы.
Дизайн двухкомнатной хрущевки со смежными комнатами. Дизайн двухкомнатной «хрущевки»: интересные идеи
Ремонт «хрущевки» – настоящее испытание, особенно если из старой квартиры неудачной планировки хочется сделать современную и удобную. Главный враг старых квартир – узкий коридор, маленькая кухня, неудачное расположение дверей, проходные комнаты и, конечно, небольшая квадратура. Но на сегодняшний день можно реализовать даже самый смелый и необычный проект, и для этого совсем не обязательно быть профессиональным дизайнером. Достаточно проанализировать особенности квартиры, изучить ранее реализованные проекты и составить дизайн-проект.
Особенности
Построенные в середине прошлого столетия дома до сих пор остаются единственным жильем для миллионов семей. И на сегодняшний день кирпичные и крупнопанельные дома до пяти этажей считаются наихудшим архитектурным решением. Зачастую самым простым способом усовершенствовать удручающую планировку квартиры является снос межкомнатных перегородок. При некоторых планировках возможно объединить кухню и комнаты, прихожую и комнату, ванну и туалет. Это позволит расширить площадь квартиры, добавить несколько необходимых метров. Также в некоторых квартирах есть кладовая, которую можно объединить с жилой комнатой.
Размеры коридора обычно наводят тоску. Узкая и темная прихожая в редких случаях может вместить шкаф-купе, поэтому необходимо делать акцент на функциональности, по возможности избавиться от не несущих стен. Если санузел изначально раздельный, его стоит объединить. Тогда можно будет выделить место для стиральной машины и большой угловой ванны. Чтобы сэкономить пространство, можно отказаться от раковины или от ванны в пользу душевой кабины. Любая перестройка стен должна быть согласована со специалистом, независимо от того, в каком доме она проводится: крупнопанельном или кирпичном.
Особенности квартиры не дают возможности перенести кухню в другое место, но зато можно вынести обеденную зону в гостиную. Для этого можно снести перегородку между кухней и комнатой или сделать арочный проем. Такой широкий проход визуально разделит пространство и создаст эффект увеличения площади. Вместо большого вместительного стола можно оставить место на кухне для барной стойки, за которой могут комфортно разместиться до 4 человек.
Перепланировка двухкомнатной хрущевки с проходными комнатами. Перепланировка 2-х комнатной хрущевки: быстро и просто
Перепланировка хрущевки 2 комнаты может быть осуществлена самостоятельно, если у владельца имеются интересные идеи и желание обновить свою квартиру.
С чего начинается перепланировка 2-х комнатной хрущевки
Согласитесь, что во все времена именно двухкомнатные квартиры являлись, и будут самыми популярными. И именно поэтому в стандартных постройках многоэтажных домов, а чаще всего в домах, которые появились при Хрущеве много из квартир 2-х комнатные. А, как известно, так называемые квартиры хрущевки имеют довольно не большую площадь. В них коридоры и прихожие узкие, кухоньки миниатюрные, чаще всего санузел совмещен.

фото: spb-realtor.ru
На сегодняшний день, благодаря современным дизайнерским идеям перепланировка двухкомнатной квартиры хрущевки может значительно расширить в ней пространство. А что самое важное, это будет сделано, не только визуально, но так же и физически, за счет дизайнерских методов и приемов.

фото: www.stroy-podskazka.ru
Важно знать, что перепланировка хрущевки это весьма не простая процедура, потому, лучше всего воспользоваться помощью квалифицированного специалиста. Ведь при перепланировании очень часто необходимо сносить стены и сооружать новые, а для того, чтобы не нарушить нормативы строительства консультируйтесь и только тогда осуществляйте действия.
Первым делом, после того, как план будет составлен нужно обратиться в БТИ, для согласования проекта, только при условии утверждения можно приступать к ремонтным работам. Без подтверждающих документов о перепланировке из БТИ в будущем вы не сможете ни подарить, ни продать это жилье, потому посетить эту службу нужно в обязательном порядке.

фото: avatars.mds.yandex.net
Итак, создавать проект должен архитектор, у которого есть действующая лицензия, дающая ему на это право, а вот как будет выглядеть проект, зависит от владельца, вы можете предоставить ему свои идеи и пожелания.
Итак, для того, чтобы архитектор разработал четкий и верный план вашей квартиры с учетом перепланировки, необходимо предоставить ему свой вариант.
Рассмотрим 3 самых популярных и распространенных вида перепланировки 2 комнатной хрущевки:
первый вариант современный. Вы можете соединить кухню с комнатой, которая к ней прилегает. Таким образом, получите большую кухню-студию, ее можно будет применять и как гостевую комнату. Осуществляется это за счет демонтажа стены между этими двумя помещениями. Пространство расшириться и визуально и физически, еще очень будет хорошо смотреться, если сделать между ними красивый переход, а именно соорудить красивую арку.

фото: trestusc.ru
очень часто перепланировку в двушке осуществляют за счет ее коридора. Здесь мнения расходятся, но по утверждениям опытных дизайнеров лучше всего за счет комнаты, смежной с коридором и расширить территорию в таком случае можно за счет коридора. Для этого можно сделать перемещение стены между ними, а вот в коридоре организовать небольшую прихожую-гостинную.

фото: dekoriko.ru
Ну и самый популярный вариант это сделать из 2-х комнатной 3-х комнатную квартиру. А особенно это целесообразно для семьи с двумя детками, которые со временем подрастут и захотят иметь собственную комнату. Сделать это не так сложно, в основном самую большую комнату делят перегородкой на 2 комнаты, а также соответственно монтируют 2 входа для каждой отдельно. Но, проблема может возникнуть в дневном свете, если в комнате, лишь одно окно, тогда нужно быть готовым к использованию в помещении без окна мощных осветительных приборов.

фото: avatars.mds.yandex.net
Помните, что все перепланировки в обязательном порядке должны пройти согласование с архитектором, а после утверждены специалистами БТИ, не пренебрегайте этим, чтобы не повлечь неисправимые последствия.
Перепланировка 2-х комнатной хрущевки фото:

фото: kakpostroit.su

фото: www.mirlandshaft.ru

фото: www.mirlandshaft.ru

фото: dekoriko.ru
фото: www.ifitnes.ru

фото: remont.spb.ru

фото: dizainvfoto.ru
P. S. не забудьте поставить "лайк" и подписаться на наш канал!
Дизайн двухкомнатной хрущевки 44 кв. Нестандартный и запоминающийся дизайн двухкомнатной хрущевки 44 кв. м.
Создать нестандартный и запоминающийся дизайн двухкомнатной хрущевки 44 кв. м. - задача очень сложная. Дизайнер получил карт-бланш от хозяев на использование цвета, что помогло полностью изменить облик жилья. Веселое разноцветное пространство смотрится необычно и запоминается.
“Слабое место” в проекте двухкомнатной квартиры-хрущевки - планировка.
Стараясь удешевить строительство, архитекторы создали довольно неудобные жилые помещения, которые к тому же с трудом поддаются изменениям: перенести кухню и ванную комнату не только нельзя, но и, по сути дела, некуда. Зато внутренние перегородки, как правило, не являются несущими.
Чтобы интерьер 2-комнатной квартиры-хрущевки соответствовал современным стандартам комфорта, дизайнеры начали с того, что убрали коридор - его все равно невозможно использовать, он слишком маленький и узкий. Это помогло немного увеличить ванную комнату и кухонную зону, а также разместить во входной зоне систему хранения. Получилось свободное пространство, в котором функциональные зоны сменяют одна другую, оставляя в центре “кубик”, в который встроена сантехническая зона.

Цвета
Белый как основа дизайна двухкомнатной хрущевки 44 кв. м. дает возможность применять любые сочетания цветов и заодно зрительно увеличивает небольшие размеры помещения. Цвет натурального дерева, покрывающий пол и одну из стен, добавляет теплоты, уюта и вносит в минимализм квартиры эко- нотку.

Гостиная
Контрастные цвета - фиолетовый и желтый - задают тон в оформлении гостиной. Сюда вынесена столовая группа, поскольку размеры кухни не позволяют разместить в ней обеденную зону. Стол со столешницей из полупрозрачного стекла и изящной формы стулья на тонких металлических ножках выглядят воздушно и не утяжеляют восприятие пространства.
В интерьере 2-комнатной квартиры-хрущевки использованы различные приемы увеличения площади, как реального, так и визуального. Яркие обои с графическим рисунком занимают только одну стену - этот прием зрительно расширяет комнату по краям. Шкаф-купе имеет зеркальные двери, позволяющие углубить перспективу, увеличить освещенность и удвоить ощущение объема.

Кухня
Проект двухкомнатной квартиры-хрущевки не дает возможности перенести кухню, поэтому ее пришлось оставить на прежнем месте. Но вот стену, отгораживающую ее от остальных помещений, удалось убрать, и за счет этой операции площадь кухни немного увеличилась.
Фасады кухонной мебели - деревянные, классической формы, с филенками, и покрашены в очень нежный голубой тон - такое решение делает даже маленькое помещение просторным и уютным. Белая столешница рабочей зоны и бежевый фартук над ней добавляют света и тепла. Особенная “фишка” кухни - узорный “ковер” на полу. Он выглядит как настоящий, хотя собран из плитки.

Спальня
Дизайн двухкомнатной хрущевки 44 кв. м. отличается использованием ярких цветов, и в спальне это лайм. Текстиль интенсивного фиолетового цвета образует сочный контраст и придает нарядность простому по форме помещению.
Выкрашенная в белый цвет мебель визуально кажется менее объемной и тяжелой, чем есть на самом деле. Стена напротив кровати украшена ярким рисунком - круги одного размера покрывают всю поверхность, создавая ритмичный узор, позволяющий убрать центр внимания с дефектов планировки.

Постеры над изголовьем кровати добавляют в обстановку эко-стилистику. В интерьере 2-комнатной квартиры-хрущевки имеется существенный недостаток: спальня слишком узкая и длинная. Чтобы немного исправить ее форму, шкаф для одежды расположили напротив окна, вдоль стены с дверью. Над дверью появилась антресоль. В результате пропорции комнаты улучшились, и нашлось место для всего необходимого, причем оно практически не заметно и не портит интерьера.

Санузел
В изначальном проекте двухкомнатной квартиры-хрущевки санузел был маленьким, и ванная стандартных размеров в нем не помещалась. Поскольку коридор убрали, санузел расширили, и теперь здесь стоит угловая ванна большого размера. Пол под ней выделен плиткой коричневого цвета, контрастирующего со светло-серым оттенком стен.
Три вертикальные коричневые полосы поднимаются от пола по стенам к потолку и подчеркивают объем ванной комнаты. Такой же коричневой плиткой, имитирующей доски, выложена и стена над раковиной. Чтобы не утяжелять восприятие обстановки, дизайнеры постарались избежать лишнего: даже зеркало не стали обрамлять, чтобы не отвлекать внимание.


Расстановка мебели в двухкомнатной хрущевке. Из угловой однушки в хрущевке – просторная двушка
Маленькая кухня, тесный коридор, единственная комната, да еще и в хрущевке. Казалось бы, такому жилью никакой дизайн интерьера не поможет. Возможно, опыт Марии Дадиани убедит вас в обратном. Ей удалось превратить хрущевку в современное жилье кухней-гостиной и солнечной изолированной спальней.
Сведения о квартире: однокомнатная квартира в пятиэтажном доме «хрущевской» серии, Москва.
Владелец квартиры: женщина.
Пожелание клиентов: перепланировка квартиры с выделением отдельной спальни и кухни-гостиной.
Казалось бы, нет более унылого для дизайнера объекта, чем угловая «однушка» в доме хрущевской серии – с низкими потолками, кухней на пять «квадратов» и ванной на три. Как обратить недостатки в достоинства, обмануть время и перехитрить пространство? Дизайнеру Марии Дадиани это определенно удалось. Проект «В 5 минутах от Патриарших…» - наглядное пособие по бытовому волшебству: перепланировка двухкомнатной квартиры из однокомнатной. Унылая однушка получает кухню, гостиную и отдельную спальню с гардеробом. Вместе с новым обликом в жилище возвращается дух старой Москвы. В результате перепланировки стена между кухней и комнатой исчезла, образовав просторную кухню-гостиную. Половина бывшей комнаты стала изолированной спальней.
В результате перепланировки стена между кухней и комнатой исчезла, образовав просторную кухню-гостиную. Половина бывшей комнаты стала изолированной спальней. Комната в угловой «однушке» имеет два окна – благодаря этой особенности, перепланировка двухкомнатной квартиры дала полноценную солнечную спальню.
Почти вся мебель в квартире – невесомая, светлая, с объемными филенчатыми фасадами. Черные и металлические детали смотрятся на таком фоне очень выразительно. Их немного, поэтому воздушности интерьера это не вредит. Обратите внимание: рисунок гардин перекликается с принтом покрывала и формой ручек для гардероба.
Интерьер квартиры оформлен в черно-белых тонах, но преобладающий цвет в комнатах – белый, что визуально расширяет пространство. Обои с мелким редким рисунком (на первый взгляд, в горошек, а на самом деле, в цветок) придают помещению дополнительный объем. Обои – вообще одна из главных «фишек» интерьера. За счет белого фона, рисунка с геральдическими мотивами и плотной фактуры они выглядят аристократично, светло и уютно.
В кухне-гостиной нет штор – это сознательное решение: ничего не должно мешать свету проникать в комнату. Столешница рабочего стола плавно переходит в подоконник – тут вам и экономия места, и никаких щелей. Так же дизайнер поступила с кухонным столом. Конструкция «комод и телевизор» условно разделяет зоны кухни и гостиной (как и плитка на полу), но при этом телевизор закреплен на кронштейне и поворачивается туда, куда в данный момент нужно хозяйке.
То, что на кухне нет традиционной обеденной зоны – тоже не случайность. Хозяйка квартиры редко готовит дома, а перекусить можно за рабочим столом или столиком у дивана. Духовой шкаф и варочная поверхность на кухне не пытаются образовать одно целое. Духовка встроена выше, между шкафов - так гораздо удобнее с ней обращаться. Посудомоечная машина спряталась под варочной поверхностью.
Чтобы повесить кондиционер, пожертвовали одной секцией стеллажа в гостиной. Почему бы и нет?
Спрятать радиатор в маленькой квартире очень сложно. Поэтому здесь его не стали прятать, а наоборот, выделили. Черная ретро-батарея отлично вписывается в концепцию интерьера и играет роль визуальной доминанты в простенке.
Два зеркала в прихожей создают зеркальный коридор, визуально увеличивая пространство.
Дизайн хрущевки 2 комнаты смежные. Перепланировка хрущевки (2 комнаты смежные): варианты подготовки
Гипсокартонная перегородка для разделения помещения на две комнаты
Перепланировка хрущевки на 2 смежные комнаты – это не косметический ремонт, а серьезный процесс, который требует ответственного подхода. Прежде чем приступать непосредственно к самому изменению конфигурации квартиры, важно позаботиться о согласовании перепланировки. Необходимо составить точный план с указанием всех деталей.
Перед началом работ по перепланировке квартиры необходимо позаботиться о ее согласовании
Работы по перепланировке лучше доверить опытным специалистам
Совет! Многие жители небольших квартир , решившись на перепланировку, считают ненужным ее узаконивание. Это большая ошибка, поскольку без утверждения документации на какие-либо изменения планировки в квартире помимо обоснованных жалоб соседей можно столкнуться с проблемами во время продажи квартиры.
Также стоит отметить, что без предварительной экспертизы даже опытные строители не смогут точно различить несущие стены, которые удерживают вес перекрытий, и самонесущие. Именно потому, затеяв серьезные изменения в структуре квартиры, стоит пригласить для экспертизы профессионалов, которые проведут оценку и предложат выгодные варианты перепроектировки.
Двухкомнатная хрущевка до и после перепланировки
Варианты перепланировки двухкомнатной хрущевки
Перенос кухни в комнату
План перепланировки двушки
Перепланировка хрущевки на 2 комнаты, фото которой выглядят весьма привлекательно, все-таки включает в себя больше, чем обычное изменение визуального облика квартиры. Необходимо собрать следующий пакет документов:
- В бюро технической инвентаризации оформляется план этажей здания, непосредственно план квартиры и детальная экспликация помещений.
- Жилищную контору стоит посетить для того, чтобы узаконить свои права на перепланировку и на квартиру в целом, также заверить эскиз будущего плана.
- Если работы будут проводиться с учетом частичной или полной замены трубопроводов или электропроводки, необходимо обратиться за разрешением в газовую службу, санэпидстанцию, пожарный отдел.
Разработку дизайна будущей квартиры можете доверить специалистам или же сделать это своими руками, воплотив в реальность все свои творческие фантазии
В зависимости от сложности проводимых работ, количество документов может существенно возрасти.
Дизайн двухкомнатной хрущевки со смежными комнатами без перепланировки. Идеи перепланировки
Итак, основные проблемы перепланировки и ремонта в хрущевке обозначены. Теперь о конкретных идеях перепланировки.
Однокомнатные хрущевки
Казалось бы, что можно придумать, имея в качестве исходных данных однокомнатную хрущевку? Оказывается, можно и санузел увеличить и сделать отдельную спальню, по крайней мере, сделать перепланировку более удобной вполне возможно.
Типовая планировка однокомнатной хрущевки
Типовая планировка однокомнатной квартиры в хрущевке – это коридор, ведущий к кухне и «арка» в гостиную. В некоторых сериях «арка» застраивалась, а проход в комнату располагался прямо напротив входной двери. Иногда проект предусматривал наличие кладовки. В угловых квартирах на длинной стене гостиной располагалось еще одно окно.
| Вариант перепланировки | Описание перепланировки |
![]() | Это вариант перепланировки, где «арка» застраивается и превращается в обычный дверной проем, функциональность гостиной в этом случае возрастает, так как вдоль увеличившейся в длину стены можно поставить, например, диван. Переносится и дверь в туалет, за счет скругления пространства прихожая становится просторнее. Теперь здесь может удобно разместиться угловой шкаф. Кухня остается без изменений.
|
![]() | Здесь можно увидеть, что полностью сносятся все межкомнатные перегородки, в том числе перегородки санузла. Пространство полностью перестраивается. Санузел расширяется за счет коридорчика, теперь здесь достаточно места, чтобы установить стиральную машину. Раковина, кстати, переносится на противоположную стену, что потребует подвода канализации. Перегородка между гостиной и кухней демонтируется, стена между ванной и кухней удлиняется за счет застраивания старого дверного проема: можно разместить полноценный кухонный гарнитур. Недостаток перепланировки в том, что уменьшается площадь прихожей, но зато в гостиной теперь удобно расположить шкаф-купе, тем более, что место для вешалки и полки под обувь в прихожей найдется.
|
![]() | Еще один вариант трансформации пространства за счет прохода. В этом случае меняется ориентация ванной комнаты – она немного увеличивается по площади, но основной упор сделан на увеличение площади кухни. Она частично объединяется с гостиной за счет широкого проема, в котором можно установить раздвижные перегородки.
|
![]() | Здесь много внимания уделено местам хранения, причем находится место и для двухспальной кровати, она никак не отделяется от зоны гостиной, но находится в уютном закутке. Кухня объединяется с гостиной, устраивается отдельная ниша для холодильника. Обыграть кухонную, гостиную и спальную зоны можно с помощью дизайна. Обратите внимание на санузел. Вход в него переносится из прихожей в проход, благодаря чему убирается дверь из узкой прихожей. Замена ванны на душевую кабину позволяет разгрузить пространство и установить стиральную машину.
|
![]() | В этом варианте за счет переноса дверного проема в кухню расширен санузел, а точнее область ванны, часть стены скошена, благодаря чему получился полноценный дверной проем в гостиную. Пространство кухни существенно не оптимизировано.
|
![]() | Здесь снесена перегородка между прихожей и гостиной. На этом месте стоит шкаф. Частично отсутствует перегородка между гостиной и кухней. Роль разделителя пространства выполняет барная стойка. Благодаря смещению столовой зоны из кухни в гостиную, кухня стала значительно просторнее. Кухонный гарнитур в этом варианте расположен буквой «Г» и занимает не только длинную стену, но и стену с окном. Пожалуй, надо отметить недостаток мест хранения и маленький санузел, который не перестраивается, но вместо ванны устанавливаются душевая кабина и стиральная машинка.
|
![]() | Даже такую маленькую квартиру как однокомнатная хрущевка можно сделать двухкомнатной при необходимости. Например, на этом плане можно увидеть, что в дальнем углу гостиной поставили кровать и прикроватную тумбу. Зона спальни отделена частичной перегородкой, чтобы оставить доступ для естественного освещения, так как спальня без окна. Кухонная и обеденная зона объединены единой столешницей. Проведено зонирование при помощи напольного покрытия. Есть места для хранения как в прихожей, так и в гостиной.
|
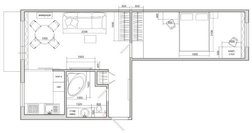
![]() | В угловых хрущевках, где в комнате два окна, вариантов перепланировки больше, точнее из одной комнаты можно сделать две полноценных светлых комнаты с естественным освещением. На этом плане видно, что перегородка между кухней и гостиной снесена, но возведена новая перегородка, которая теперь делит комнату на две части. В результате получилась отличная квартира с раздельными комнатами: гостиной-столовой и спальней. Зону санузла перепланировка не затрагивает.
|
![]() | Этот вариант перепланировки похож на предыдущий, но вход в спальню – из гостиной. Зато в спальню можно заказать большой шкаф-купе, который решит проблему с местом для хранения. |








