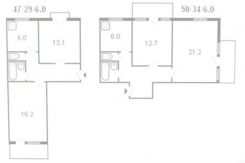
Сталинка планировка 3 комнатная. Городская архитектура: сталинки
Сталинка планировка 3 комнатная. Городская архитектура: сталинки
К домам сталинского периода (или «сталинкам») принято относить здания, построенные в 30-50-е годы XX века. Вне зависимости от времени постройки, все сталинские дома по конструкции и планировке можно разделить на два типа.
Первый тип – номенклатурное жилье, предназначавшееся для партийных и хозяйственных руководителей и их семей. Номенклатурные дома расположены вдоль центральных проспектов и на площадях.
Первые «сталинки» эксклюзивны и декорированы колоннами, арками и лепниной. Построены они были из красного, белого кирпича или шлакоблоков, перекрытия железобетонные или комбинированные. Архитекторы сталинской эпохи не экономили на пространстве квартир и подъездов. На этаже, как правило, располагается всего 2-4 квартиры. Обязательно есть лифты, зачастую на кухне имеется индивидуальный мусоропровод. Во многих квартирах были предусмотрены кабинеты и детские, библиотеки и комнаты для прислуги. В квартирах традиционно высокие потолки (больше трех метров), большие кухни, раздельные санузлы, комнаты – от 15 до 25 кв.м., а местами даже до 30 кв. м.
В Москве к ним можно отнести высотки на Котельнической набережной и Баррикадной, а также во дворах тихого центра и в районах Ленинградского, Кутузовского и Ленинского проспектов.
Знаменитый Дом на набережной (Дом Правительства). Комплекс сооружений на Берсеневской набережной Москвы-реки на Болотном острове, по адресу улица Серафимовича, дом 2 (Берсеневская набережная, 20):
Вот, например, так сейчас выглядит одна из квартир в доме на набережной :
В Санкт-Петербурге большая часть номенклатурных «сталинок» расположена вблизи Смольного, вдоль Московского проспекта, в Выборгском и Кировском районах, на Светлановской площади.
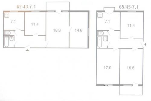
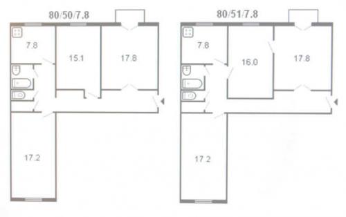
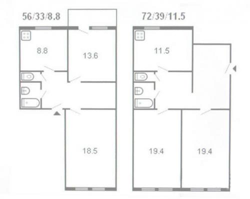
Ко второму типу относят рядовые сталинские дома, которые строились в основном для рабочих, часто под коммунальное заселение. В основном эти дома расположены в глубине кварталов. Архитектура таких зданий утилитарна, отсутствуют украшения, для наружных стен используется неоштукатуренный силикатный кирпич. Перекрытия в основном деревянные, но встречаются и металлические с деревянным наполнением, и железобетонные. Рабочие сталинки не имеют мусоропровода и лифта. В рядовых домах бывают как классические для того периода трёх- и четырехкомнатные квартиры, так и послевоенные «коридорные» — изначально общежития. Площади квартир значительно меньше, чем в домах для номенклатуры. Дополнительные удобства зачастую в таких домах не проектировали, однако в 1970-е годы многие были оборудованы выносными лифтами, в них появились ванны (в кухнях) или ванные комнаты. В Петербурге большая часть рядовых «сталинок» расположена на Васильевском острове, в Кировском районе, в районе улицы Фрунзе, проспекта Ю. Гагарина, Алтайской улицы, станции метро Автово.
Позднесталинские дома — серии кирпичных и блочных домов, построенные в 1950-х годах. Основным требованием при проектировании была возможность для коммунального заселения, поэтому в сталинских сериях предусмотрены высокие потолки, просторные изолированные комнаты, большие прихожие и относительно большие кухни. Благодаря этому, а также расположению в престижных районах Москвы, сталинские дома до сих пор пользуются популярностью на рынке вторичного жилья. Строились такие дома вплоть до 1961 года. 








Сери. 255.1-1. :: Ступени железобетонные плоские длиной 150 и 210 см для наружных крылец общественных зданий
Серия 1.255.1-1. Ступени железобетонные плоские длиной 150 и 210 см для наружных крылец общественных зданий
Плоские железобетонные ступни для устройства парадных и служебных входов в административные и коммерческие объекты. Это рядовые входные группы, которые соответствуют всем стандартам пожарной и проектировочной безопасности. Нагрузки на крыльцо, обледенение, воздействие влаги и реагентов может быстро «убить» несертифицированные ЖБИ. Поэтому профессионалы стараются купить железобетонные ступени, выпущенные по ГОСТ и типовой серии. Степени плоские СНК для крылец регламентирует типовая серия 1.255.1-1. Здесь указываются показатели контроля качества и рабочие чертежи плоских ступеней.
Сегодня серия включает в себя четыре типоразмера ступеней, которые активно используются при строительстве по всей стране. Высота ступенек плоских 140 мм, длина 1500 и 2100 мм – оптимальная величина для строительства самых разных лестниц. Несущая способность до 600 кгс/м2 позволяет использовать данные ЖБИ в зданиях с высокой пропускной способностью. Технические требования к железобетонным ступеням включает в себя действующий ГОСТ 8717.0-84.
Монтаж железобетонных ступеней
Плоские ступени необходимо опирать не менее чем на 100 мм, а также замоноличивать, сохраняя прямолинейность. В отличие от монолитных ступеней, сборный заводской железобетон монтируется за считаные часы. Вам не нужно вымерять и ждать, когда застынет бетон. Цикл производства бетонных ступеней позволяет снабжать объекты в сжатые сроки. Плоские железобетонные ступени уже имеют декоративную отделку и сразу создают респектабельный вид крыльца. Вы можете купить цветные ступени, а также шлифованные с мраморной крошкой.
Эксплуатация входных групп и ступеней – наружная, а значит, ступени СНК требуется качественная основательная защита от влаги. Вода и реагенты, систематические перепады температур могут существенно насолить бетону. Для того чтобы продлить срок службы ступени серия 1.255.1-1. Предусматривает модифицированный состав бетона, защиту армирования и гидрофобизацию. При наличии агрессивных сред профессионалы рекомендуют купить жб ступени подготовленные (из сульфатостойкого цемента). Ступени железобетонные по ГОСТ 8717.0-84 используются в районах различных климатических условий. Подобрать ступени или марши помогут наши специалисты. Продажа ступеней бетонных осуществляется с доставкой по России.
Плоские железобетонные ступени
Подготовленный бетон имеет низкую истираемость и проницаемость, поэтому готовые ступеньки служат долго. Также, как и все ЖБИ, ступени контролируются по безопасности, прочности и трещиностойкости. Декоративная сторона ступеней СНК – идеальная геометрия, ровная поверхность, защитный декоративный слой толщиной 15 мм. Также ступени железобетонные с маркой «с» имеют гнёзда для крепления поручней. Сегодня приобрести ступени железобетонные по чертежам серии 1.255.1-1. Вы можете с доставкой. Любая комплектация, опт и розница с доставкой – это сервис компании «Комплекс-С». По заказу вы можете купить железобетонные ступени с индивидуальными коррективами, для работы в северных широтах или индустриальных условиях. Усиленные ступени и сборные участки лестничных маршей – все для удобства вашего строительства.
Цены на бетонные ступени
Не секрет, что стоимость ЖБИ рассчитывается на основании расхода бетона, энергоносителей и дорогой стали. Прочные ступени по чертежам серии 1.255.1-1. Армируются сварными сетками, которые можно купить по доступным ценам. Поэтому готовые сертифицированные бетонные плоские ступени вы также можете приобрести за стабильную плату.
Планировка сталинка 1 комната. Перепланировка и дизайн
Планировка сталинок, состоящих из 1 комнаты, это достаточно сложный процесс. В одном помещении жильцам нужно разместить все жизненно важные вещи, а также найти в нем место для комфортного пребывания после трудового дня.
На сегодняшний день существует 4 варианта по перепланировке, которые позволяют грамотно и продуманно использовать жилую площадь. Рассмотрим их подробнее.
Объединение кухни с гостиной
Плюсом такого варианта является то, что объединение двух важных зон приведет к зрительному увеличению пространства. План предусматривает разделение кухни-гостиной от спальни с помощью переносной перегородки, которая делит помещение на две функциональные зоны. В спальной зоне можно поместить двуспальную кровать, шкаф и даже письменный стол, а в гостиной можно установить диван-трансформер.
Еще один плюс подобной планировки – это совмещенный санузел и просторная прихожая, в которой легко поместится шкаф для хранения верхней одежды, головных уборов и других подобных вещей.
Нужно помнить, что перегородка между гостиной и спальней должна состоять из легкого и тонкого материала. Это позволит не менять конструкцию здания, убрать ширму или декоративную перегородку в любой момент.
Организация детского пространства
Главным достоинством этого решения является то, что в комнате предусматривается размещение односпальной кровати для ребенка, которая окружается стеллажами. Это позволяет в одном помещении организовать зоны отдыха и для взрослых, и для детей . А для внеклассных занятий или репетиций можно обустроить балкон.
Для экономии пространства кухню объединяют с гостиной, используя импровизированную перегородку на их периферии. А с помощью вместительного гардероба можно отделить коридор от зала.
Единственным недостатком этой планировки является отсутствие уединения, так как детская и взрослая спальня будут находиться на виду друг у друга.
Отделение кухни-столовой
Преимуществом данной планировки является то, что кухня-столовая располагается в отдельной зоне, а это позволит огородить основную комнату от запахов еды и шума готовки. Такая квартира-сталинка имеет отдельные туалет и ванну, а прихожая оснащается шкафом-купе и этажеркой . В главной комнате легко образуется зал, состоящий из раздвижного дивана, шкафа и мини-стенки.
Минусом этого проекта является отсутствие детского пространства.
Создание рабочего кабинета на лоджии
Этот проект предусматривает совмещенную кухню-столовую, раздельный санузел, а также детскую и взрослую спальни с выходом на лоджию. Мебель располагается по периметру комнат, чтобы сохранить свободное пространство их центральной части . Диван отделяется стеллажом, в котором можно хранить книжные принадлежности . Застекленный балкон используется как рабочий кабинет, и включает в себя компактный письменный стол, стул и шкаф-пенал.
Недостатком этого проекта является недостаточность мест хранения, поэтому стоит приобретать мебель со встроенными ящиками и полками.