Интерьер и декор

Сотни идей для Вашего интерьера!

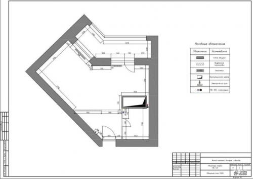
Дизайнеры разместили на 38 квадратах компактную кухню, обеденную зону, гостиную, спальню и санузел.

18.01.2021 в 09:41

И про системы хранения тоже не забыли.

Особенность квартиры - в ее неправильной форме и небольшой площади. При этом заказчица хотела обустроить на 38 квадратах полноценную спальню, гостиную и кухню с обеденной группой
Дизайнеры разместили на 38 квадратах компактную кухню, обеденную зону, гостиную, спальню и санузел..

Дизайнеры разместили на 38 квадратах компактную кухню, обеденную зону, гостиную, спальню и санузел. 01
Дизайнеры разместили на 38 квадратах компактную кухню, обеденную зону, гостиную, спальню и санузел. 02
Дизайнеры разместили на 38 квадратах компактную кухню, обеденную зону, гостиную, спальню и санузел. 03
Дизайнеры разместили на 38 квадратах компактную кухню, обеденную зону, гостиную, спальню и санузел. 04
Дизайнеры разместили на 38 квадратах компактную кухню, обеденную зону, гостиную, спальню и санузел. 05
Дизайнеры разместили на 38 квадратах компактную кухню, обеденную зону, гостиную, спальню и санузел. 06
Дизайнеры разместили на 38 квадратах компактную кухню, обеденную зону, гостиную, спальню и санузел. 07
Дизайнеры разместили на 38 квадратах компактную кухню, обеденную зону, гостиную, спальню и санузел. 08