Как преобразить однокомнатную квартиру 40 кв.м в двухкомнатную: советы и идеи
- Как преобразить однокомнатную квартиру 40 кв.м в двухкомнатную: советы и идеи
- Связанные вопросы и ответы
- Какие существуют способы перепланировки однокомнатной квартиры 40 кв.м в двухкомнатную
- Нужно ли получать разрешение на перепланировку однокомнатной квартиры в двухкомнатную
- Как определить оптимальную планировку для двухкомнатной квартиры из 40 кв.м
- Какие материалы лучше использовать для перегородки при перепланировке
- Как рассчитать стоимость перепланировки однокомнатной квартиры 40 кв.м
- Как выбрать двери и окна для новой планировки
- Какие нюансы нужно учитывать при установке перегородки
- Влияет ли перепланировка на стоимость квартиры
Как преобразить однокомнатную квартиру 40 кв.м в двухкомнатную: советы и идеи
Однокомнатная квартира площадью 40 кв.м – это популярный вариант жилья для молодых семей, пар и одиночек. Однако по мере роста семьи или изменения потребностей возникает необходимость в дополнительном пространстве. Преобразование студии в двухкомнатную квартиру – это отличный способ повысить комфорт и функциональность жилья без изменения его общей площади. В этой статье мы рассмотрим основные этапы и идеи, которые помогут вам осуществить эту задачу.
Проект и планировка
Первым шагом в преобразовании однокомнатной квартиры в двухкомнатную является разработка проекта. Это важно, чтобы новая планировка соответствовала вашим потребностям и не нарушила баланс пространства.
| Вариант планировки | Описание |
|---|---|
| Классическое разделение | Строительство перегородки между жилой зоной и спальней. |
| Открытая планировка | Минимальное разделение пространства с использованием арки или раздвижных дверей. |
| Функциональные зоны | Разделение пространства на зоны с использованием мебели и штор. |
Выбор варианта планировки
Каждый из вариантов имеет свои преимущества и недостатки. Классическое разделение обеспечивает и комфорт, но может сделать квартиру темнее. Открытая планировка сохраняет светлость и простор, но ограничивает приватность. Функциональные зоны – это компромисс между этими двумя вариантами.
Стены и перегородки
Строительство стен и перегородок – это ключевой этап преобразования квартиры. Важно учитывать, какие стены можно сносить, а какие необходимо сохранить.
- Проверьте, какие стены являются несущими.
- Составьте план размещения дверей и окон.
- Выберите материалы для перегородок (гипсокартон, кирпич и т.д.).
Двери и окна
Двери и окна играют важную роль в планировке. Раздвижные двери экономят пространство, а большие окна обеспечивают хорошее освещение.
Освещение и интерьер
Освещение и интерьер могут значительно повлиять на восприятие пространства. Используйте светлые тона и зеркала, чтобы сделать квартиру более просторной.
Зонирование пространства
Зонирование помогает разделить пространство на функциональные зоны без строительства стен. Используйте мебель, шторы или ковры для этого.
Практические советы
Перед началом работ убедитесь, что у вас есть все необходимые разрешения и проекты. Также важно учитывать бюджет и сроки выполнения работ.
- Консультируйтесь с профессионалами.
- Выбирайте качественные материалы.
- Планируйте бюджет с учетом всех расходов.
Итоги
Преобразование однокомнатной квартиры в двухкомнатную – это сложная, но выполнимая задача. С помощью правильно разработанного проекта и качественно выполненных работ вы сможете создать уютное и функциональное жилье, соответствующее вашим потребностям.
Связанные вопросы и ответы:
Вопрос 1: Какие основные этапы преобразования однокомнатной квартиры площадью 40 кв.м в двухкомнатная
Преобразование однокомнатной квартиры в двухкомнатную включает несколько ключевых этапов. Во-первых, необходимо разработать проект перепланировки, который будет учитывать ваши потребности и пожелания. На этом этапе важно определить, где будет находиться новая стена или перегородка, и как будетлено пространство. Во-вторых, требуется получить разрешение в соответствующих органах, особенно если вы планируете сносить стены или вносить значительные изменения в структуру помещения. В-третьих, начинаются строительные работы: установка перегородок, дверей, проведение необходимых коммуникаций. На заключительном этапе проводится отделка новых помещений и установка необходимой мебели. Каждый этап требует тщательного планирования и соблюдения строительных норм.
Вопрос 2: Какие материалы лучше использовать для перегородки при разделении комнаты на две
Выбор материалов для перегородки зависит от ваших потребностей и бюджета. Если вы хотите легкую и недорогую конструкцию, можно использовать гипсокартонные листы, которые легко монтируются и позволяют создать ровные поверхности. Для большей звукоизоляции рекомендуется использовать более массивные материалы, такие как кирпич или пеноблоки. Также можно применять комбинированные конструкции, например, металлический каркас с заполнением минеральной ватой для лучшей звукоизоляции. Необходимо учитывать, что тяжелые материалы могут требовать дополнительного укрепления пола. Перед выбором материала стоит проконсультироваться с chuynиком, чтобы убедиться, что конструкция будет безопасной и соответствовать требованиям.
Вопрос 3: Какие нюансы нужно учитывать при установке дверей в новой перегородке
При установке дверей в новой перегородке важно учитывать несколько ключевых моментов. Во-первых, дверь должна гармонировать с общим интерьером квартиры, поэтому стоит выбирать двери, соответствующие стилю вашего дома. Во-вторых, дверь должна быть правильно установлена, чтобы обеспечить удобство использования и герметичность. В-третьих, если вы хотите сохранить звукоизоляцию, стоит выбирать двери с повышенной звукоизоляцией или использовать дополнительные уплотнения. Также важно убедиться, что дверь не будет создавать препятствий в коридоре или проходе. Наконец, не забудьте предусмотреть место для дверных ручек и замков, если это необходимо.
Вопрос 4: Как зонировать пространство без строительных работ
Если вы не хотите проводить строительные работы, можно использовать различные способы зонирования пространства. Одним из самых простых и доступных методов является использование мебели, например, поставить шкаф или стеллаж, который разделит комнату на две зоны. Также можно использовать текстиль, такой как тяжелые портьеры или разделочные шторы, которые помогут визуально разделить пространство. Еще одним вариантом является использование цветовых решений: разные цвета стен или полов могут создать ощущение отдельных зон. Кроме того, можно использовать освещение: установить разные светильники в разных частях комнаты, чтобы создать ощущение разделения. Эти методы позволяют гибко менять планировку без вмешательства в конструкцию помещения.
Вопрос 5: Какие документы необходимы для перепланировки квартиры
Для перепланировки квартиры необходимо подготовить ряд документов. Во-первых, требуется проект перепланировки, который должен быть составлен квалифицированным специалистом и содержать подробное описание изменений. Во-вторых, необходимо получить разрешение от местных властей или жилищной инспекции, подтверждающее, что ваш проект соответствует строительным нормам и правилам. В-третьих, если вы проживаете в многоквартирном доме, может потребоваться согласование с управляющей компанией или собрание жильцов. Также могут быть необходимы технический паспорт помещения и другие документы, подтверждающие ваше право на проведение работ. Без этих документов проведение перепланировки может быть признано незаконным.
Вопрос 6: Какие советы можно дать по выбору дверей для новой комнаты
При выборе дверей для новой комнаты важно учитывать несколько факторов. Во-первых, двери должны соответствовать стилю вашего интерьера, чтобы создать гармоничный вид. Во-вторых, двери должны быть функциональными: например, если вы хотите сохранить звукоизоляцию, выбирайте двери с повышенной звукоизоляцией. В-третьих, двери должны быть безопасными, особенно если в доме есть дети или домашние животные. Также важно учитывать размер дверного проема, чтобы дверь легко устанавливалась и не создавала препятствий. Наконец, не забудьте про качество дверей: они должны быть прочными и долговечными. Перед покупкой стоит посоветоваться с продавцом или специалистом, чтобы выбрать оптимальный вариант для ваших нужд.
Какие существуют способы перепланировки однокомнатной квартиры 40 кв.м в двухкомнатную
Переделка однушки в двушку- один из способов улучшить свои жилищные условия. Большинство 1-комнатных квартир имеют небольшую площадь, так что в них далеко не всегда удается осуществить такую перепланировку, однако некоторые варианты перепланировки однокомнатной квартиры в двухкомнатную все-таки существуют.
Именно о них мы и поговорим ниже.
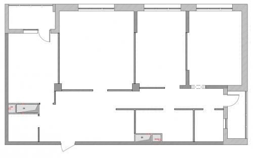
1.1. Перепланировка однушки в двушку за счет переноса кухни.
Самый простой способ увеличить количество жилых помещений- это перенести кухню, а на её месте устроить, к примеру, спальню. Ниже приведен пример такой согласованной перепланировки:

Перепланировка однокомнатной квартиры в двухкомнатную с перемещением кухни. План до ремонта.

Перепланировка однокомнатной квартиры в двухкомнатную с перемещением кухни. План после ремонта.
Очень подробно все нюансы по перемещению кухни и требования мы рассмотрели в отдельной статье . Из неё Вы узнаете каким образом можно законно выполнить такой перенос кухни и увеличить количество жилых комнат. Здесь приведём лишь отличительные особенности такого переустройства, которые характерны именно для 1-комнатных квартир.
Как Вы узнаете из рекомендуемой статьи, во-первых, перемещать кухонное оборудование разрешается только на площади нежилых помещений, а, во-вторых, площадь новой кухни-ниши на нежилой территории не должна быть менее пяти квадратных метров. Здесь и заключается главная загвоздка для осуществления такой перепланировки в 1-комнатной квартире. Хорошо, если в ней предусмотрена кладовая (чаще всего в современных новостройках), которая идеально подходит для перемещения в неё кухни, но в большинстве однокомнатных квартир единственным нежилым помещением является коридор. И если его площадь менее 5 кв.м., что бывает достаточно часто, то переместить кухню не получится.
Следует также отметить, что освободившуюся от кухни комнату официально нельзя делать жилой, так как размещение жилых помещений под кухней соседей сверху запрещено. Для согласования новую комнату называют кабинетом, то есть нежилым помещением, и юридически по всем документам данное помещение будет проходить, как нежилое.
По факту же там можно сделать жилую комнату, в том числе спальню, так как мебель никак не отражается на соответствующих планах БТИ квартиры. Официально назвать бывшее помещение кухни жилым возможно лишь для тех квартир, что расположены на последнем этаже здания, то есть над комнатой, таким образом, не окажется кухни соседей.
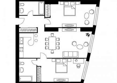
1.2. Перепланировка из 1-комнатной в 2-комнатную с разделением комнаты на две.
В планировках некоторых однокомнатных квартир присутствует комната с двумя окнами. Если позволяет площадь, то большую комнату разделяют на два отдельных жилых помещения с собственным окном в каждом. Ниже приведена такая согласованная перепланировка 1-комнатной квартиры в двухкомнатную:

План до ремонта.

План после ремонта.
Можно разделить большую комнату на два отдельных помещения даже, если в ней присутствует только одно окно. Только в этом случае, одно из таких помещений окажется без окна и назвать его жилым официально не получится из-за отсутствия естественного освещения. По документам его придется проводить подсобным помещением, но по факту там вполне можно устроить спальню.
Сейчас выход из санузла допускается выполнять в любую комнату.
Нужно ли получать разрешение на перепланировку однокомнатной квартиры в двухкомнатную
критерии, по которым можно понять, что согласование с мосжилинспекцией не требуется
перепланировка не нуждается в обращении в мосжилинспекцию в том случае, если проведение ремонта не затронет непосредственно схему жилища и всего строения в целом. по каким особенностям определяют, что перепланировку не согласовывают с жилищной инспекцией в москве:- внутриквартирные перегородки не затрагиваются;
- конструкция проемов окон и дверей не изменяется;
- двери не переносятся в другое место и располагаются согласно плану БТИ;
- напольное покрытие не изменяется.
примеры работ, которые не нужно согласовывать
в жилищном законодательстве в 2021 году указано, какая перепланировка квартиры не требует обращения в государственные органы. к ним относятся:- замена электропроводки, не требующая штробления;
- монтаж трубопровода для ванной или туалета;
- выравнивание стен под поклейку обоев или нанесение краски;
- монтаж новых оконных рам или дверей;
- демонтаж старой ванны, раковины или унитаза;
- любая косметическая отделка комнаты.
работы, которые на практике можно не согласовывать
выделяется перечень незначительных ремонтных работ, узаконивание которых осуществляется по желанию собственника жилого помещения. такие изменения разрешается проводить без разрешения мосжилинспекции. в случае необходимости можно обратиться в соответствующие органы и узаконить мелкий ремонт, но это станет просто лишней тратой времени. среди таких изменений можно выделить:- монтаж или снятие шкафов встроенного типа;
- демонтаж остекления на лоджии или балконе;
- установка остекления на лоджии или балконе.
Как определить оптимальную планировку для двухкомнатной квартиры из 40 кв.м
Минимальная площадь двухкомнатных, по данным «Метриум», составляет 43 кв. м. Даже такой метраж позволяет сделать квартиру достаточно комфортной, но все же не для семьи с детьми. Максимальная площадь двухкомнатной квартиры массового сегмента – 148,6 кв. м. Это явный перебор: если есть деньги на такое количество квадратных метров, рациональнее их потратить на трех- или даже четырехкомнатную квартиру.
К тому же очень большие квартиры сейчас – скорее, исключение из правил. Средняя площадь двушки в эконом- и комфортклассах составляет 62,1 кв. м. Оптимальными по площади - чтобы разместиться в квартире достаточно комфортно, но не переплачивать за лишние метры - управляющий партнер компании «Метриум» Мария Литинецкая считает двушки в 55-65 кв. м.
Тем не менее для некоторых покупателей важнее именно размер жилья, а не количество комнат, тем более большая двухкомнатная квартира будет стоить дешевле, чем трёшка той же площади (см. «»). Таким покупателям имеет смысл присмотреться к старым готовым проектам, которые выходили на рынок в те времена, когда были распространены большие площади. В некоторых из них остались квартиры на первичном рынке. Например, вплощадь квартир начинается от 109 кв. м (меньшей площади доступны только единичные апартаменты), и речь идет о квартире с двумя спальнями.

Частный дизайнер Анна Смирнова рекомендует при выборе планировки двухкомнатной квартиры обращать особое внимание на размер прихожей: «Двухкомнатная квартира предполагает наличие большего количества вещей у жильцов, чем стартовая однушка, поэтому понадобится больше мест для хранения. При этом во многих двушках распространены длинные коридоры без свободных углов, где проблематично разместить встроенный шкаф. А в некоторых двушках прихожие такие маленькие, что нет места даже для небольшого шкафа для верхней одежды».
Тем, кто покупает двухкомнатную квартиру надолго, например, с расчетом на пополнение в семье, лучше выбрать более гибкую планировку, ведь некоторые двушки можно впоследствии переделать в трёшку. В этом случае нужно в первую очередь смотреть на количество окон. «Двухкомнатная квартира, подходящая для трансформации в трехкомнатную, должна иметь как минимум четыре окна, - говорит Мария Литинецкая. - В этом случае каждое помещение получит собственный источник света. Однако каждую планировку нужно тщательно изучать, потому что даже необходимое количество оконных проемов может быть размещено неудачно. К примеру, два окна могут вплотную примыкать друг к другу или к углу, что не позволит возвести между ними перегородку».
Например, вот MR-Group есть двушки площадью 66,5 кв. м с большой кухней-гостиной (28 кв. м) с двумя окнами. Такая планировка позволяет в случае необходимости разделить помещение на два и выделить полноценную дополнительную спальню.
Какие материалы лучше использовать для перегородки при перепланировке
3 мин. на прочтение
Сколько денег нужно на ремонт – этим вопросом задается почти каждый человек, который решил обновить интерьер старой квартиры или планирует покупку собственной недвижимости в новостройке. Нам это тоже стало интересно и мы решили составить примерную (ну, очень примерную) смету для ремонта однушки в типовом доме.
Для примера мы взяли квартиру в доме П-44, ассортимент Леруа Мерлен и ИКЕА, а вдохновением послужили скандинавские интерьеры – как нам кажется, их реализовать проще и дешевле всего.

Мы не стали считать черновые материалы, допустим, что квартира уже с готовой черновой отделкой или вторичка в хорошем состоянии, ремонт без перепланировки. Стоимость работ вы тоже сможете добавить сами: кто-то может сделать ремонт своими руками, а кому-то понадобится бригада рабочих.
Отделочные материалы
Напольное покрытие:
- Комната: ламинат Artens (316 руб./кв м) – 5 973 руб.
- Прихожая и кухня: керамогранит «Про Плейн», Kerama Marazzi (798 руб./ кв.м) – 12 130 руб.
- Ванная комната: керамогранит «Про Плейн», Kerama Marazzi (798 руб./кв. м) – 2 793 руб.
Отделка стен:
- Для комнаты, коридора и кухни: белая или светло-серая краска Trade Diamond, Dulux (800 руб./л) – 9 600 руб.
- Для кухонного фартука: плитка «Конфетти», Kerama Marazzi (993 руб./кв. м) – 1 500 руб.
- Для ванной комнаты: настенная плитка «Калейдоскоп», Kerama Marazzi (682 руб./кв. м) – 13 500 руб.
Потолок:
- Натяжной потолок во всей квартире: матовый (350 руб./кв. м) – 13 160 руб.
Двери:
- 3 межкомнатные: белые двери Скинни, Bravo (7371 руб./комплект) – 22 113 руб.
- 1 входная: дверь «Оптим», Bravo – 17 801 руб.
Плинтусы:
- По всей квартире: напольный плинтус из МДФ под покраску, Leroy Merlin (360 руб./шт) – 6 120 руб.
Электрооборудование:
- Розетки (для комнаты – 5 шт., для кухни – 9 шт, для ванной – 2 шт., для коридора – 2 шт.): Legrand Etika (102 руб./шт) – 1 326 руб.
- Выключатели (для комнаты – 2 шт., для кухни – 1 шт., для ванной – 1 шт., для прихожей – 1 шт.): Legrand Etika (98 руб./шт) – 490 руб.
- Рамки: Legrand Etika (28 руб./шт) – 644 руб.

Мебель
Кухня:
- Кухонный гарнитур (нижняя часть: напольный шкаф под раковину 60 см, напольный шкаф с ящиками 40 см – 2 шт.; верхняя часть: шкаф с полками 60 см, шкафа с полками 40 см – 2 шт.) – шкафы МЕТОД, ИКЕА, фасады Кунгсбакка антрацит и Хэггеби белый – 46 580 руб.
- Столешница ЛИННМОН, ИКЕА – 2 249 руб.
- Врезная мойка ЛОНГУДДЕН, ИКЕА – 6 990 руб.
- Техника: Двухкамерный холодильник, Indesit – 20 000 руб. ; встраиваемая варочная панель на 2 конфорки, Candy – 8 720 руб.
- Смеситель: смеситель, Paulmark – 4 500 руб.
- Стол: обеденный стол Oswin, iModern – 9 940 руб.
- Стулья: стул НОРНЭС, ИКЕА (4999 руб/шт) – 9 998 руб.
Гостиная:
- Диван-кровать: диван БРИССУНД, ИКЕА – 17 999 руб.
- Система хранения: комбинация для хранения ОПХУС, ИКЕА – 30 720 руб.
- Журнальный столик: сервировочный столик ГЛАДОМ, ИКЕА – 1 299 руб.
- Кресло: кресло из ротанга АГЕН, ИКЕА – 3 999 руб.
Ванная комната:
- Санфаянс: акриловая ванна, Aquinet – 12 000 руб. ; унитаз-компакт, Cersanit – 7 990 руб.
- Тумба: тумба с раковиной, Sanstar – 6 573 руб.
- Полотенцесушитель: водяной полотенцесушитель, Terminus – 1 770 руб.
- Смесители: смеситель для раковины, Lemark, 2490 руб.; душевая стойка, Lemark – 15 830 руб.
- Зеркало: зеркало СТОКГОЛЬМ, ИКЕА – 3 999 руб.
- Техника: стиральная машина, Candy – 11 750 руб.
Прихожая:
- Шкаф: шкаф-купе ПАКС ИКЕА – 24 800 руб.
- Галошница: галошница ТРОНЭС, ИКЕА – 2 499 руб.
- Вешалка: вешалка ЧУСИГ, ИКЕА – 1 299 руб.
- Табурет: табурет НОРРОКЕР, ИКЕА – 2 499 руб.

Освещение
Кухня:
- Светильник: подвес Minaki, Inspire (1374 руб/шт) – 2 748 руб.
Как рассчитать стоимость перепланировки однокомнатной квартиры 40 кв.м
механизм
не стоит путать перегородки и двери шкафа-купе. в отличие от последних, у перегородок отсутствует нижний трек, механизм устанавливается в верхней части проема. это сделано для того, чтобы вам ничто не мешало и вы не спотыкались о рельс, вмонтированный в пол. Перегородка UNION.размера проема
в случае, если проем недостаточно широкий и вам хочется оставить его полностью свободным для прохода, лучше установить перегородку, створки которой двигаются вдоль стены. для проемов шириной от двух метров подойдут перегородки со створками, которые устанавливаются внутри проема и двигаются в обе стороны. при работе с пространствами большой ширины каждый случай рассматривается отдельно: максимальная ширина створки ограничена, так что для проема шириной в три метра можно использовать три створки по метру каждая.особый подход необходим и при установке перегородок в помещениях с высокими потолками (например, в зданиях старого фонда): перегородки для таких квартир предлагают далеко не все производители, однако у union подходящее решение можно найти. максимальный размер полотен union составляет 3,5 х 1,2 м, так что у заказчика и дизайнера будет шанс подобрать наиболее оптимальное соотношение размеров и количества створок, в том числе и для нестандартных проемов. Перегородка UNION.материалы
если вы заказываете перегородку со вставками из стекла, убедитесь в его травмобезопасности. существует специальное закаленное стекло: если оно разобьется, то рассыпется в мелкую крошку. также есть многослойное стекло триплекс: между двумя стеклами размещается незаметная глазу пленка, и разбившееся стекло остается на ней.стеклянное полотно может быть выполнено с обрамлением или без — в первом случае конструкция будет более надежной. в перегородках union травмобезопасное стекло обрамляют профили из алюминия: это надежный, прочный, но при этом легкий материал. Проект Гавриила и Маргариты Вербицких, IDOL DESIGN. Раздвижная перегородка UNION.Как выбрать двери и окна для новой планировки
По статье 7.21 КоАП РФ за несогласованную перепланировку в многоквартирном жилом доме уплачивают штраф в 2−2,5 тыс. руб. Но проблема не в маленьком штрафе, а в том, что придется собирать документы, платить за оформление и возможно, доказывать свою правоту в суде. И если суд признает действия незаконными, придется делать новый ремонт и возвращать все в прежнее состояние.
При обращении в БТИ и получении разрешения на проведение работ, изменения вносят в техпаспорт. Если капитальный ремонт квартиры провели с перепланировкой без согласования, а вы собираетесь продать недвижимость, обращайтесь в БТИ. После того как получите разрешение, изменения внесут в техпаспорт.
Если технический план не соответствует тому, что в квартире, сделку купли-продажи вы все равно оформите, т. к. это не запрещено законом. Но в этом случае новому владельцу придется самому получать разрешение на перепланировку и оплачивать штраф. Найти покупателя на такую недвижимость сложно и придется делать хорошую скидку, т. к. не каждый захочет покупать квартиру с незаконной перепланировкой.
Когда будете искать покупателя на такую недвижимость, укажите в объявлении, что перепланировка сделана без согласования с БТИ. Если предоставите скидку в размере 15−25%, желающие найдутся. Подготовьте все документы на квартиру и заключите договор купли-продажи.
. Поможем продать квартиру с несогласованной перепланировкой по рыночной цене.
Какие нюансы нужно учитывать при установке перегородки
(Время чтения: 1 — 2 минут)
В оформлении спального места гостиничного номера всегда важно найти грань между его эстетическими и функциональными решениями.
Часто отельеры, когда только запускают отель или выходят на реновацию номера, вдохновлены его будущим дизайном и эстетикой. Это действительно может выглядеть на бумаге стильно и красиво, однако проблемы начинаются тогда, когда с бумаги решение « переходит » в реальный номер. Мебель оказывается не функциональной, проходы между мебелью – недостаточно широкими, чтобы можно было пройти с чемоданом и т.д.

Мы рекомендуем при разработке дизайн-проекта номера ориентироваться не только на создание нужной атмосферы, но и на его максимальную функциональность: гостям должно быть комфортно находиться в номере, а горничной – его убирать.
К примеру, в стильной дизайнерской кровати также должен присутствовать зазор между полом и основанием, чтобы со временем оно не запачкалось обувью. Формы мебели в номере не должны собирать излишки пыли, углы быть безопасными для гостей, а материалы практичными и износостойкими.

С другой стороны, номер, конечно, должен быть стильным, современным и привлекать гостей. Да, мы видели решения, когда сохранена практичность, удобство, но забыта эстетическая сторона вопроса.
Между тем правильный гостиничный номер должен быть не только функциональным, но и красивым. И реализовать эти две задачи вполне возможно.

Влияет ли перепланировка на стоимость квартиры
Единое пространство
Вариант организации в квартире единого пространства предназначен для проживания одного человека или семьи из двух человек. Например, молодой семьи, ведущей достаточно «бурный» образ жизни, или для одинокого холостяка. В этом случае, сломав все стены, можно получить единое пространство, разделенное на зоны — здесь спят, здесь едят и т. д. Для большей семьи такой подход абсолютно не подходит — для семьи нужны комнаты, особенно если в ней есть дети и пожилые люди. Каждый член семьи для обретения душевного комфорта должен иметь индивидуальное пространство, обустроенное по его вкусу.
Такая перепланировка позволяет зрительно увеличить пространство помещения. При объединении кухни с гостиной, можно готовить и одновременно принимать гостей или же наслаждаться неспешными беседами с домочадцами. В настоящее время интегрирование кухни с жилым пространством окрепла, развилась и, более того стала доминировать в мебелестроении, во многом определяя пути, по которому идут сегодня мебельные фабрики.

Гостиную можно объединить в единый блок с прихожей. Такая перепланировка увеличивает пространство гостиной. Если вдруг захочется отделить пространство прихожей от гостиной, то можно установить раздвижные перегородки или поставить ширму.
Такой вариант перепланировки очень популярен в квартирах со свободной планировкой. Площадь современных квартир увеличивается и хочется эффективно использовать пространство квартиры. Можно из двухкомнатной квартиры сделать трехкомнатную. В этом случае кухня располагается на зоне коридора, а освободившиеся помещения использовать для создания детской, кабинета, комнаты для гостей.






При такой перепланировке площадь ванны увеличивается. Выиграть место в ванной комнате поможет замена ванны на душевую кабину. Тогда там легко поместится и стиральная машина. Но для любителей принимать ванны этот вариант не подойдет. Особенно это удобно, если в квартире есть небольшой гостевой санузел.






