Секреты жилья в два уровня. Вверх?
- Секреты жилья в два уровня. Вверх?
 - Планировка второго этажа частного дома. Плюсы
 - Расположение комнат в двухэтажном доме. Планировка комнат, кухни и ванной
 - Дом в двух уровнях. Плюсы дома в два уровня
 - Строительство 2х этажного дома. Выбор материалов для строительства
 - Ремонт брежневки 2 комнатной. Брежневки описание и типовые планировки
 
Секреты жилья в два уровня. Вверх?
В первую очередь стоит определиться с количеством уровней. Как показывает практика, в финансовом плане строительство «одноэтажки» выгоднее. В таких домах нет лестниц, которые «воруют» полезную площадь и, как правило, дорого обходятся. Отсутствие лестниц значительно упрощает навигацию по дому, особенно если в семье есть маленькие дети и люди преклонного возраста. В одноэтажном доме в отличие от коттеджа в несколько уровней гораздо проще и дешевле монтировать инженерные коммуникации (отопление, водоснабжение и пр.).

Однако в случае с «одноэтажкой» придется жертвовать площадью участка. Так что если земельные владения невелики, один этаж с широкой площадью основания займет слишком много места и будет выглядеть громоздко, не оставляя возможности развернуться при организации зон отдыха на открытом воздухе. Поэтому в такой ситуации двухэтажный дом — идея более привлекательная. Кроме того, к достоинствам коттеджа в несколько этажей можно отнести более эффектный экстерьер и хорошую обзорность из окон.
Итак, при зонировании внутреннего пространства «одноэтажки» встает вопрос естественного освещения. Чтобы все комнаты был достаточно напитаны светом, их «привязывают» к наружным стенам. Центральную (темную) часть, куда не проникает солнце, отдают под подсобные помещения и коридоры.
Комнаты общего сбора (кухню, столовую и гостиную) лучше объединять по принципу студии, согласно которому пространство вовсе не имеет перегородок, зонировано мебелью или разделено условно невысокими, не достающими до потолка стенками.
Проект в два жилых уровня дает возможность уменьшить площадь фундамента на 30–40% (по сравнению с «одноэтажкой», рассчитанной на то же количество помещений). Обычно верхний этаж представляет собой мансарду. Здания из трех уровней в последнее время встречаются все реже. Как рассказывают бывалые, это не очень удобно — бегать по лестницам слишком утомительно.
Источник: https://jk-na-krasnyh-partizan-2.ru/stati/sekrety-zhilya-v-dva-urovnya-yarkie-dizaynerskie-resheniya
Планировка второго этажа частного дома. Плюсы
- Размещение комнат на двух ярусах существенно экономит площадь — если у вас небольшой или средний участок, это важно. Освободившееся место можно отдать под террасу, сад, гараж, зону барбекю или бассейн.
 - Из окон на втором этаже будет открываться красивый вид — а это одна из причин, зачем вообще люди переезжают за город.
 - Можно логично разделить функциональные зоны: общие помещения внизу, приватные — наверху, где никто не будет отвлекать от отдыха. Еще такое разделение называют дневной и ночной зоной.
 - Такое строение более энергоэффективно: накопленный на первом уровне теплый воздух не уходит на чердак, а затем в никуда, а поднимается на второй жилой этаж.
 - Двухэтажный коттедж выглядит солидно и отвечает классическим представлением о частном доме. Если вы всегда мечтали о загородном уютном уголке из сказки, то эта схема полностью отвечает такому запросу.
 - Если позволяет площадь, можно обустроить внутри несколько санузлов (в том числе отдельный для каждой спальни), отдельные гардеробные — и вообще сделать планировку мечты.
 - Можно спроектировать красивое жилье с двойным естественным светом и панорамным остеклением.
 - Интереснее двухъярусный проект смотрится и снаружи: можно поэкспериментировать формой крыши и совместить несколько отделочных материалов, что особенно актуально для современных стилей, где акцент идет на формы: минимализм, хай-тек и т.д. Сама архитектура получится интересней, если добавить в проект террасу, эркеры или мансарду.
 
Расположение комнат в двухэтажном доме. Планировка комнат, кухни и ванной
При определении расположения комнат в доме стоит отталкиваться от их предназначения. Помещения в здании можно разделить на два типа: хозяйственные и жилые.
Для жилых помещений важно расположение на тех сторонах, где больше света — это экономит деньги на освещении и отоплении. Хозяйственные помещения располагают в соответствии с планом коммуникаций: газа, водоотведения, канализации.
Жилые комнаты можно условно поделить на те, где чаще всего жильцы проводят дневные часы, и те, в которых находятся вечером и ночью. Исходя из этого планируется их расположение — с учетом освещенности в разное время суток.
Спальни рекомендуется расположить в восточной части дома, чтобы заходящее солнце не мешало ложиться спать в летние часы. А комнаты дневного отдыха — столовые, гостиные, детские, игровые — лучше размещать там, где днем максимальная естественная освещенность. Зоны отдыха, обеда и кухни можно объединить в единое пространство, чтобы наполнить его светом и воздухом.
Нормативы, которые используются при строительстве и планировании жилых помещений в многоквартирных домах, для частных малоэтажных домов необязательны, но ориентироваться стоит именно на них — например, располагать мокрые зоны на разных этажах друг под другом, а газовую плиту изолировать от жилых комнат.
Анна Раджабова:
— Чаще всего в двухэтажном загородном доме на первом этаже располагаются кухня, гостиная, хозяйственные помещения, один из санузлов, одна-две гостевые комнаты. На втором этаже размещают спальни для членов семьи, кабинет (если есть необходимость) и желательно второй санузел. Бильярдную, спортивный зал, вспомогательные помещения лучше спланировать на первом этаже, чтобы снизить нагрузку на перекрытия.
Важную роль играет расположение дома по сторонам света. Максимально светлыми должны быть помещения, в которых жильцы проводят большую часть времени. К ним относятся гостиная, кухня, столовая, кабинет, детская. Окна в этих комнатах должны выходить на юг.
Технические комнаты, такие как котельная или бойлерная, лучше выделить в отдельное помещение для того, чтобы соблюсти требования безопасности и снизить шум. Также это упростит обслуживание оборудования. Если есть возможность, стоит предусмотреть несколько кладовых для хранения продуктов и вещей.
Важно помнить, что помещения с мокрыми зонами должны располагаться поблизости от коммуникаций. Если этим пренебречь, то как минимум придется тянуть трубы до кухни. Для комфорта проживания лучше предусмотреть два санузла. Один стоит расположить на первом этаже (желательно близко к входу), другой — на втором. При этом они должны находиться друг над другом. Туалет и кухню стоит разнести по разным частям дома.
Источник: https://jk-na-krasnyh-partizan-2.ru/stati/sekrety-zhilya-v-dva-urovnya-yarkie-dizaynerskie-resheniya
Дом в двух уровнях. Плюсы дома в два уровня
Выстроить комфортный коттедж высотой в 2 этажа не так затратно, как думают люди, желающие обзавестись частным домом. Самый дешевый план – типовой. В него включены минимальные функциональные возможности строения и коммуникаций, которые расширяют в процессе строительства или по его окончании. Индивидуальный проект обойдется намного дороже, так как в него может входить все, что захочет заказчик, – бассейн, камин, павильон, оранжерея, антресольные этажи, и это возможно построить из самых дорогостоящих стройматериалов. Площадь особняка также не ограничивается – это может быть план в 100, 120, 150, 200 или 250 м2. Однако такие дизайн-проекты разрабатываются профессиональными бюро и стоят недешево.
Профессиональный чертеж коттеджа 9х10 м2
Главные достоинства современного кирпичного двухэтажного особняка:
- Оптимальное распределение площади и территории на участке. Если приусадебный надел совсем маленький, то хочется использовать его максимально рационально. А одноэтажный займет гораздо больше места, чем удачный удобный проект небольшого по габаритам двухэтажного особняка из пеноблока или газобетона. В этом варианте освободившуюся площадь пускают на обустройство сада со скамейками, беседкой и тандыром.
 - Комфортность проживания на двух уровнях достигается за счет разделения жилой и общей площади на зоны. При таком распределении возможен и рабочий кабинет, и 2-3 спальных помещения, и комната для гостей, и столовая. Профессионалы предлагают размещать на 2-м этаже спальню и кабинет, а гостиную, помещение для приема пищи и ее приготовления следует оборудовать внизу. При подобном разделении в одном здании будут, не мешая друг другу, проживать 2-3 поколения семьи. Причем каждая возрастная группа сможет пользоваться своим режимом дня и реализовывать свои жизненные интересы.
 
Интерьер и зонирование площади двухэтажного особняка
- Надежность и простота строительной конструкции. Строительство с небольшой сметой предполагает вместо второго этажа поднятие мансарды, но это в конечном счете не решает проблему удешевления проекта. Главные затраты при возведении мансарды – скошенная, а не плоская кровля, часто четырех- или многоскатная. Далее расходы распределяются так: утепление мансарды, прокладка инженерных коммуникаций, обеспечение безопасности конструкции. Поэтому при необходимости получить просторное и безопасное жилье лучше выбрать готовый двухэтажный проект дома из кирпича или разработать собственную планировку, где каждое помещение выполняет свои узконаправленные функции.
 - Правильная планировка двухэтажного дома – это соблюдение равновесия между расходами на составление проекта, рабочие процессы и общей площадью строения. Принимается во внимание и эстетика здания, и благоустроенность проживания и эксплуатации особняка, и объем собственного пространства членов семьи.
 
Строительство 2х этажного дома. Выбор материалов для строительства
При выборе материала для строительства дома учитывай цену, трудозатраты, теплоизоляцию и расходы на дальнейшую отделку. Холодные стены слишком дорого обойдутся зимой, если не позаботиться об утеплителе, в отличие от теплых. Гладкие современные материалы проще покрасить или обшить снаружи – и это тоже экономия.
Традиционный кирпич может прослужить свыше 100 лет, не боится жары и морозов, а технология монтажа отработана до мелочей. Но он требует массивного фундамента из-за своего веса, а кладка потребует времени и вложений. Гораздо проще и быстрее работать с керамоблоками, но они дорогие и более хрупкие.

Газобетонные и керамзитобетонные блоки – легкий, практичный и теплый материал с пористой структурой и высокой стойкостью к огню. Но у них низкая прочность на изгиб, а со временем они могут потрескаться. Ближайшая альтернатива – более дорогостоящий, но прочный, устойчивый к нагрузкам арболит с высокими изоляционными свойствами.
Дома из сруба – комфортный, экологичные, всегда эффектные и уютные. Но с натуральным деревом сложно работать, нужно ждать усадку, защищать его от влаги и вредителей. Строительство из бруса проще и быстрее, но основные недостатки все равно сохраняются.
Хорошо зарекомендовали себя разные технологии каркасных домов, дома из СИП-панелей и другие сборные конструкции. Это легко, быстро и практично, но могут быть проблемы с индивидуальной планировкой. Еще один вариант для двухэтажного дома – комбинированная технология: например, деревянный верх на каменном основании.

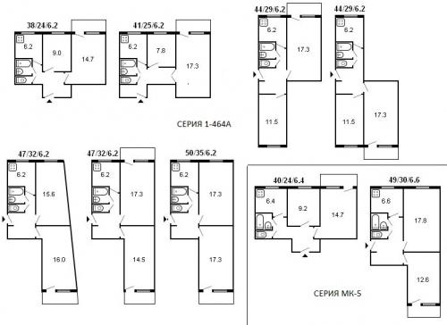
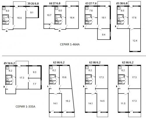
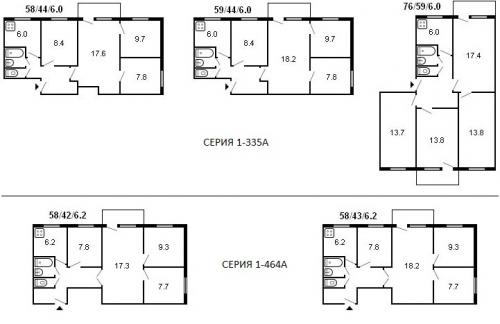
Ремонт брежневки 2 комнатной. Брежневки описание и типовые планировки
Всего насчитывается около 40 вариантов фото планировок брежневских домов, в зависимости от серии, плана и даты постройки. Однако, существуют и типовые варианты для квартир различной площади.
- Однокомнатная квартира имела площадь до 30 кв. м. На долю жилой комнаты отводилось 16 – 17 кв. м. Зона кухни имела в наличии 6 или 7 метров. Всю оставшуюся территорию занимали санузел, коридор и балкон, если он имелся в наличии.

Варианты планировки 1-комнатной квартиры
 - 2 комнатная брежневка планировка, площадью до 48 квадратных метров, имела более удобную планировку. Варианты расположения комнат были представлены двумя способами. Первый способ – вагонная планировка. Две комнаты располагались справа и слева от центрального коридора. Они могли быть как изолированными друг от друга, так и проходными. Второй способ – угловой. Он более известен, как планировка квартиры сорокопятки. Фотографии дизайна 2 комнатной брежневки показывают, что комнаты могли примыкать друг к другу, но иметь отдельный вход из центрального коридора. Или же быть разделенными кухней и санузлом.

Варианты планировок 2-комнатных квартир
 - Трехкомнатная планировка квартиры, площадью до 63 квадратов, также предоставляла на выбор несколько способов расположения комнат. Первый вариант предполагал наличие проходной гостиной, которая могла вести к одной из спальных комнат, или к обеим сразу. В некоторых случаях дверь во вторую спальню выходила прямо из коридора. Наиболее востребованным был вариант планировки под названием “Ромашка”. В этом случае все три комнаты были изолированными друг от друга и имели отдельные входы со стороны центрального коридора.

Варианты планировочных решений 3-комнатных квартир
 - Планировка четырехкомнатной квартиры, площадью до 76 метров, была схожа с трехкомнатной. В наличии имелись варианты как с изолированными комнатами, так и с проходной гостиной.

 



